Строим беседку своими руками: простые инструкции для начинающих
- Строим беседку своими руками: простые инструкции для начинающих
- Связанные вопросы и ответы
- Что нужно для того, чтобы построить беседку из дерева своими руками
- Какие виды дерева лучше использовать для постройки беседки
- Какие инструменты необходимы для строительства беседки из дерева
- Как выбрать место для строительства беседки
- Как правильно выбрать размеры беседки
- Как сделать фундамент для беседки из дерева
- Как соединить деревянные элементы беседки
- Как защитить деревянную беседку от воздействия окружающей среды
- Как сделать крышу для беседки из дерева
- Как сделать окна и двери для беседки из дерева
Строим беседку своими руками: простые инструкции для начинающих
Создание беседки на заднем дворе – это отличный способ добавить функциональности и уюта в свой дом. В этой статье мы расскажем вам, как построить беседку своими руками, используя простые инструкции.
Что нужно для строительства беседки
Перед тем, как приступить к строительству беседки, вам необходимо собрать необходимые материалы и инструменты.
Материалы:
- Дерево (сосна, ель, орех, бук)
- Дрот
- Снасти
- Клей
- Водостойкая краска или лак
Инструменты:
- Электродрель
- Электропила
- Ножницы для металла
- Скобы
- Шурупы
- Молоток
- Уровень
- Линейка
- Квадрат
Шаги для строительства беседки
1. Подготовка площадки
Первым шагом является подготовка площадки для строительства беседки. Выберите участок, который будет достаточно устойчивым и ровным. Убедитесь, что площадка защищена от ветра и солнца.
2. Создание фундамента
Следующим шагом является создание фундамента для беседки. Вы можете использовать бетонный фундамент или деревянные брусья. Если вы выбираете деревянные брусья, убедитесь, что они достаточно прочные и устойчивые.
3. Сборка стен
Теперь вы можете начать сборку стен беседки. Используйте дерево и скобы для соединения деталей. Убедитесь, что стены ровные и прямые.
4. Установка крыши
После того, как стены будут собраны, вы можете начать установку крыши. Используйте дерево и скобы для соединения деталей. Убедитесь, что крыша ровная и устойчивая.
5. Окрашивание беседки
Теперь, когда беседка собрана, вы можете окрасить ее водостойкой краской или лаком. Это поможет защитить беседку от влаги и повреждений.
6. Добавление дополнительных элементов
Вы можете добавить дополнительные элементы, такие как окна, двери, скамейки или полки. Используйте дерево и скобы для соединения деталей.
7. Подготовка к использованию
Теперь, когда беседка построена и окрашена, вы можете начать использовать ее. Убедитесь, что все элементы на месте и что беседка устойчивая и безопасна.
Список необходимых материалов и инструментов
- Дерево (сосна, ель, орех, бук)
- Дрот
- Снасти
- Клей
- Водостойкая краска или лак
- Электродрель
- Электропила
- Ножницы для металла
- Скобы
- Шурупы
- Молоток
- Уровень
- Линейка
- Квадрат
Таблица расчета стоимости строительства беседки
| Материалы | Стоимость |
| Дерево | 10 000 рублей |
| Дрот | 1 500 рублей |
| Снасти | 2 000 рублей |
| Клей | 500 рублей |
| Водостойкая краска или лак | 2 500 рублей |
| Электродрель | 3 000 рублей |
| Электропила | 4 000 рублей |
| Ножницы для металла | 1 000 рублей |
| Скобы | 1 500 рублей |
| Шурупы | 500 рублей |
| Молоток | 500 рублей |
| Уровень | 1 000 рублей |
| Линейка | 500 рублей |
| Квадрат | 500 рублей |
В итоге, стоимость строительства беседки составит около 30 000 рублей.
Вывод
Строительство беседки своими руками – это отличный способ добавить функциональности и уюта в свой дом. Используйте простые инструкции, которые мы описали в этой статье, и вам удастся построить красивую и удобную беседку.
Связанные вопросы и ответы:
1. Что нужно для изготовления беседки своими руками из дерева
Ответ: Для изготовления беседки своими руками из дерева потребуется следующее:
* Деревянные брусья и доски для основы, стен и крыши;
* Металлические болты, гвозди и саморезы для соединения деталей;
* Электроинструмент, такой как пилка, шуруповерт и дрель;
* Шпагат, клей и другие материалы для обработки дерева;
* Малярные принадлежности, такие как кисти, краски и грунтовка.
2. Как выбрать дерево для беседки
Ответ: При выборе дерева для беседки следует учитывать его качество и состояние. Лучше всего использовать твердое и прочное дерево, такое как дуб, бук или ясень. Также следует избегать дерева с трещинами, гнили и другими дефектами.
3. Как построить фундамент для беседки
Ответ: Фундамент для беседки должен быть прочным и устойчивым. Для этого можно использовать бетонные блоки или камень, которые будут забиты в землю на глубину около 50 см. Затем на эту основу можно установить брусья для стен и крыши беседки.
4. Как сделать крышу для беседки
Ответ: Крыша для беседки должна быть водонепроницаемой и устойчивой к погодным условиям. Для этого можно использовать деревянные доски или же кровельный материал, такой как шифер или черепица. Крышу можно установить на стропила или профилированные балки, которые будут крепиться к стенам беседки.
5. Как сделать двери и окна для беседки
Ответ: Двери и окна для беседки можно сделать из деревянных досок или пластиковых панелей. Для их установки потребуются металлические рамы и замки. Двери и окна можно украсить витражами или другими декоративными элементами.
6. Как обработать дерево для беседки
Ответ: Дерево для беседки необходимо обработать, чтобы оно было защищено от воздействия окружающей среды. Для этого можно использовать грунтовку, краску или лак. Грунтовка поможет закрепить краску на поверхности дерева, а краска и лак защитят дерево от влаги, солнечного света и других факторов.
7. Как установить мебель и удобства в беседке
Ответ: Мебель и удобства для беседки можно установить после того, как беседка будет построена и обработана. Для установки мебели можно использовать металлические или деревянные кронштейны. Удобства, такие как столы, стулья и скамейки, можно сделать из дерева или пластика. Также можно установить электропроводку и осветительные приборы для удобства и комфорта.
Что нужно для того, чтобы построить беседку из дерева своими руками
Каркас садовых или дачных беседок делают из трех материалов:
- деревянного бурса или кругляка малого диаметра;
- стальной трубы (из профильной удобнее);
- полимерных труб (ПВХ).
Единственный материал, который не требует защиты — это полимеры. Они не гниют, не поражаются грибками. Некоторые виды переносят заморозку и разморозку без особого вреда. Так что они могут оставаться зимовать. Вот только чтобы беседка для дачи из ПВХ труб была прочной, нужны они солидного диаметра и с толстой стенкой. И даже в этом случае опираться на каркас не нужно: в придется ставить такую мебель, которая не будет давить на пластик. Ну и мангал нужно будет ставить в стороне (если он предусмотрен).

Пластиковые трубы ПВХ могут служить не только каркасом, но и плетеными стенами
Чтобы деревянная садовая беседка долго сохраняла привлекательность, всю древесину, которая будет использоваться при строительстве, необходимо предварительно покрыть защитной пропиткой в один-два слоя. Самые дешевые сегодня это пропитки СЕНЕЖ и Усадьба, а отзывы о них и их защитные свойства очень хорошие. У этих производителей есть и колерующие составы.
Металлический каркас для беседки обрабатывается дважды. Первый раз труба грунтуется перед началом стройки, потом проходят тщательно грунтовкой места сварки. Причем, если есть ржавчина, ее или счищают, или проходят преобразователем ржавчины и только после этого грунтуют. Зачем такие сложности? Чтобы внешний вид долго был солидным. После высыхания грунтовки все покрывается краской по металлу для наружного применения.

Беседка из пластика. Может и неэкологично, но никаких проблем с покраской, грибками или ржавчиной
Обшивка беседок для сада может быть практически любой. Чаще всего используют древесину. Это струганная доска, блокхаус, вагонка, кругляк малого диаметра. Если есть б/у поддоны, их разбирают, шлифуют доску и ею обшивают нижнюю часть каркаса. Получается очень экономно. А за счет того, что древесина уже давно высохла, после обработки защитными составами она служит долго.
Беседки для дачи и сада обшивают следующими материалами:
- поликабронатом ( про беседки из поликарбоната читайте тут );
- профилированным листом (профнастилом);
- закаленным стеклом;
- тканью;
- прозрачными пленками ПВХ;
- бамбуком.

Какие виды дерева лучше использовать для постройки беседки
Хорошая идея разместить беседку возле водоёма, пусть даже это будет обычный ручей.
Никакая беседка не обойдется без изящной дорожки, ведущей вдоль сада.
Особым элементом являются лианы. Беседка станет ели заметной, неотъемлемой частичкой всего сада, если лиана ее полностью окутает. Оригинально использовать пахучие лианы, но это предложение неуместно, если у владельца имеется аллергия.
Без лиан беседка, наоборот, выделится, станет ярким акцентом в саду.
Если размер участка позволяет, можно построить несколько беседок. Обычно это одна центральная для общих собраний и несколько маленьких, размещенных по углам периметра для личного отдыха или просто, чтобы попить утренний кофе.
Если на вашем участке нет высокого забора, чтобы оградиться от взглядов соседей и прохожих, сделайте заднюю стенку и бока беседки закрытыми. Такую конструкцию размещают почти вплотную к границе участка, остается лишь маленький полуметровый зазор. Её ставят лицевой стороной к своему дому, тогда открывается прекрасный вид на собственный сад.
Какие инструменты необходимы для строительства беседки из дерева
Первым делом нужны сваи. Это самый быстрый и надежный фундамент для беседки. Их можно приобрести в строительных магазинах. Для беседки используют винтовые сваи — заостренный шнек выходит из трубы большого диаметра.
Вот их преимущества:
- прочные и отлично выдерживают нагрузки — как раз под площадь стандартной беседки;
- простой монтаж;
- относительно невысокая цена: от 1000 до 3000 рублей за единицу;
- даже если ваш участок имеет неровный рельеф или доступ техники к месту постройки ограничен, свайно-винтовой фундамент станет лучшей альтернативой другим типам;
- к строительству беседки можно приступать в любое время года;
- долговечный: если все работы провести качественно, то прослужит не один десяток лет;
- обычно сваи уже покрашены и их нужно просто завинтить в землю.
Сколько потребуется свай и какой длины? Исходите из формулы, что для беседки 3×3 метра нужно четыре винтовых сваи. Для квадратной беседки от четырех до шести метров уже рекомендуют девять штук. Для песчаного грунта или суглинка хватит длины 2500 мм. Для торфяных грунтов нужно длиннее. Не забудьте приобрести оголовки (заглушки) для каждой сваи.
Пригодится и мешок цемента. Песочно-бетонная смесь идеально подойдет для укрепления свай, если вы захотите его сделать. Одного мешка марки М-200 должно хватить. Вспомните, есть ли у вас емкости для замешивания и если нет, то возьмите и их.
Как выбрать место для строительства беседки
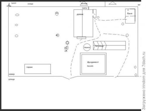
Вопрос от нашей подписчицы Ann Viktori:У меня вопрос по устройству участка. Домик очень близко к соседнему участку (1 метр от забора), причем юго-восток!.. Вход с юго-западной стороны. Между домиком и баней, у забора, детская площадка: домик и песочница. Есть еще вход с севера-запада (в виде балкона). С юго-востока на северо-запад приличный наклон, особенно до ворот.Где лучше разместить беседку?
У вас есть свой дачный вопрос? Задайте его нашим экспертам и опытным дачникам.
Как правильно выбрать размеры беседки
- Многоугольные : основа таких конструкций – шести- или восьмиугольник. Чаще всего такую форму придают полуоткрытым беседкам из дерева или из кованого металла. Многоугольные беседки – яркие претенденты на роль элемента садового ландшафтного дизайна.
- Круглые : округлая или цилиндрическая форма обычно представляет классическую беседку-ротонду. В соответствии с формой и материалом стол должен быть такой же. Крыша этого вида конструкции выполняется в форме купола и часто украшается вьющимися растениями.
- Комбинированные : эту разновидность используют при строительстве закрытых беседок – «летних домиком». Она сочетает в себе многоугольную форму, навесы и дополнительные аксессуары.
Выбирая форму и размер беседки, важно учитывать гармоничное сочетание всех элементов.
Универсальный вариант для небольшой семьи – небольшой многоугольник (3х3), если дача, в первую очередь, место отдыха, то подойдёт вариант прямоугольной беседки (6–12 кв. м).
На просторных участках выигрышно смотрятся закрытые беседки, на маленьких – лёгкие ажурные конструкции.
Что касается размеров беседки, то они напрямую зависят от параметров участка и наличия свободного места.
Важно понимать, для чего вам нужна беседка, так как это влияет на тип будущей конструкции.
Если вы планируете небольшие посиделки в тесном кругу, то лучшего варианта, чем простой навес или открытый многоугольник, не придумать.
Если же в планы входят более масштабные идеи для досуга, то такая беседка выполняется из кирпича или камня (лучших огнеупорных материалов), с установленным мангалом. Такое строение получится весьма объёмным, поскольку очаг должен располагаться минимум в 3 метрах от места застолья.
Есть и универсальное решение – летняя разборная конструкция. Она не нуждается в фундаменте, в отличие от остальных видов.
Как сделать фундамент для беседки из дерева
Столбы для беседки из дерева подходят для прочных грунтов и относительно ровных участков. Если же грунт неустойчивый, место под постройку имеет значительный уклон или её решено строить на берегу водоема либо прямо над ним, лучшим решением станет основание из свай. Для беседок вряд ли стоит использовать забивные бетонные сваи с высокой несущей способностью, достаточно винтовых или буронабивных. Их длина подбирается так, чтобы они заглублялись до плотных слоев грунта и возвышались над землей до нужного, заранее определенного уровня.
- Буронабивные сваи .
Этот вариант подойдет для сухих участков. Такие сваи представляют собой длинные армированные бетонные столбы в несъемной опалубке, роль которой могут исполнить асбестовые или пластиковые трубы.
Под опоры бурят скважины нужного диаметра и глубины, вставляют в них трубы и заливают первую порцию бетона. Если сразу после этого трубы немного приподнять, бетон выльется на дно скважины и образует утолщенную подошву. Затем трубную опалубку выравнивают по вертикали, вставляют в неё арматуру и заполняют бетоном доверху, протыкая каждый слой штырями или кольями для удаления воздуха.
Если грунт плотный и не осыпается со стенок скважины, можно залить её бетоном почти доверху, а затем установить отрезок трубы в качестве опалубки для надземной части.
- Винтовые сваи .
Сваи из стальных труб с буром и лопастями на конце – универсальное основание для любых грунтов, кроме каменистых. С их помощью можно построить беседку даже на воде – посреди пруда или на берегу реки. Они вкручиваются в грунт до достижения лопастями плотных неподвижный слоев вручную (с использованием рычага) или спецтехникой.
После установки всех свай выполняется разметка уровня, и лишняя часть труб обрезается. Верхушки оказываются в одной плоскости независимо от того, ровной была площадка под беседку на даче или с уклоном. К ним привариваются стальные площадки с крепежными отверстиями, на которые впоследствии укладывается нижняя обвязка строения.
Ленточный
Фундамент, уложенный сплошной лентой по всему периметру беседки, делают только для кирпичных и других тяжелых конструкций. В других случаях это просто нецелесообразно и сопровождается ненужной тратой денег.
Ленточное основание также может быть монолитным или собранным из блоков, кирпича. Оно делается мелкозаглубленным, поэтому глубина траншеи под заливку не превышает 50-70 см, причем 15-20 см в ней занимает песчано-гравийная подушка, предотвращающая сезонные подвижки грунта. На неё устанавливают опалубку, которую заливают бетоном. Чтобы лента получилась прочной, её армируют стальным каркасом. Убирают опалубку спустя 10-14 дней, когда бетон наберет хотя бы половинную прочность.
Как соединить деревянные элементы беседки
Легкие беседки с деревянной крышей можно построить без специального фундамента. Особенно это касается тех конструкций, когда кровля и стропильная система не имеет большого веса. Этот вариант пригоден и там, где не планируется делать пол — вы собираетесь оставить его земляным или засыпать песком.
Для начала необходимо выровнять площадку под строительство, убрав поверхностный питательный слой. Далее можно засыпать участок гравием, желательно чтобы он имел к центру возвышение. Это предотвратит затекание воды под пол.
Под деревянные опорные столбы выкапываются ямы. Количество столбов определяется размером и формой беседки. Для квадратной беседки размером не более 3х3 м и песчаным полом достаточно четыре опоры. Для больших сооружений или для тех, где планируется сложная стропильная конструкция или кровля из натуральной черепицы, другого тяжелого материала понадобятся промежуточные опоры. Также промежуточные опоры нужны для укладки лаг.
Чертеж столбчатого фундамента из кирпича под беседку из дерева: 1 – кирпичный столбик, 2 – уровень поверхности почвы, 3 – слой рубероида, 4 – лага, 5 – столб опоры
Диаметр бревен должен быть не менее 200 мм. Особое внимание нужно уделить антисептической обработке подземной части опоры. Ее можно покрыть варом или, в крайнем случае, обжечь над огнем. Под опорные балки выкапываются ямы около одного метра глубиной. На дно засыпается гравий, обломки кирпича и т. п. вперемешку с песком.
Слой такой утрамбованной подушки должен составлять около 20 см. После того, как опора установлена в яму, промежуток между ней и почвой засыпается песочно-гравийной смесью и утрамбовывается. Такой фундамент может прослужить 15 лет.
Для более длительного срока эксплуатации нужно сделать столбчатый фундамент с малой глубиной заложения.
Этапы сооружения столбчатого фундамента под беседку:
- В местах опор выкапываются ямы глубиной полметра.
- На дно насыпается гравийно-песчаная смесь.
- По периметру устанавливается опалубка размером 400 х 400 мм и высотой 150-200 мм.
- Для заливки используется бетон в пропорциях: цемент + песок + гравий — 1:2:2.
- Перед заливкой бетона нужно поставить арматуру. Срок затвердения бетона 2 суток.
- Этот фундамент можно сверху достроить кирпичными столбиками, чтобы над уровнем почвы было возвышение из двух кирпичей или же полностью сделать столбчатый фундамент кирпичным.
В четырехугольной беседке опоры делаются по углам, в середине каждой из сторон и один в центре беседки.
В качестве основания можно сделать также плитный фундамент с небольшой глубиной залегания. Сначала весь периметр площадки заглубляется на 10-15 см и устанавливается по периметру опалубка. Далее поверхность засыпается и выравнивается гравий с песком. Уплотнение смеси можно сделать водой из шланга.
Сверху укладывается арматура и заливается бетонная площадка. Она может уже может служить непосредственно полом или основанием под керамическую плитку, но можно на нее постелить на лаги деревянные половые доски.
Изготовление нижней и верхней обвязки
На фундамент укладывается обвязка из бруса со стороной профиля 150 или 200 мм. Обвязку можно закрепить на ус, когда углы в месте соединения срезаются под углом 45 градусов, это актуально если беседка будет прямоугольной формы.
Можно использовать способ вполдерева, когда часть древесины вынимается и брусья вставляются друг в друга или соединить встык.
Как защитить деревянную беседку от воздействия окружающей среды
Деревянная беседка – это простая архитектурная конструкция для дачи. Однако древесина подвержена негативному воздействию окружающей среды. Ее необходимо защищать от ультрафиолета, насекомых, влаги. Из статьи вы узнаете, чем обработать деревянную беседку на улице, чтобы сохранить ее привлекательный внешний вид.
Зачем нужна обработка
Обработка древесины позволяет защитить ее от разрушительного воздействия ультрафиолета, а также от грибка, плесени, насекомых. В противном случае уже через 1–2 года дерево потеряет порядка 90% своей механической устойчивости, и конструкция попросту разрушится. Еще пропитка поможет сохранить естественный рисунок древесного среза, а в случае если сверху планируется наносить краску, то обработка позволит на 50–60% снизить ее расход.

Еще один немаловажный нюанс: пропитку дерева обязательно выполняют в несколько заходов. Это актуально для грунтовок, натуральных и синтетических масел. Только в этом случае деревянную беседку можно защитить на 99% от воздействия окружающей среды.
Варианты средств
По составу пропитки для древесины можно разделить на:
- Антисептики. Для беседок, которые эксплуатируются на улице, они обязательны, так как позволяют предотвратить возникновение плесени и грибка. Предотвратить попадание спор на дерево невозможно, однако антисептик предотвратит их прорастание. Одни из самых популярных: Farbex, «Титан» (серия S).
- Масла. Самые распространенные варианты – это льняное масло и олифа. Они защищают именно от воздействия влаги. Если обработать ими дерево, то коэффициент его влагопоглощения снизится примерно до 0,2%. Соответственно, влага не будет накапливаться в древесине и замерзать зимой, из-за чего трещины чаще всего и появляются.
- Грунтовки. Покрыть дерево таким средством рекомендуется перед покраской – это увеличивает адгезию, предотвращает растрескивание и выгорание слоя краски. Кстати, встречаются еще и грунтовки с антисептическими присадками. Во многих случаях лучше их и использовать. Популярные модели: Pinotex, Kompozit.
- Лак. Полностью закрывает древесину, поэтому наносится только на хорошо просушенное дерево. Позволяет сохранить естественный рисунок древесных материалов, но при этом отлично защищает от влаги, грибков, плесени, ультрафиолета. Популярные модели: Euromix, Mav Brava.
- Краска. Лучше использовать на масляной основе, так как она глубоко проникает в структуру дерева, не создает наружную полимерную пленку. Но расход получается довольно большим, даже с предварительным грунтованием. Популярные краски: Kompozit, Bayris.
Технология обработки
Для максимальной защиты досок или бруса обрабатывать их необходимо по следующей технологии:
- Первый слой – это глубокопроникающий антисептик. Рекомендуется использовать комбинированные антисептики, содержащие и масляную основу, и синтетические присадки. Обрабатывать следует в 2–3 слоя.
- Второй слой – это масляная пропитка, олифа или льняное масло. Наносят кисточкой, тщательно «втирают» в дерево, остатки вытирают мягкой губкой. Если масла будет много, и оно полностью не впитается, то останется липкое пятно. Пол лучше обрабатывать олифой. В ней содержатся синтетические присадки, которые более агрессивно воздействуют на грибок и плесень.
- Грунтовка. Если выполнены вышеуказанные шаги, то наносят в один слой. Можно выбирать с красящей основой для осветления или затемнения древесины.
- Краска.
По такой методике обрабатывают новую древесину. Если же брус или доски ранее уже использовались, то предварительно их шлифуют. Можно также обработать рубанком на глубину до 1 мм.
Ранее окрашенное дерево просто шлифуют при помощи ленточной шлифмашины. Более агрессивный вариант – шлифока с помощью угловой шлифмашины с наждачным кругом. Такой метод подходит для тех случаев, когда по дереву имеются следы неглубокой коррозии.
Финишная отделка
С краской все предельно просто: ее наносят кисточкой или валиком, можно в два слоя, но давая первому слою полностью высохнуть. Лаком покрывают в 2–4 слоя, в зависимости от тона покрытия, который в итоге необходимо получить. Краскопультом пользоваться не стоит, лучше отдать предпочтение обычным кисточкам с натуральным ворсом.
Таким образом, вариантов обработки открытой и закрытой беседки множество. Главное – предотвратить влагопоглощение, так как только при высокой влажности разрастается грибок и плесень. Имейте в виду, что намного проще обработку выполнять до сборки конструкции.
Как защитить деревянную беседку от воздействия окружающей среды
Деревянная беседка - это простая архитектурная конструкция для дачи. Однако древесина подвержена негативному воздействию окружающей среды. Ее необходимо защищать от ультрафиолета, насекомых, влаги. Из статьи вы узнаете, чем обработать деревянную беседку на улице, чтобы сохранить ее привлекательный внешний вид.
Обработка древесины позволяет защитить ее от разрушительного воздействия ультрафиолета, а также от грибка, плесени, насекомых. В противном случае уже через 1-2 года дерево потеряет порядка 90% своей механической устойчивости, и конструкция попросту разрушится. Еще пропитка поможет сохранить естественный рисунок древесного среза, а в случае если сверху планируется наносить краску, то обработка позволит на 50-60% снизить ее расход.
Еще один немаловажный нюанс: пропитку дерева обязательно выполняют в несколько заходов. Это актуально для грунтовок, натуральных и синтетических масел. Только в этом случае деревянную беседку можно защитить на 99% от воздействия окружающей среды.
Состав пропитки для древесины
Для максимальной защиты досок или бруса обрабатывать их необходимо по следующей технологии:
- Для новой древесины
- Для ранее использованных бруса или досок (шлифовка и обработка рубанком на глубину до 1 мм)
- Для ранее окрашенного дерева (шлифовка при помощи ленточной шлифмашины)
- Для дерева с следами неглубокой коррозии (шлифовка при помощи угловой шлифмашины с наждачным кругом)
Таким образом, обработка древесины является важным шагом для защиты деревянной беседки от воздействия окружающей среды. Используя правильные пропитки и технологии, вы сможете сохранить привлекательный внешний вид вашей беседки и продлить ее срок службы.
Как сделать крышу для беседки из дерева
Надежность односкатной крыши напрямую зависит от точности установки вертикальных опор. У этой схемы нет парных стропил, за счет которых можно выровнять и сбалансировать поверхность. Любая ошибка по высоте сделает односкатную крышу либо «горбатой», либо с ямой в центре ската.
Первыми устанавливают опоры с тыльной стороны — крайнюю левую и правую, каждую отдельно. Предварительно к нижней обвязке нужно прибить гвоздем пару планок или кусков горбыля 120-150 см. После установки вертикальной опоры на угол прихватывают ее к настилу парой гвоздей и после выравнивания по вертикали фиксируют планками-подкосами.
После установки (с подкосами) всех вертикальных опор укладывают брус верхней обвязки тыльной стороны. Сразу же после укладки поверх устанавливают еще один брус, но уже для стропил односкатной крыши.
Аналогичным способом собирают опоры для фронтальной стороны, включая укладку опорного бруса для односкатной крыши.
Теперь нужно выровнять стойки тыльной стороны с фасадными. Это все равно что попытаться сделать параллельными два листа фанеры, поставленные вертикально. Задача непростая: подгонка каркаса в одиночку, как и установка односкатной крыши, займет много времени. Требуется как минимум один, а лучше два помощника.
Вначале нужно врезать между задними угловыми и передними угловыми по одной горизонтальной поперечине. К задней каждый брус сразу прибивают (одним гвоздем), на передней стойке конец просто вкладывают в паз, вырезанный в вертикальной передней стойке. Далее с помощью рулетки и строительного уровня необходимо подогнать положение стоек, после чего забить второй гвоздь в поперечину, но уже на передней стойке беседки.
После выравнивания длина обоих поперечин должна совпасть с точностью до миллиметра, иначе односкатная крыша получится скошенной на более высокую из сторон беседки.
При размерах беседки больше, чем 3х4 м, или если односкатная крыша выполнена в два яруса, помимо боковых поперечин, нужно будет нашивать «балки» потолочного перекрытия.
После сборки каркаса все стыки, угловые и линейные, нужно усилить металлическими накладками и уголками. Сделать это нужно по всей конструкции беседки и обязательно до установки стропил односкатной крыши. Понятно, что все дерево нужно вскрыть лаком.
Для первой обработки используется лак, разведенный двойной порцией растворителя до состояния «воды». Он глубоко проникнет в поры древесины и сделает каркас беседки нечувствительным к влажности воздуха. Вторую обработку выполняют лаком обычной консистенции, но уже после установки односкатной кровли.
Как сделать окна и двери для беседки из дерева
Обустраивая уютный уголок для отдыха в частном доме или на даче, где можно пребывать круглый год , хозяева отдают предпочтение закрытым беседкам , . Это дает возможность наблюдать за природой зимой, не выходя из теплого помещения. Но ключевой фактор здесь – выбор, установка качественных окон и комплектующих.
Подходящие материалы
В продажу массово поступают окна различных форм , цветов, стоимости. Часто хозяева выбирают эконом-вариант. Но верандные рамы, стекло, фурнитура, изготовленные из дешевого материала прослужат недолго, что повлечет новые расходы.
Поэтому при покупке важно обращать внимание на сырье, которое взято за основу конструкции, его внешний вид и прочность.
Рассмотрим каждый из материалов детальнее.
Пластик
За последние годы получил популярность среди населения. Люди стали заменять деревянные старые окна для веранды на металлопластиковый вариант. Главная причина выбора – множество преимуществ использования. Среди них:
- надежные шумо-, теплоизоляция;
- не нуждаются в уходе;
- ассортимент цветов;
- выполнение под заказ модели любой формы и дизайна;
- широкий диапазон цен.
Этот материал позволяет эксплуатировать помещение независимо от времени года.
Фото: веранда пристроенная к дому с рамным остеклением
У пластиковых террасных окон есть и недостатки:
- крепятся в строении с прочным фундаментом, поскольку профиль весит немало;
- не ремонтируются;
- их нельзя заменить;
- срок службы не превышает 25 лет.
Монтаж этих конструкций прост, поэтому их можно устанавливать самостоятельно, хотя большинство компаний включают установку в стоимость изделия.
Дерево
Если пластиковые вам не подходят, можно выбрать деревянные террасные окна. Они прослужат вам долгие годы.
Правда не все породы одинаково долговечны. Наиболее надежными считаются:
- Дуб . Высокая стоимость этого сырья компенсируется его прочностью, уникальной текстурой.
- Лиственница . Такая древесина обладает антисептическими свойствами. Устойчива к воздействию влаги.
- Клееный брус . Не деформируется. Прочен. Срок службы рам достигает 50 лет и больше.
- Сосна . Стоит недорого. Легка по весу. Эта порода создаст естественный воздухообмен. В сравнении с другими видами меньше всего подвергается процессу гниения.
Выбирая окна для террасы, помните, что деревянные наиболее экологичны. Они поддаются ремонту, реставрации, хорошо удерживают тепло внутри помещения, а уникальная текстура добавит интерьеру естественности, домашнего уюта.
Существенный недостаток – они нуждаются в постоянном уходе. Поверхность необходимо периодически обрабатывать средствами против насекомых, грибка.

Популярный вариант – деревянные рамы для террасы в одно или два стекла толщиной от 2 мм. Заказать можно несколько видов стекол:
- закаленное;
- тонированное;
- солнцезащитное.
Если же у хозяев есть необходимый набор инструментов и материалов, то изготовить такое окно можно своими руками.
Алюминиевый профиль
Используется только для холодного остекления построек. Несмотря на это имеет массу плюсов:
- небольшой вес конструкции;
- срок службы 80 лет и выше;
- создание габаритных изделий на заказ;
- прочность;
- неограниченный выбор цветов.
Верандная рама из металла позволяет выбирать различные виды систем открывания.

Среди них:
- сдвижная;
- поворотная;
- откидная;
- поворотно-откидная;
- подъемно-сдвижная.
Главный минус – алюминий практически не удерживает тепло. Если планируется использовать материал в сооружении, где жильцы будут пребывать круглый год, необходимо заранее побеспокоится о качественной теплоизоляции помещения.
Способы остекления
Важно заметить, что комфорт внутри строения зависит не только от качественных рам, но и вида приобретаемого стекла. Наиболее распространенными типами считаются:
- витражное;
- ламинированное;
- стандартное одинарное;
- энергосберегающее;
- закаленное;
- стеклопакет.
Не менее удачное решение – применение ударопрочного , который обеспечит хорошее освещение и теплоизоляцию внутри террасы и обойдется дешевле стекла.
Популярный дачный вариант – обшивка постройки , но пребывать в помещении получится только в теплое время года.
В зависимости от частоты эксплуатации веранды применяют холодное или теплое остекление . В первом случае температура воздуха в комнате будет отличаться от улицы всего на 5 0 С. Для постоянного проживания лучше подходит второй вид.
Кроме того, существует несколько технологий монтажа.
Рамный и безрамный
Первый тип подразумевает установку стекол в специальные рамки. Этот способ наиболее прост и не требует особых навыков. Себестоимость конструкции получается в несколько раз дешевле, чем у других видов. Отдельные детали подлежат замене. За счет небольших размеров стекол их удобно транспортировать. Недостаток – невозможность создать авторское произведение нестандартной формы .
