Строительство теплицы из профильной трубы: подробный самоучитель
- Строительство теплицы из профильной трубы: подробный самоучитель
- Связанные вопросы и ответы
- Что такое профильная труба и как она используется для строительства теплицы
- Какие материалы необходимы для строительства теплицы из профильной трубы
- Как выбрать подходящий размер и форму теплицы из профильной трубы
- Как правильно расположить профильную трубу для строительства теплицы
- Как обеспечить достаточное освещение и вентиляцию в теплице из профильной трубы
Строительство теплицы из профильной трубы: подробный самоучитель
Чертежи в большинстве случаев составляются по стандартным размерам – от 300 до 1200 см. Рекомендуется выяснять этот показатель у изготовителей или продавцов, чтобы не переплачивать за лишний материал и не оставлять обрезков.
На планах следует четко отображать:
- основание;
- направленные вертикально стойки;
- кровлю;
- верхнюю обвязку;
- дверь;
- окна и форточки;
- распорки.
При составлении проекта стоит обратить внимание на уровень освещенности. Любая теплица должны быть направлена строго к югу. Допустимый перепад поверхности составляет максимум 100 мм. В соответствии со схемой проводится разметка создаваемой постройки. Для этого используются колья и веревка. Если проверять намеченные линии по диагонали, можно сделать все достаточно ровно.
Совсем не обязательно использовать все профили с сечением 40 на 20, 20х20 либо 40х40 мм. Такие элементы благодаря относительно толстому корпусу (от 0,2 см) достаточно крепки. Горизонтальные стяжки можно делать из профиля сечением от 1 до 1,5 мм, потому что исключительные показатели не требуются.
При расчете высоты постройки ориентируются в первую очередь на рост владельца дачи или загородного дома. Обычно исходят из того, что потолок следует делать на 0,3 – 0,4 м выше пользующихся парником, потому значения могут колебаться от 190 до 250 см.
Подсчет размеров имеет еще одну тонкость – приспособление к отделочному материалу. Когда каркас обтягивают пленкой, это не имеет большого значения, а вот при использовании поликарбоната важно добиваться, чтобы размеров материала хватило для накрытия всей высоты без срезания или добавки. Типичный лист сотового поликарбоната имеет длину 6 м. В случае с арочным парником нужно применять формулу для вычисления длины окружности. Стоит учесть, что высота 2 м обычно оказывается избыточной, а вот 190 см – подходит практически идеально.
При подготовке к строительству двухскатной сборной теплицы рекомендуется учитывать свойства грунта. Самые лучшие результаты достигаются при монтаже на сухих участках, поскольку при всей защищенности несущих конструкций лучше не подвергать их суровым испытаниям. Песчаная почва превосходит глинистую, поскольку не так сильно заболачивается.
Наиболее длинную сторону конструкции стараются направлять на юг, так внутрь будет проникать максимум солнечного света. Сохранять тепло внутри теплицы и облегчать передвижение по ней помогает размещение двери в торце.
Как показывает практика тысяч садоводов, дверцу следует делать шириной хотя бы 0,7 – 0,8 м. Что касается высоты, она определяется общими габаритами сооружения. Если намечено построить капитальный парник, своеобразный тамбур или коридор выгоден по двум причинам: он образует дополнительную прослойку воздуха (тепловой барьер) и может использоваться как место для хранения инвентаря. При открытии дверей этот шлюз уменьшит потери тепла.
Связанные вопросы и ответы:
Вопрос 1: Какие материалы необходимы для строительства теплицы из профильной трубы
Ответ: Для строительства теплицы из профильной трубы потребуются следующие материалы: профильная труба, кровельный лист, оконные рамы, дверные рамы, стеклопакеты, крепежные материалы (болты, саморезы, шурупы), изоляционный материал (например, пенопласт), шпаклевка или другое смолоподобное вещество для герметизации.
Вопрос 2: Как выбрать подходящую площадку для строительства теплицы из профильной трубы
Ответ: При выборе площадки для строительства теплицы из профильной трубы следует учитывать солнечную освещенность, уровень грунтовых вод, удобство доступа к теплице. Лучше всего выбрать место, где теплица будет находиться на юго-западной стороне участка, чтобы максимально использовать солнечный свет. Также нужно учитывать, чтобы грунтовые воды не поднимались выше уровня основания теплицы, чтобы избежать ее повреждения.
Вопрос 3: Как построить фундамент для теплицы из профильной трубы
Ответ: Для строительства фундамента теплицы из профильной трубы можно использовать бетонные блоки, камень или бетон. Первым шагом будет подготовка площадки для фундамента, затем выровнять ее и уложить дренажную систему. Затем устанавливаются бетонные блоки или камень, которые образуют фундамент. После этого накладывается слой бетонной смеси и оставляется высохнуть.
Вопрос 4: Как собрать каркас теплицы из профильной трубы
Ответ: Сборка каркаса теплицы из профильной трубы начинается с установки стоек, которые будут поддерживать каркас. Затем устанавливаются профилированные трубы, которые образуют каркас теплицы. Затем устанавливаются оконные и дверные рамы, которые будут поддерживать стеклопакеты. Затем устанавливаются крепежные материалы, такие как болты, саморезы и шурупы, которые будут держать каркас вместе.
Вопрос 5: Как установить кровельный лист на теплицу из профильной трубы
Ответ: Для установки кровельного листа на теплицу из профильной трубы нужно сначала установить кровельные балочные системы, которые будут поддерживать кровельный лист. Затем устанавливается кровельный лист, который будет крепиться к балочным системам с помощью саморезов и шурупов. Затем устанавливается изоляционный материал, такой как пенопласт, который будет предотвращать теплопотерю.
Вопрос 6: Как установить стеклопакеты на теплицу из профильной трубы
Ответ: Для установки стеклопакетов на теплицу из профильной трубы нужно сначала установить оконные и дверные рамы, которые будут поддерживать стеклопакеты. Затем устанавливаются стеклопакеты, которые будут крепиться к рамам с помощью саморезов и шурупов. Затем устанавливается изоляционный материал, такой как пенопласт, который будет предотвращать теплопотерю. Затем устанавливается шпаклевка или другое смолоподобное вещество для герметизации, чтобы предотвратить проникновение влаги.
Что такое профильная труба и как она используется для строительства теплицы
При монтаже каркаса из профильной трубы необходимо придерживаться определенного порядка действий:
Этап первый – подготовка площадки и разметка
Выбранный для строительства участок расчищают от мусора, камней, растительности. Поверхность выравнивают, в крайнем случае допускается небольшой уклон в 10 см.
Разметку осуществляют с помощью колышков, которые вбивают в землю по периметру будущего сооружения
Вбив колышки и натянув веревку, проверяют равенство противоположных сторон и диагоналей четырехугольника. С размеченной площадки снимают дерн, перекапывают грунт, слегка утрамбовывают его или ждут несколько недель, пока земля осядет сама.
Этап второй – фундамент
Для тяжелого каркаса из профильной трубы лучший вариант фундамента – ленточный или свайный. Такой выбор позволяет укрепить конструкцию, сделать ее максимально долговечной, защитить от порывов ветра.
Сваи используют в регионах со слабым, «плывущим» грунтом или там, где он слишком крепкий, каменистый, сложный для рытья траншей. Опоры устанавливают по периметру с шагом 70-90 см, выравнивают края, находящиеся над поверхностью, с помощью уровня. После монтажа свай на них укладывают обвязку из бруса или приваривают профильные трубы большого сечения.
Для теплицы средних размеров используют сваи длиной 1,2-1,4 м
Заливку ленточного фундамента начинают с подготовки траншеи глубиной 0,5 м, шириной 0,3 м. На дно насыпают слой щебенки (10 см) и песка (10 см), проливают водой, утрамбовывают. Сверху укладывают полиэтиленовую пленку или рубероид. Опалубку монтируют из картона, теса, досок или фанеры и заливают цементным раствором. Она должна возвышаться над поверхностью грунта на 10-20 см.
Через неделю, после того как бетон «схватится», верхнюю часть фундамента накрывают гидроизоляционным материалом, а боковые стороны обмазывают расплавленным битумом. Для крепежа каркаса из труб в основание перед заливкой заранее монтируют анкерные болты или шпильки.
Какие материалы необходимы для строительства теплицы из профильной трубы
Прежде чем приступать к изготовлению теплицы из профильной трубы своими руками, стоит обратить внимание на некоторые дополнительные условия вашего участка. В частности, может иметь значение тип почвы. Предпочтительнее устанавливать теплицу на сухой почве, где не скапливается избыточная влага, которая может влиять на несущие конструкции. Оптимально устанавливать парник на песчаных грунтах, в отличие от глинистых, склонных к заболачиванию.
Имеет значение и расположение теплицы относительно сторон света. Так, лучше всего, чтобы длинная сторона была обращена к югу, чтобы в теплицу проникало как можно больше солнечных лучей, которые не будут отражаться от поликарбонатных листов.
Для того чтобы тепло не выходило из теплицы слишком быстро, и в ней было удобно перемещаться, входную дверь обычно располагают в торцевой части. По стандартам, ширина двери должна быть не уже 70-80 см, а вот высота ее напрямую зависит от размеров самой теплицы.
Если вы планируете возведение более-менее капитальной теплицы из профтрубы, то в ней можно дополнительно соорудить небольшой коридорчик или тамбур. В нем можно будет хранить инструменты и прочие мелочи. К тому же, такое пространство позволит сохранить тепло при открывании двери в саму теплицу.
Каркас для сооружения парника из профильной трубы своими руками нужно располагать на ленточном или столбчатом фундаменте, тип которого будет зависеть от типа грунта. В любом случае, с участка под фундамент нужно убрать мусор и снять верхний слой почвы.
Как выбрать подходящий размер и форму теплицы из профильной трубы
Организация качественной вентиляции и постоянного воздухо-обмена в зоне выращивания растений служит залогом продуктивной работы теплиц. Автоматические системы вентиляции теплиц можно разделить на три основные группы: принудительная и естественная с гидравлическими и биметаллическими механизмами открытия вентиляционных отверстий.
Вентиляция в теплицах определяет много важных параметров для успешного роста растений: интенсивность удаления отработанного воздуха и подачи свежего, температуру и влажность воздуха, предотвращение распространения болезней. Чрезмерно влажный застойный воздух является наиболее благоприятной средой для развития и распространения болезнетворных бактерий. При слабой циркуляции или недостаточном поступлении свежего воздуха, повышение уровня влажности на поверхности листьев позволяет бактериям свободно проникать внутрь растений и постепенно «убивать» их.
Чрезмерно влажный застойный воздух является наиболее благоприятной средой для развития и распространения болезнетворных бактерий. При слабой циркуляции или недостаточном поступлении свежего воздуха, повышение уровня влажности на поверхности листьев позволяет бактериям свободно проникать внутрь растений и постепенно «убивать» их.
Для того чтобы минимизировать появление, распространение и вредоносное воздействие насекомых необходимо не только организовать эффективный приток-вытяжку воздуха, но и его равномерное распространение по всей посевной площади теплицы. Один из вариантов создания такой циркуляции – установка стационарного или напольного осевого вентилятора, который обеспечит постоянное движение воздуха над посевной площадью и уменьшит время пребывания вредителей на растения.
Для среднестатистической теплицы будет достаточно использование одного вытяжного вентилятора, а приток воздуха обеспечить через вентиляционное отверстие.
Выбор подходящего размера и формы теплицы из профильной трубы
При выборе размера и формы теплицы из профильной трубы необходимо учитывать несколько факторов, чтобы обеспечить оптимальные условия для роста растений.
Факторы, влияющие на выбор размера и формы теплицы
- Цели использования теплицы (выращивание овощей, цветов, рассады)
- Количество растений, которые планируется выращивать
- Виды растений и их размеры
- Климатические условия и температура в регионе
- Наличие свободного места на участке
- Бюджет на строительство и оборудование теплицы
Общие рекомендации по выбору размера и формы теплицы
Для небольшого участка подойдет теплица размером 3х6 метров или 4х8 метров. Для более крупного участка можно выбрать теплицу размером 6х12 метров или 8х16 метров.
Форма теплицы также важна. Самая распространенная форма - прямоугольная, но можно также выбрать квадратную или круглую форму.
Преимущества использования профильной трубы для строительства теплицы
- Профильная труба прочная и долговечная
- Легко монтируется и демонтируется
- Может быть использована для строительства теплиц различной формы и размера
- Имеет низкую стоимость по сравнению с другими материалами
Организация вентиляции в теплице
Вентиляция в теплице необходима для обеспечения постоянного воздухообмена и удаления излишков углекислого газа. Для этого можно использовать различные системы вентиляции, такие как:
- Принудительная вентиляция с помощью вентиляторов
- Естественная вентиляция с помощью окон и дверей
- Гидравлические и биметаллические механизмы открытия вентиляционных отверстий
Установка осевого вентилятора
Для обеспечения равномерного распространения воздуха по всей посевной площади теплицы можно установить стационарный или напольный осевой вентилятор.
Это позволит:
- Уменьшить время пребывания вредителей на растениях
- Повысить эффективность вентиляции
- Снизить риск заболеваний растений
Как правильно расположить профильную трубу для строительства теплицы
Работа в теплице чаще протекает по принципу: я разогнулся посмотреть, не разогнулась ли она, чтоб посмотреть не разогнулся ли я. Поэтому важно для облегчения и максимального комфорта труда правильно рассчитать высоту сооружения. Оптимально, если человек встанет в полный рост + 300-400 мм.
 Подробный чертеж арочной постройки
Подробный чертеж арочной постройки 
Средняя эргономичная высота арочной теплицы – 1,9-2,4 метра – это по сути радиус сгиба поликарбонатного листа. Вспоминаем формулу длины окружности: L= π*D, где π – 3,14, D – диаметр = 2 радиусам.
Допустим, высота теплицы из профтрубы – 2 м, тогда L (длина окружности) = 3,14*4 = 12,56 м. Нам требуется половина этой длины — 12,56:2 = 6,28 м. Но это не рационально при использовании обшивки из поликарбоната, получается, что одного листа длина которого 6,0 м не хватит, придется дотачивать небольшую полосу, то же со стандартной длиной профтрубы. Чтобы избежать лишних затрат, необходимо уменьшить высоту теплицы, рационально если, Н=1,85-1,9 м, при ширине постройки 3,7-3,8 м.
 Схема теплицы из профильной трубы, своими руками такую конструкцию можно изготовить практически без отходов материала
Схема теплицы из профильной трубы, своими руками такую конструкцию можно изготовить практически без отходов материала 
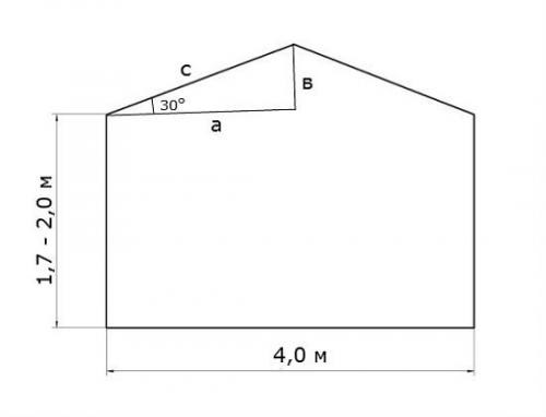
Для двускатной кровли расчет высоты зависит от уклона крыши, для разных регионов, в зависимости от ветровой и снеговой нагрузок, обычно укос составляет 30-45 о . Удобная высота прямой стены – 1,7-2 метра до нижнего края стропила. На примере просчитаем общую высоту теплицы из профильной трубы до конька.
Допустим, уклон двускатной крыши составляет 30 о , ширина теплицы 4 м. По теореме Пифагора: с 2 =а 2 +в 2 , где с – гипотенуза (длина одного ската), а – катет (перпендикуляр от края каркаса из профтрубы до середины), в – катет (высота от конька до прямой стены по перпендикуляру). В нашем случае: а = 4:2 = 2 метра. Из геометрии: катет, лежащий напротив угла в 30 о , равен половине гипотенузы. Составляем уравнение:
с=2х, отсюда (2х) 2 = 2 2 +х 2 , 4х 2 = 4+х 2 , 3х 2 = 4, х2 = 4:3, х = √1,33(3) = 1,154 м – это длина гипотенузы, значит, катет в = 0,58 м, отсюда общая высота теплицы из профтрубы: 2+0,58=2,58 м.
 Изготовление теплицы из профильной трубы, чертеж стандартной двускатной постройки
Изготовление теплицы из профильной трубы, чертеж стандартной двускатной постройки 
Отметим важный нюанс, скат крыши должен на 100-300 мм быть длиннее чем сама теплица, поэтому его длина = 1,154+0,1(0,3) = 1,25-1,45 м – это необходимо учесть при раскрое профильной трубы для стропильной системы теплицы.
Работа в теплице часто протекает по принципу: я разогнулся посмотреть, не разогнулась ли она, чтоб посмотреть не разогнулся ли я. Поэтому важно для облегчения и максимального комфорта труда правильно рассчитать высоту сооружения. Оптимально, если человек встанет в полный рост + 300-400 мм.
Эргономичная высота арочной теплицы
Средняя эргономичная высота арочной теплицы – 1,9-2,4 метра – это по сути радиус сгиба поликарбонатного листа. Вспоминаем формулу длины окружности: L= π*D, где π – 3,14, D – диаметр = 2 радиусам.
Допустим, высота теплицы из профтрубы – 2 м, тогда L (длина окружности) = 3,14*4 = 12,56 м. Нам требуется половина этой длины — 12,56:2 = 6,28 м. Но это не рационально при использовании обшивки из поликарбоната, получается, что одного листа длина которого 6,0 м не хватит, придется дотачивать небольшую полосу, то же со стандартной длиной профтрубы. Чтобы избежать лишних затрат, необходимо уменьшить высоту теплицы, рационально если, Н=1,85-1,9 м, при ширине постройки 3,7-3,8 м.
Двускатная кровля
Для двускатной кровли расчет высоты зависит от уклона крыши, для разных регионов, в зависимости от ветровой и снеговой нагрузок, обычно укос составляет 30-45 о . Удобная высота прямой стены – 1,7-2 метра до нижнего края стропила.
На примере просчитаем общую высоту теплицы из профильной трубы до конька.
Допустим, уклон двускатной крыши составляет 30 о , ширина теплицы 4 м. По теореме Пифагора: с 2 =а 2 +в 2 , где с – гипотенуза (длина одного ската), а – катет (перпендикуляр от края каркаса из профтрубы до середины), в – катет (высота от конька до прямой стены по перпендикуляру).
В нашем случае: а = 4:2 = 2 метра. Из геометрии: катет, лежащий напротив угла в 30 о , равен половине гипотенузы. Составляем уравнение:
      с 2 = 2 2 + в 2
    
    Решая уравнение, получаем:
      с = √(2 2 + в 2)
    
    Таким образом, гипотенуза (длина одного ската) составляет 2,55 метра.
Как обеспечить достаточное освещение и вентиляцию в теплице из профильной трубы
На рынке сегодня имеется большое разнообразие теплиц с каркасами из металлического профиля (оцинкованного или окрашенного), дерева, алюминия и полимеров.
Сделать правильный выбор покупателям среди такого разнообразия очень непросто. Кажется, что все предлагаемые варианты хороши. Недобросовестные производители и продавцы соблазнительно расписывают преимущества своих конструкций, сознательно умалчивая о недостатках. Ведь им надо реализовать свою продукцию.
Нужно понимать, что . Чем он прочнее, тем надёжнее, долговечнее, устойчивее и безопаснее теплица. Именно к нему крепится покрытие. Слабый каркас при деформации разрушит кроющий материал и Вам придётся не только покупать новую теплицу, но и заниматься вывозом крупногабаритного мусора.
Следует учесть достоинства и недостатки каждого вида.
| Возможность монтажа без фундамента | - | + | - | - | + | 
Взглянув на плюсы и минусы можно сделать вывод что оптимальным вариантом для теплиц является металлический каркас.
Зачищенный цинковым покрытием металлический профиль — проверенное практическое решение, которое способно обеспечить теплице:
- необходимые размеры пo длине, ширине и высоте;
- удобство и простоту самостоятельного монтажа;
- высокую устойчивость к механическим повреждениям и весовым нагрузкам;
- малый вес конструкции;
- прочность и долговечность.
Оцинкованный металл, в отличие от традиционных деревянных опор, не может заболеть грибком, покрыться плесенью или заразиться болезнетворными организмами, которые губительно влияют, как на растения, так и на саму несущую конструкцию.
Мы рассмотрим виды металлических профилей, применяемых для изготовления каркасов теплиц.
По типу каркаса различаются теплицы из профильной замкнутой трубы прямоугольного или квадратного сечения и теплицы из V, П-образного профиля.



Труба с большим диаметром используется в.

Сразу следует отметить что самым надежным способом защиты металла от коррозии (ржавчины) является оцинкование. Металл, защищенный цинком, не ржавеет, его не нужно дополнительно обрабатывать по прошествии скольких-то лет. Хороший оцинкованный метал практически неуязвим и простоит более 50 лет.
Не стоит рассматривать теплицы из черного металла, окрашенные или обработанные каким-либо видом защиты от внешней среды. В теплице создается очень влажный климат, никакая краска, грунтовка не способны противостоять агрессивной влажной среде и металл быстро приходит в негодность. В течении 2-х лет весь каркас придется заново зачищать, заново все перекрашивать, для этого потребуется теплицу еще и разобрать и т.д., т.е. это того не стоит.
Металлоёмкость любой конструкции сильно влияет на её конечную цену и вес. Т.е. чем больше металлических элементов, тем крепче каркас. Чем толще труба, тем больше вес и выше прочность. Получается прямая зависимость: чем больше вес каркаса, тем он прочнее и дороже.
Наверное, всем будет понятно, что лучшие показатели на жёсткость, прочность, стойкость на изгиб и кручение, будут в замкнутой трубе.
Прочность металлопрофиля квадратной формы можно регулировать не только с помощью подбора ширины стороны квадрата, но и толщиной стенки.
Пример испытания профилей под нагрузкой. Испытывать будем V образный профиль, трубу 20х20, трубу 40х20 и трубу 40х20 с дополнительным ребром жесткости.

Вес кирпича 4,6 кг.
Испытываются трубы с одинаковой толщиной стенки 0,7мм.