Как построить каркасный дачный домик своими руками: Часть 1
- Как построить каркасный дачный домик своими руками: Часть 1
- Связанные вопросы и ответы
- Как выбрать подходящее место для строительства каркасного дачного домика
- Какие материалы лучше всего использовать для каркаса и обшивки домика
- Какие инструменты и материалы необходимы для начала строительства
- Сколько времени занимает постройка каркасного домика своими руками
- Какие плюсы и минусы у каркасных дачных домиков по сравнению с другими типами
- Как подготовить участок для строительства каркасного домика
- Какие этапы строительства будут рассмотрены в первой части
- Какие основные ошибки следует избегать при строительстве каркасного домика
- Какие инструменты необходимы для сборки каркаса
- Как правильно собрать каркас для дачного домика
- Как разработать проект каркасного дачного домика
Как построить каркасный дачный домик своими руками: Часть 1
Каркасные дачные домики становятся все более популярными среди любителей загородного отдыха. Они сочетают в себе доступность, простоту строительства и возможность создать уютное и комфортное жилье. В этой статье мы рассмотрим основные этапы строительства каркасного домика, начиная с подготовки участка и заканчивая сборкой каркаса. Это первая часть руководства, которая поможет вам начать строительство и разобраться с основными нюансами.
Преимущества каркасных домиков
Перед тем как приступить к строительству, стоит понять, почему каркасные домики так популярны. Вот основные преимущества:
- Доступная стоимость. Каркасные домики намного дешевле, чем традиционные кирпичные или деревянные дома.
- Простота и скорость строительства. Все элементы можно подготовить заранее и собрать на месте, что ускоряет процесс.
- Легкость транспортировки. Все материалы можно легко перевезти на участок.
- Энергоэффективность. Каркасные домики хорошо сохраняют тепло благодаря слоям изоляции.
- Гибкость. Вы можете легко изменить планировку или добавить дополнительные элементы.
Необходимые материалы и инструменты
Для строительства каркасного домика вам понадобятся следующие материалы и инструменты:
Материалы:
| Материал | Количество | Примечание |
|---|---|---|
| Брус 100x100 мм | В зависимости от размера домика | Для каркаса стен и кровли |
| Брус 50x50 мм | В зависимости от размера домика | Для обрешетки крыши |
| Вагонка | В зависимости от размера домика | Для обшивки стен |
| Кровельное покрытие | В зависимости от площади крыши | Металлочерепица, шифер или другие материалы |
| Изоляция | В зависимости от размера домика | Минвата или пенопласт |
| Гвозди и саморезы | В достаточном количестве | Для сборки каркаса |
Инструменты:
- Кирка или молоток
- Дрель
- Пила
- Измерительная лента
- Угольник
- Шуруповерт
Подготовка участка
Перед началом строительства необходимо подготовить участок. Это включает в себя:
- Очистку территории от мусора и растительности.
- Разметку участка в соответствии с проектом.
- Подготовку фундамента. Для каркасного домика можно использовать столбчатый фундамент или фундамент из бетонных блоков.
Разметка участка
Для разметки участка можно использовать веревку и колышки. Убедитесь, что все углы равны 90 градусам, используя угольник. После разметки можно приступить к подготовке фундамента.
Подготовка фундамента
Для каркасного домика чаще всего используют столбчатый фундамент. Для этого необходимо:
- Выкопать ямы под столбы глубиной около 50 см.
- Засыпать ямы песком и утрамбовать.
- Установить бетонные столбы или деревянные столбы, обработанные антисептиком.
Сборка каркаса
После подготовки фундамента можно приступить к сборке каркаса. Это один из самых важных этапов строительства.
Сборка фундамента каркаса
На подготовленные столбы необходимо установить нижнюю обвязку. Для этого используют брус 100x100 мм. Обвязку собирают с помощью гвоздей или саморезов, убедившись, что все углы прямые.
Установка опорных столбов
На нижнюю обвязку устанавливаются опорные столбы, которые будут поддерживать крышу. Столбы также изготавливаются из брус
Связанные вопросы и ответы:
Вопросы и ответы на тему "Каркасный дачный домик своими руками Ч.1"
#Вопрос 1: Какие материалы лучше всего использовать для строительства каркасного дачного домика?
Для строительства каркасного дачного домика рекомендуется использовать качественные материалы, которые обеспечат прочность и долговечность конструкции. Основой каркаса могут служить бруски из дерева, такие как сосна или ель, обработанные антисептиками для защиты от гниения и насекомых. Обшивку стен можно выполнять с использованием влагостойкой фанеры или OSB-плит. Крыша может быть покрыта металлочерепицей, ондулином или битумными черепицами. Внутренняя отделка может быть выполнена из гипсокартона или деревянных вагонок, а для утепления лучше использовать пенопласт или минеральную вату. Все материалы должны быть выбраны с учетом климатических условий и личных предпочтений.
#Вопрос 2: Какие этапы строительства каркасного домика являются самыми важными
Строительство каркасного домика включает несколько ключевых этапов, каждый из которых важен для создания прочной и комфортной конструкции. Первым шагом является подготовка участка: очистка территории, выравнивание земли и устройство фундамента, который может быть столбчатым или свайным. Далее следует сборка каркаса walls и крыши, которая требует точности и внимания к деталям. Утепление и гидроизоляция стен и крыши являются следующими важными этапами, так как они обеспечивают тепло и сухость помещения. После этого устанавливается двери и окна, а затем выполняется внутренняя и внешняя отделка. Каждый этап требует тщательного подхода и соблюдения технологии.
#Вопрос 3: Как выбрать подходящий проект каркасного домика для дачи
Выбор проекта каркасного домика зависит от нескольких факторов, включая размер участка, бюджет, климатические условия и личные предпочтения. Начать стоит с определения необходимой площади и количества комнат. Если участок небольшой, можно рассмотреть компактные проекты с мансардой или вторым уровнем. Также важно учитывать расположение окон и дверей для обеспечения естественного света и вентиляции. Проект должен быть адаптирован к местному климату: например, в регионах с холодными зимами стоит выбирать домики с более толстыми стенами и надежной крышей. Кроме того, можно воспользоваться готовыми проектами или заказать индивидуальный у архитектора.
#Вопрос 4: Какие инструменты и материалы необходимы для строительства каркасного домика
Для строительства каркасного домика потребуется набор инструментов и материалов, которые обеспечат качественное выполнение работ. Основные инструменты включают дрель, шуруповерт, лобзик, ножовку, молоток, уровень, рулетку и строительный степлер. Из материалов необходимы деревянные бруски для каркаса, фанера или OSB-плиты для обшивки, утеплитель (пенопласт или минеральная вата), гидроизоляционные материалы (например, рубероид), кровельные материалы (металлочерепица, ондулин), двери и окна, а также материалы для внутренней отделки (гипсокартон, вагонка). Также не обойтись без строительных смесей, таких как цемент и песок для фундамента.
#Вопрос 5: Как правильно подготовить участок для строительства каркасного домика
Подготовка участка для строительства каркасного домика включает несколько шагов, которые обеспечивают стабильность и долговечность конструкции. Сначала необходимо очистить территорию от мусора, деревьев и кустарников. Затем проводится разметка участка в соответствии с проектом, используя колышки и веревку. Далее выполняется выравнивание земли, при необходимости с удалением верхнего слоя почвы. Если грунт мягкий или влажный, может потребоваться устройство песчаной подушки. После этого приступают к строительству фундамента, который может быть столбчатым, свайным или ленточным, в зависимости от типа грунта и проекта. Все работы должны выполняться с соблюдением строительных норм и правил.
#Вопрос 6: Какие преимущества и недостатки имеет каркасный дачный домик
Каркасный дачный домик имеет множество преимуществ, таких как легкость и скорость строительства, доступная стоимость материалов и возможность самостоятельного возведения. Он также экологичен, так как основой являются деревянные конструкции. Однако у каркасных домиков есть и недостатки. Например, они могут быть менее прочными, чем кирпичные или каменные дома, и требуют более тщательного ухода. Кроме того, деревянные конструкции могут быть подвержены гниению и повреждению от насекомых, если не обработаны должным образом. Также каркасные домики могут быть менее теплыми в холодное время года, если не обеспечено качественное утепление.
#Вопрос 7: Как правильно собрать каркас walls и крыши для дачного домика
Сборка каркаса walls и крыши для дачного домика требует внимания и точности. Начать стоит с установки нижней обвязки, которая закрепляется к фундаменту анкерами. Далее устанавливаются вертикальные стойки, которые связываются между собой верхней обвязкой. Все соединения должны быть надежными, для чего можно использовать металлические уголки или гвозди. После сборки стен приступают к установке крыши, которая может быть наклонной или двускатной. Крыша состоит из обрешетки и стропил, которые закрепляются к стенам. Все элементы должны быть выверены по уровню и надежно закреплены, чтобы обеспечить устойчивость конструкции.
#Вопрос 8: Как обеспечить качественную изоляцию и утепление каркасного домика
Обеспечение качественной изоляции и утепления каркасного домика является важным этапом, который влияет на комфорт и энергоэффективность помещения. Для утепления стен можно использовать пенопласт или минеральную вату, которые укладываются между стойками каркаса. Важно обеспечить герметичность соединений, чтобы избежать продувания. Крыша также должна быть утеплена, для чего можно использовать те же материалы. Гидроизоляция стен и крыши выполняется с использованием специальных мембран, которые защищают домик от влаги. Кроме того, стоит установить качественные окна и двери, чтобы минимизировать теплопотери. Все работы должны выполняться в соответствии с технологией и с использованием качественных материалов.
Как выбрать подходящее место для строительства каркасного дачного домика
В предыдущей статье я рассказал как правильно подойти к выбору участка. В этой я расскажу как мы определяли место для застройки дома на участке.
Итак, вы приобрели участок и уже выбираете место, где поставить дом. Не торопитесь это делать, пока не увидите ГПЗУ - это документ информационного характера, который необходимо получить в органе местного самоуправления по месту нахождения земельного участка или на портале Госуслуг до начала проектирования, строительства или реконструкции объектов недвижимости на таком участке. В нем приводятся сведения обо всех характеристиках земельного участка, предназначенного для застройки, а также сведения о месте допустимого размещения будущего объекта капитального строительства. В нем будет страница с чертежом градостроительного плана земельного участка, где будет указана чёткая зона, на которой можно что-то строить. Вот так на примере моего участка выглядел чертеж (фото 1)
Клеткой обозначена зона, где я могу строить капитальный объект. Справа полосками обозначена часть охранной зоны линий электропередач, в этой зоне строить нельзя. Так же по периметру обозначены отступы от границ участка, где строить нельзя: по 3 метра со всех сторон, а от границы, которая выходит на дорогу 5 метров.
Но это ещё не всё! Даже зная о предполагаемом возможном месте возведения дома на участке, вы обязаны до начала строительства получить разрешение на строительство (РНС). На ИЖС это обязательно, а вот на СНТ можно строить практически как угодно, а потом зарегистрировать дом по "Дачной амнистии". Получить РНС можно в местной администрации района. Для этого вам потребуется:
1) ГПЗУ
2) Постановление об утверждении ГПЗУ (выдаётся вместе с ГПЗУ)
3) Заявление на выдачу Разрешерия На Строительство (пишите там в кабинете)
4) Документы на участок: свидетельство или выписка из ЕГРН (ЕГРП)
5) Схема планировочной организации земельного участка с обозначением места размещения индивидуального жилого дома.
Последний пункт меня вводил в ступор, как и чего указывать, многих спрашивал и многие отвечали, что это надо заказывать в фирме, чтоб они все четко обозначили, иначе не примут документы. В итоге, попытка не пытка, отсканировал ГПЗУ, сам обозначил место застройки в фоторедакторе, указав все размеры и вот что у меня получилось (фото 2), что в последствии сдал в администрацию и все приняли. Ну естественно не просто картинку, а как полагается с шапкой, адресом, описанием габаритов и этажности дома.
Итак, мы приняли решение о переезде загород, выбрали и купили участок, получили разрешение на строительство и знаем какого размера примерно будет дом. Теперь приступаем к планировке самого дома и его помещений, но об этом я расскажу в своей следующей статье.


Какие материалы лучше всего использовать для каркаса и обшивки домика
После установки силового каркаса стены необходимо утеплить. Для этого вида работ в каркасном доме выбирают один из материалов:
- Минвата , она же каменная или базальтовая вата из вулканических пород. Выпускается в плитах и рулонах, хорошо держит форму, безвредна, срок службы утеплителя 50 лет.
- Стекловата — похожа на минеральную, но изготавливается из расплавленного стекла и может нанести вред здоровью при работе без защиты органов дыхания.
- Эковата изготавливается из целлюлозы, пропитанной специальными составами, защищающими от огня и вредителей. Но монтаж сложнее, а прочность ниже.
Frame House рекомендует минераловатный утеплитель «КНАУФ ПРОФ TS 037 Aquastatik». Он гипоаллергенный, не дает усадки, выпускается с защитой волокон от намокания. При строительстве мы используем его со следующей толщиной:
- пол 200 мм;
- внешние стены 150 мм;
- перегородки 100 мм;
- межэтажное перекрытие (для двухэтажных проектов) 200 мм;
- потолок 250 мм.
В качестве обшивки каркасного дома используют материалы по бюджетным ценам. Это могут быть:
- водостойкая фанера из березового или хвойного шпона с использованием специальных клеевых составов и смол;
- ориентированно-стружечная плита (OSB) из тонких щепок, склеенных в продольном направлении на поверхностных слоях и в поперечном во внутренних с помощью смолы с добавлением борной кислоты и синтетического воска;
- гипсокартон для внутренней отделки и перегородок.
Сотрудники Frame House применяют в отделке стен и потолка имитацию бруса 18 х 145 мм, сорт AB карельский профиль (возможна замена на гипсокартон).
Для мокрых зон (ванна и кухня) используют влагостойкий гипсокартон Knauf, а финишную отделку стен и пола керамической плиткой наши клиенты получают в подарок.
Какие инструменты и материалы необходимы для начала строительства
Решив построить дом своими силами либо прибегнув к помощи друзей, родственников, важно учитывать множество моментов не только с проектировкой, сметой и покупкой строительного материала. Нужно внести в список расходов необходимы инвентарь, а именно строительный инструмент на начальных этапах строительства.
Строительный инвентарь – помощник строителю, который решил построить дом «в одну каску». Это и оборудования для перемещения металлических листов, брусьев, кирпичей, газоблоков и так далее. Понадобится и различные приспособления для разрезки строительного материала.
Плиткорез
Один из востребованных отделочных материалов – кафель. Его укладка не обходится ни без шпателя, ни без миксера для замеса смеси, ни без плиткореза . Последний инструмент предназначен для идеально ровного разрезания кафельных плиток, стекла и камня.

Конструкция плиткореза состоит из рамы с двумя трубками и рельса. По горизонтальным линиям передвигается каретка, внутри которой имеется режущее устройство. Именно по типу режущего элемента плиткорез разделяется на виды:
- Делает прямые срезы;
- Углубления, выемки;
- Обрезает плитку дугой и так далее.
Кроме механического есть еще и электроплиткорез с расширенным функционалом. Они бывают мобильного или стационарного типа со своими конструктивными особенностями.
Строительный пылесос
При проведении строительных работ также понадобится строительный пылесос . Вещь необязательная, но очень полезная. Строительный пылесос необходим при сверлении, а также во время шлифовальных работ, так как после них образуется большое количество пыли, которую полностью вычистить ручным способом не получится.
Однако его функционал значительно шире. Его используют для влажной и сухой уборки помещений с большой площадью, например, в торговых центрах. Устройство предназначено для устранения твердого и жидкого мусора. Он обладает вместительным баком, мощным движком. При покупке лучше присмотреться к универсальным моделям, предназначенным для удаления любого типа мусора.
Отбойный молоток
Для дробления твердых материалов (камень, кирпич, бетон и так далее) используют отбойный молоток . Внешне он напоминает обычную дрель или перфоратор, с той лишь разницей, что подвижная пика у него не вращается, а производит ударные действия.

По своей конструкции отбойные молотки бывают:
- Пневматическими;
- Электрическими;
- Работающими на бензине.
Наиболее популярны электрические устройства благодаря простоте обслуживания и большей рабочей способности. Несмотря на высокую разрушительную мощь, вибрация в держателе у них низкая.
Это лишь малая часть того, что понадобится при проведении строительных и ремонтных работ. Для эффективности выполнения следует выбирать не только правильный, но и качественный инструмент.
Сколько времени занимает постройка каркасного домика своими руками
1) Имея представление о последовательности рабочих этапов по возведению каркасного жилого дома, можно прогнозировать примерные сроки завершения проекта. Первоначальной стадией можно считать проектирование, которое основано на характеристиках участка и пожеланиях клиента. При разработке проекта рассчитываются и обозначаются абсолютно все параметры будущего жилища:
- планировка комнат;
- высота потолков;
- размеры оконных и дверных проемов;
- места ввода коммуникаций;
- вид кровельной системы;
- схема отопления со всеми устройствами и элементами;
- тип вентиляции, ее выходы и т.д.
Имея на руках подробный план каркасного дома, можно легко определить расход строительных и отделочных материалов, крепежей и прочих комплектующих. Фундамент проектируется, исходя из максимальной нагрузки (суммируется масса каркаса, предполагаемой бытовой техники, мебели и т.д.).
Важно: при наличии в проекте дома газового котла для обогрева жилья или камина, под этими объектами рекомендуется устраивать отдельную усиленную опору.
Параллельно с проектированием инженер оценивает общую картину стройплощадки: подъездные пути, место складирования стройматериалов, участок сбора мусора и порядок размещения рабочих. Эти нюансы оговариваются с заказчиком до начала работ.

Срок разработки проекта в среднем составляет 2-3 недели (если используется индивидуальный).
2) Специалисты компании «Новгородская изба» всем видам фундаментных конструкций предпочитают свайно-винтовые. Во-первых, это практично и надежно (элементы погружаются в пласты почвы ниже точки промерзания). Во-вторых, работы могут выполняться в любую погоду и в любое время года (в отличие от устройства бетонного основания). И, наконец, свайный фундамент - бюджетный вариант с массой преимуществ.
Длительность строительства основания составляет в среднем 3-5 дней.

3) Основной этап формирования каркаса: строительство стен, перекрытия, устройство кровли. Сроки выполнения этих работ напрямую зависят от площади дома и наличия сложных дизайнерских решений. Средняя длительность составляет 1-3 недели.

4) Создание теплого контура - утепление всех поверхностей: стен снаружи и изнутри, межкомнатных перегородок, пола первого этажа и чердачного перекрытия. Эти работы выполняются за 4-7 дней.

5) Подключение инженерных коммуникаций - разводка электросети, монтаж газо- и водопровода, системы канализации и т.д. Проведение этих работ зависит от того, какие удобства включены в проект. Средний срок реализации - неделя.

6) Внутренняя и внешняя финишная отделка. Этот этап также по срокам зависит от того, какие материалы выбрал заказчик при подписании договора и от масштаба облицовочных работ. В среднем обычно с облицовкой специалисты компании «Новгородская изба» справляются за пару недель.

Какие плюсы и минусы у каркасных дачных домиков по сравнению с другими типами
Преимуществ у каркасных домов много, но и недостатков тоже хватает — эта технология далеко не идеальна, как бы продавцы каркасников ни хотели доказать обратное.
Горючий материал в основе
Каркасные дома сделаны из дерева, а это горючий материал. Пропитка антипиренами значительно повышает огнестойкость древесины, позволяя ей выдерживать воздействие открытого огня до 20 минут перед возгоранием. Плюс использование негорючего утеплителя, в котором каркас утоплен, во многом решает проблему. Но риск возгорания все равно выше, чем у дома с кирпичными стенами, утепленными такой же негорючей теплоизоляцией.
Часто нужна принудительная вентиляция
Каркасник — дом-термос. Это и его преимущество, и недостаток. Поскольку контур утепления замкнут, а стены проложены паро- и гидроизоляцией, воздухообмен в здании при закрытых окнах возможен только через вентиляцию.
Для небольших дачных домиков хватит и естественной, главное, чтобы она была правильно рассчитана и сделана. А вот в жилых коттеджах нужно делать принудительную вентиляцию, хотя бы на приток. Лучше — приточно-вытяжную. Иначе сырости в здании не избежать, не говоря уже о спертом воздухе. И это ключевая особенность проектирования каркасных домов.
Необходимость регулярной ревизии утеплителя
Каркасные дома обычно утепляют экологичными материалами: минеральной ватой, эковатой, даже соломой. А они при вертикальной укладке со временем проседают под действием силы тяжести, оставляя в верхней части стен пустоты. Поэтому утеплитель нужно периодически обновлять. Периодичность зависит от его вида и составляет 10-20 лет.

Требовательность к качеству древесины
Для устройства каркасных домов нужна хорошо высушенная, качественная древесина. А нередко пиломатериалы на российском рынке либо недосушенные, либо откровенно сырые. Если сделать каркас из такой древесины, его за год-два поведет, и вы получите художественно изогнутые стены и полы с растрескавшейся отделкой. Поэтому пиломатериалы нужно выбирать очень тщательно либо самостоятельно досушивать их до нормы
Древоточцы, муравьи и компания
Деревянный каркас, заполненный легким пористым материалом — отличный дом для насекомых и грызунов. Антисептическая пропитка бруса и досок — эта защита всего на несколько лет. До десяти лет, с учетом того, что деревянная рама утоплена в утеплителе. А дальше путь для насекомых открыт, и защитить от них может только качественная отделка стен.
Срок службы меньше, чем у традиционных материалов
Срок службы коробки кирпичного, каменного или бетонного дома — столетия. Каркасник прослужит 50-70 лет, и это если он сделан по всем правилам.
Необходимо строго соблюдать технологию
Даже небольшое нарушение технологии строительства может привести к необходимости капитального ремонта дома уже через несколько лет. Утеплитель может набрать влагу, и тогда он не только перестанет удерживать тепло, но и станет причиной гниения каркаса.
Как подготовить участок для строительства каркасного домика
В общем виде подготовка проходит следующие этапы:
- Очистка участка от старых, разрушенных или ненужных построек
- Очистка от растений, травы, пней
- Разметка фундамента
- Проведение геодезических работ
- Снятие дерна
- Засыпка песком или грунтом
- Выполнение дренажных работ
- Выравнивание площадки
- Подготовка к возведению фундамента.

Первый этап предполагает очистку территории от ненужных старых строений, если таковые есть. Следует проверять и полуподвальные помещения. Связано это с тем, что если планируется использование тяжелой техники, при заходе на строительную площадку она может уйти под землю. Если же участок пуст, начинать нужно со следующего этапа.
При осмотре участка требуется удалить все мешающие строительству дома растения, пни и траву. После на чистом участке необходимо наметить границы будущего фундамента. Как выбрать фундамент, мы говорили здесь. Монтаж фундамента под ключ включает этот этап.
Подготовка участка для строительства каркасного дома
В отдельных случаях проводят геодезические работы. Геодезисты помогают выявить уровень, на котором пролегают грунтовые воды, определить тип почвы и грунта. Совокупность проверок подскажет, какой выбрать тип фундамента и на какую глубину его закладывать.
Этап снятия дерна необходим. Казалось бы, достаточно просто скосить траву, выкорчевать пни и участок готов, однако сила растений велика, они могут прорастать и сквозь бетон. Едва ли кому-то захочется, чтобы спустя время после ремонта и внутренней отделки пол пробило растущее дерево. Поэтому снятие дерна позволяет избавить землю от корневой системы растений. Этот этап завершается засыпкой грунта или песка.
Дренажные работы проводятся с целью укрепления будущего фундамента. Дренаж защищает фундамент от влаги. Постоянное взаимодействие с водой без дополнительных средств защиты приводит к разрушению основы. В этом случае такой процесс исключен. Участки, расположенные в низинах требуют дренажных работ в обязательном порядке.
После требуется выровнять участок. Эти действия обычно производятся с помощью тяжелой строительной техники, такой как бульдозеры. Они срезают холмистые места и сглаживают впадины. Только после этих работ, можно приступать к закладке фундамента дома.
На вопрос как правильно делать каркасный дом, можно ответить однозначно: «Правильный дом начинается с правильного фундамента».
Какие этапы строительства будут рассмотрены в первой части
Строительство домов связано со множеством сложностей, которые требуют от человека специальных знаний, а также больших вложений. На первом этапе строительства всегда происходит выбор подходящего земельного участка.
Как выбирается и приобретается участок?
От места расположения будущего многоквартирного дома зависит его дальнейшая привлекательность для потенциальных покупателей. Однако это не значит, что человек может выбрать любой понравившейся ему участок, не занятый другими строениями. Право на застройку потребуется согласовать с различными инстанциями. Их может быть до полусотни, если речь идет о точечной застройке в элитном городском районе. Цена здесь будет высокой, но и привлекательность для будущих жильцов возрастет в разы, особенно если дом будет относиться к высокому классу.
Приобрести понравившийся участок можно после участия в торгах или на правах аренды. Все эти действия опять же согласовываются с комитетом по управлению городским имуществом. В случае с арендой после окончания работ застройщику понадобится продлить срок действия договора.
При выборе земли под строительство рекомендуется обращать внимание на следующие факторы:
- Инфраструктура. Чем ближе участок будет расположен к центральным районам города, тем лучше для застройщика. Вряд ли большим спросом будут пользоваться квартиры в доме, от которого до ближайшей автобусной остановки или магазина нужно идти полчаса. Потенциальные покупатели также обращают внимание на шаговую доступность школ, детских садов, спортивных и развлекательных центров и пр. Чем они будут ближе, тем большая цена может быть установлена за квадратный метр недвижимости.
- Коммуникации. В идеале теплотрассы, линии электропередач, телефонные кабели должны быть расположены на территории или в непосредственной близости от нее. В противном случае застройщику придется прокладывать их самостоятельно, а это увеличивает себестоимость объекта.
- «Благополучность». В любом городе есть так называемые благополучные и неблагополучные районы. Последние жители стараются обходить стороной. Вряд ли квартиры в домах, построенных в этих районах, будут пользоваться большим спросом у покупателей, особенно у семей с детьми. Перед выбором участка и началом строительства лучше поговорить с местными жителями и выяснить, какие районы в городе считаются благополучными.
Какие основные ошибки следует избегать при строительстве каркасного домика
Для возведения каркаса преимущественно используют древесину. Однако необходимо учитывать, пиломатериалы реализуются в основном с естественной влажностью — сырые. Особенно это касается бруса, который продают осенью. К этому моменту заготовленные зимой и высушенные изделия распродают, а на продажу привозят только изготовленный материал без должной просушки. На этом этапе к главным ошибкам возведения каркасного дома относят:
- Использование недостаточно высушенных материалов.
- Применение бруса и досок, которые имеют недостаточное сечение, не рассчитанное на эксплуатационные нагрузки.
Применение недостаточно просушенных заготовок ведет к проблемам. Происходит усыхание, что ведет к образованию зазоров, а также искажению конструкционных размеров. Также вероятным остается скручивание и деформация. В процессе усушки размеры бруса могут меняться до 10% в поперечной проекции, а также до 0,2% в продольной — по волокнам.
Рисунок 2. Кривой пиломатериал
Соответственно, при использовании бруса с сечением 15 см, имеющего естественную влажность, для возведения каркаса с последующим утеплением минватой, спустя год возможно образование щели между теплоизоляцией и основой в 1 см. Не стоит исключать и деформацию бруса, которая может привести к проворачиванию вокруг оси на 15 градусов, а иногда и более. В таком случае крепежные элементы может вырвать, а листовая обшивка также деформироваться. Также наличие зазоров ухудшает теплоизоляцию, способствует увеличению вибраций.
Для предотвращения подобных проблем лучше возводить каркасный дом из древесины, прошедшей сушку в специальных камерах. Можно закупить влажный материал и выдержать его на складе в течение летних месяцев перед началом применения.
Вторая ошибка заключается в недостаточном сечении заготовок. Для каркасного строительства значение должно быть не менее 15х4 см. Дома, выполненные из досок меньшей толщины, имеют недостаточную прочность и несут опасность для жильцов.
Какие инструменты необходимы для сборки каркаса

Друзья, сегодня разберем 15 инструментов для строительства каркасного дома потребуются. Какие из них необходимы, а которые помогают, добавляют комфорт и точность, но можно обойтись и без них.
- Нейлер или гвоздезабивной молоток . Нейлеры бывают пневматические, для этого необходимо докупить еще и компрессор, газовые и электрические. Для работы газовых — необходимо докупать баллоны со сжатым газом, а у электрических есть аккумуляторы. Для строительства каркасного дома важно приобрести именно реечный вариант, они бывают с наклоном 21 и 34 градуса. Можно купить нейлер и барабанного типа, в нем значительно больше обойма, но тяжелее и может быть несколько неудобно в определенных узлах каркаса. Пневматический BOSTITCH , электрический DeWalt и газовые HILTI и TOUA . Мы работаем с последними двумя. Для постройки одного дома можно использовать также различные китайские недорогие модели. Стоимость от 8 000 до 70 000. Покупать или нет решать вам. Если строите для себя, не торопитесь и трудозатраты в плане махания молотком пары десятков тысяч гвоздей 90мм вас не беспокоят, и главное сэкономить, то можно не покупать. Если скорость важна, трудозатраты не пустой звук или строите на заказ, то покупка обязательна, сэкономит деньги, время и силы.
- Пила циркулярная . Каркасные дома строятся только из доски. Исходя из этого достаточно пилы с глубиной пропила не более 50мм под прямым углом. Почти все резы при строительстве каркасника именно 90 градусов.Пользоваться такой пилой удобнее и легче,чем пилами с большим пропилом. Одной пилы вполне достаточно, однако, для бригады лучше докупить еще одну или две. Производителя и модель выбирать вам по отзывам и характеристикам. Мы поклонники MAKITA .
- Торцовочная пила . На самом деле необязательное приобретение, особенно если есть в наличии угольник Свенсона. Однако серьезно ускорит работу и точность пила сделает идеальными, что скажется на удобстве и точности сборки. Если будут и фасадные работы то к покупке рекомендуем.
- Шуруповерт . Каркасный дом собирается только на гвозди. Потому при сборке каркаса шуруповерт вам не должен быть нужен. Однако, фанера, гипсокартон фасад и другие материалы и конструкции потребуют наличия шуруповерта. Лучше иметь аккумуляторный и сетевой одновременно.
- Электрорубанок . Не самый необходимый инструмент, однако при неровной доске может очень хорошо помочь с геометрией поверхностей.
- Ножовка. Необходима для работ, несмотря на наличие циркулярной и торцовочной пил, на объекте потребуется наличие минимум 2 штук.
- Молоток. Также необходим при постройке каркасного дома. Не менее — 2 штук, обычно комфортный вариант для 90мм гвоздя — молоток весом 500гр.
- Уровень . Приобретите уровни 600 или 800 и 1000мм.
- Угольник , угольник Свенсона или аналог. Понятно назначение и необходимость угольника. А угольник Свенсона или его аналог помогут ровно пилить циркулярной пилой и даже в некоторых расчетах. Очень удобная вещь при каркасном строительстве или возведении стропильных систем.
- Рулетки. 8 и 10 метров по 2 штуки. Рулетки всегда нужны, всегда теряются или ломаются.
- Струбцины .150 и 200мм. С кривой доской солжно иной справится голыми руками, струбцины будут незаменимы.
- Строительный степлер . Пленки пароизоляции и ветрозащиты крепятся скобами, на манер мебельных.
- Канцелярские ножи и ножи для резки утеплителя . Крайне часто участвуют в строительстве. Для резки утеплителя можно использовать также нож для резки хлеба, но проще купить специальный у производителя утеплителей .
- Гвоздодер. Гвозди придется убирать, часто незаменим. 2 штуки
- Топор . Каждый плотник должен иметь топор. Несмотря на арсенал всех инструментов выше — понадобится точно.
Как правильно собрать каркас для дачного домика
Каркас дома собирается из досок размером 50 на 150 мм или 50 на 200 мм, которые крепятся между собой и с брусьями при помощи металлических уголков и гвоздей.
Стены собираются на уже готовом полу каркасного дома. Первоначально делается нижняя обвязка. Детали для стен заготавливаются заранее, а весь процесс чем-то напоминает сборку детского конструктора. Обычно собирают каждую стену в отдельности. Она состоит из вертикальных, верхних и нижних элементов, которые называются шаблонами. Сверху стены делается еще одна обвязка, необходимая для установки стропил кровли.
Укосы и раскосы. Эти элементы нужны для предания устойчивости стене. Укосы устанавливаются с внутренней стороны в том случае, когда стена будет обшиваться плитным материалом. В процессе такой обшивки укосы убираются. Если стена обшивается вагонкой, то следует устанавливать постоянные раскосы. Они крепятся на каждую пару стоек по 2 сверху и снизу.
Углы. Они играют крайне важную роль в каркасе дома, поскольку на них приходится большая нагрузка. Поэтому их принято собирать из нескольких досок, чтобы увеличить прочность конструкции. Обычно в углу устанавливают две стойки, а образовавшееся пространство заполняется теплоизолятором.
Простенки (внутренние перегородки). Собираются также как и внешние стены, из отдельных шаблонов, после чего устанавливаются целиком в конструкцию дома. Поскольку внутренние перегородки не несут особой нагрузки, они изготавливаются из облегченных досок. Утеплитель внутри стен выполняет функцию не столько теплоизоляции, сколько звукопоглощения.
Верхняя обвязка. После установки стен сверху по всему периметру прибивается доска до 150 мм толщиной. Это делается для крепкого сцепления углов, объединения всех элементов каркасных стен в единое целое и для распределения нагрузки. Чтобы еще больше усилить конструкцию дома, используется фанера или OSB-плиты, которые прибиваются к каркасу по всей поверхности дома.
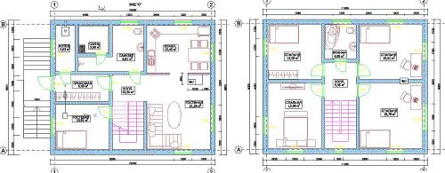
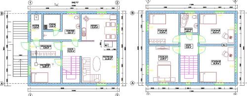
Как разработать проект каркасного дачного домика
План каркасного дома или проект – это комплект документов, необходимых для строительства. Он нужен как схема для самостоятельной сборки и контроля за правильностью действий во время строительных работ. Цена этой документации занимает до 5% общего бюджета строительства. Сюда входят расчеты, чертежи, перечень требуемых материалов, схемы коммуникаций.

Состав проекта при каркасном строительстве
По каркасной технологии можно строить даже дома с несколькими этажами. Эти здания пригодны для постоянного проживания или коммерческих нужд. Их можно использовать круглый год или сезонно. Определяют предназначение строения заранее, отображая эту информацию в проекте.
Чертежи каркасных домов
В проектно-сметной документации содержится как текстовая, так и графическая составляющая. Первая часть включает подробное описание работ, перечень деталей, их спецификации.
Также в текстовую часть включены нормативные акты, регулирующие проведение расчетов для здания. Эта составляющая подразумевает указание стоимости каждого элемента и строительства в целом. Спецификация позволяет узнать об общей площади каркасного дома, а также о количестве необходимых материалов.

Важно! Графическая часть проекта включает множество схем, чертежей, эскизов и планов дома. Чертежи различают по степени детализации, в зависимости от требований заказчика.

Чертежи каркасных домов для постоянного проживания содержат следующую информацию:
- схему распределения участка земли;
- детальную поэтажную схему размещения помещений внутри здания или план каркасного дома (объемно-планировочное решение);
- архитектурный проект или трехмерное изображение будущего дома на бумаге;
- схему установки кровли;
- поперечный и продольный разрез дома;
- схемы различных коммуникаций внутри дома – газоснабжения, электричества, вентиляции,
- водоснабжения и канализации, отопления.

Рабочая часть проекта
Любой проект включает эскизную и рабочую части. Последняя имеет три раздела:
- конструктивный;
- архитектурный
- инженерно-технический.
Конструктивный раздел включает список необходимых строительных работ и спецификацию всех материалов. В нем содержится подробный план фундамента, стен, перекрытий, кровли и других элементов.
Инженерно-технический раздел включает все данные относительно проведения различных коммуникаций.

Любой типовой проект не подразумевает привязку к местности, а является универсальным. Поэтому его необходимо адаптировать к конкретному участку. Это делают при помощи рекогносцировки местности, анализа рельефа, глубины залегания грунтовых вод, анализа почвы и других тестов.

Самой большой частью проекта является архитектурный раздел, включающий план участка, подробное описание и эскиз фасада, детальный план этажей с указанием точных размеров, указание всех лестниц, перегородок, окон, дверей, стен и т. д.

Весь проект и другие документы может создать и подготовить только специально образованный человек с наличием соответствующих разрешений на подобную работу. Можно обратиться как в строительную фирму, так и к частному лицу.
Тот, кто составляет проект, отвечает за его качество и правильность написания. Грамотно составленный проект сможет реализовать даже непрофессионал.
План типичного каркасного дома
Можно построить здание любых размеров, в зависимости от потребностей семьи, и выбрать любую из типичных планировок комнат внутри каркасного дома. Но в стандартном доме для семьи всегда есть коридор, кухня, гостиная, кладовая, гардероб, санузел, а также несколько спален.

Согласно современным строительным требованиям, для каждого человека в семье должно быть 20-23 кв. м. Это значит, что для стандартной семьи на 3-4 человека нужен дом площадью от 90 кв. м.
Наиболее оптимальное распределение площади:
- кухня – 20-30 кв. м;
- гостиная – 20-30 кв. м;
- спальня – 5-8 кв. м;
- коридор и санузел – по 2-4 кв. м;
- кладовая – 1-2 кв. м.
Конечно, это ориентировочное распределение внутренней площади, и каждый может поменять его под себя, но это нужно делать на этапе проектирования.

Важно учесть, насколько удобно будет подводить инженерные коммуникации в ту или иную комнату, где лучше всего расположить кухню и санузел, как будет проходить водопровод и канализация. Это все нужно решить до заливки фундамента.
Каркасные дома хороши тем, что их легко можно перепланировать, в отличие от бетонных и кирпичных. Перегородки, не имеющие несущих функций, легко разбираются и переносятся в другое место. Благодаря этому планировку комнат можно менять, за исключением кухни и санузла, для которых требуются дополнительные коммуникации.