Строительство каркасного дачного дома с нуля: подробный руководство
- Строительство каркасного дачного дома с нуля: подробный руководство
- Связанные вопросы и ответы
- Что такое каркасный дом
- Какие материалы необходимы для строительства каркасного дома
- Как выбрать место для строительства каркасного дома
- Как провести инженерные изыскания на участке
- Как разработать проект каркасного дома
- Как выбрать подходящий каркас для дома
- Как собрать каркас дома
- Как выбрать подходящий материал для кровельного покрытия
Строительство каркасного дачного дома с нуля: подробный руководство
В деле самостоятельной сборки каркасного дома важно ничего не упустить и не допустить ошибок. Перед вами — краткая обзорная инструкция, которая поможет увидеть картину в целом, чтобы рассчитать свои силы и возможности:
- Проектирование. В него входит как архитектурная часть — дизайн дома, расположение помещений, стен и перегородок, окон и дверей, так и конструктивная и инженерная части — толщина стен, устройство силовых элементов, расположение санузлов, трассировка инженерных систем. Все параметры предварительно отражаются на схеме, чтобы можно было скорректировать некоторые моменты, проверить правильность расчетов, изменить планировку. Рабочие чертежи — это детальные схемы отдельных частей, с помощью которых можно выполнять все работы, придерживаясь указанных параметров.
- Разметка и грунтовые работы. В первую очередь, местность под будущее строительство расчищается, потом делается разметка под проект дома. Необходимость выкопки котлована под фундамент и его глубина определяется типом фундамента. На выбор типа влияет геология грунта, вес и конфигурация будущего дома. Для свайного фундамента (свайно-винтовой, буронабивной) рыть котлован не надо, для ленточного заглубленного — надо. Если предполагается цокольный этаж или подвал — котлован будет глубоким.
- Монтаж. Если предварительные работы были выполнены верно, во время монтажа останется собрать все детали в единое целое, получив готовый контур дома. В сборку входит установка силового каркаса, его наполнение, устройство пола и кровли, монтаж окон, дверей, внутренних перегородок.
- Отделка. Производится как внутри, так и снаружи дома, с целью получить эстетически привлекательное, долговечное и простое в эксплуатации строение.
Связанные вопросы и ответы:
Вопрос 1: Что нужно знать перед постройкой каркасного дачного дома своими руками
Ответ: Перед постройкой каркасного дачного дома своими руками необходимо изучить строительные нормы и правила, выбрать подходящий проект, подготовить необходимые материалы и инструменты, а также узнать о возможных ограничениях и требованиях в отношении строительства на данной территории.
Вопрос 2: Какие материалы необходимы для постройки каркасного дачного дома
Ответ: Для постройки каркасного дачного дома необходимы следующие материалы: брусья и балки из древесины, металлические скобы и шурупы, металлические профили для кровельного настила, стропила, доски для обшивки стен, дверные и оконные блоки, кровельный материал, шпаклевка, краски и лаки, а также другие строительные материалы и аксессуары.
Вопрос 3: Как выбрать подходящий проект для каркасного дачного дома
Ответ: Для выбора подходящего проекта для каркасного дачного дома необходимо учитывать количество комнат, площадь дома, его форму и дизайн, а также рассматривать варианты, которые соответствуют местным строительным нормам и правилам. Также следует учитывать свои личные предпочтения и бюджет.
Вопрос 4: Как правильно составить план строительства каркасного дачного дома
Ответ: План строительства каркасного дачного дома должен включать следующие этапы: выбор места для строительства, подготовка фундамента, создание каркаса, установка кровельного настила, установка стен, установка окон и дверей, внутренняя отделка, монтаж электропроводки и водопровода, а также другие необходимые работы.
Вопрос 5: Как обеспечить надёжность и долговечность каркасного дачного дома
Ответ: Надёжность и долговечность каркасного дачного дома можно обеспечить, используя качественные материалы и инструменты, соблюдая строительные нормы и правила, а также проводя регулярный ремонт и обслуживание дома. Также следует учитывать возможные климатические условия и принимать меры для защиты дома от воздействия этих факторов.
Вопрос 6: Как сэкономить на строительстве каркасного дачного дома
Ответ: Сэкономить на строительстве каркасного дачного дома можно, используя недорогие, но качественные материалы, а также самостоятельно выполняя часть работ, таких как подготовка фундамента, установка каркаса и стен, внутренняя отделка и другие. Также можно искать скидки и акции на строительные материалы и инструменты, а также брать в аренду необходимое оборудование вместо покупки.
Что такое каркасный дом
Что такое каркасный дом, понятно из названия. Это сооружение возводят на основе жесткой рамы, собранной из брусьев, с необходимой обшивкой и утеплением строительных конструкций. Такой способ максимально ускоряет строительство, без ущерба для долговечности, надежности и других эксплуатационных качеств строения.
В прежние годы при этом строительстве каркас заполняли опилками, шлаком или смесью этих составов. Современные технологические возможности предоставляют более удобные, надежные материалы. Стены можно обшить сэндвич-панелями, минеральными плитами, СИП-панелями.
Рассматривая, из чего построен тот или иной каркасный дом, заметна разница между этими сооружениями. С учетом конструктивных особенностей, объекты частного домостроительства, возведенные указанным способом, бывают следующих видов:
- рамными с перекрытиями – предполагает послойную структуру, с расположением каждого из слоев на поддоне; для первого этажа перекрытие опирают на лежневую обвязку, собранную на фундаменте и соединенную лагами; на этом основании возводят следующие ярусы;
- финскими – вертикальные стойки общие для двух первых этажей; доски перекрытий врезают в балки;
- стоечно-балочными – выполняют из брусьев большого сечения, с врезными соединениями, что повышает требования к квалификации строителей;
- каркасно-стоечными – вертикальные стойки крепят к фундаменту или заглубляют в грунт наподобие свай; строение можно поднять над уровнем грунта, что удобно для затапливаемых участков местности.
Из чего и по какой из технологий сделать каркасный дом, зависит от параметров объекта, характеристик участка, где проводят строительство. Применяют стандартные проекты, что позволяет унифицировать производство составных деталей.
Какие материалы необходимы для строительства каркасного дома
Каркасные дома строят из дерева. Именно оно применяется в производстве вертикальных стоек, горизонтальных поперечин, полов, стен, внутренних перегородок, конструкции крыши и прочих частей. Количество материала и размеры отдельных частей полностью зависят от выбранной технологии строительства и проекта дома.





Как выбрать место для строительства каркасного дома
В предыдущей статье я рассказал как правильно подойти к выбору участка. В этой я расскажу как мы определяли место для застройки дома на участке.
Итак, вы приобрели участок и уже выбираете место, где поставить дом. Не торопитесь это делать, пока не увидите ГПЗУ - это документ информационного характера, который необходимо получить в органе местного самоуправления по месту нахождения земельного участка или на портале Госуслуг до начала проектирования, строительства или реконструкции объектов недвижимости на таком участке. В нем приводятся сведения обо всех характеристиках земельного участка, предназначенного для застройки, а также сведения о месте допустимого размещения будущего объекта капитального строительства. В нем будет страница с чертежом градостроительного плана земельного участка, где будет указана чёткая зона, на которой можно что-то строить. Вот так на примере моего участка выглядел чертеж (фото 1)
Клеткой обозначена зона, где я могу строить капитальный объект. Справа полосками обозначена часть охранной зоны линий электропередач, в этой зоне строить нельзя. Так же по периметру обозначены отступы от границ участка, где строить нельзя: по 3 метра со всех сторон, а от границы, которая выходит на дорогу 5 метров.
Но это ещё не всё! Даже зная о предполагаемом возможном месте возведения дома на участке, вы обязаны до начала строительства получить разрешение на строительство (РНС). На ИЖС это обязательно, а вот на СНТ можно строить практически как угодно, а потом зарегистрировать дом по "Дачной амнистии". Получить РНС можно в местной администрации района. Для этого вам потребуется:
1) ГПЗУ
2) Постановление об утверждении ГПЗУ (выдаётся вместе с ГПЗУ)
3) Заявление на выдачу Разрешерия На Строительство (пишите там в кабинете)
4) Документы на участок: свидетельство или выписка из ЕГРН (ЕГРП)
5) Схема планировочной организации земельного участка с обозначением места размещения индивидуального жилого дома.
Последний пункт меня вводил в ступор, как и чего указывать, многих спрашивал и многие отвечали, что это надо заказывать в фирме, чтоб они все четко обозначили, иначе не примут документы. В итоге, попытка не пытка, отсканировал ГПЗУ, сам обозначил место застройки в фоторедакторе, указав все размеры и вот что у меня получилось (фото 2), что в последствии сдал в администрацию и все приняли. Ну естественно не просто картинку, а как полагается с шапкой, адресом, описанием габаритов и этажности дома.
Итак, мы приняли решение о переезде загород, выбрали и купили участок, получили разрешение на строительство и знаем какого размера примерно будет дом. Теперь приступаем к планировке самого дома и его помещений, но об этом я расскажу в своей следующей статье.


Как провести инженерные изыскания на участке
Инженерные изыскания для строительства — обязательная часть градостроительной деятельности, обеспечивающая комплексное изучение природных условий территории (региона, района, площадки, участка, трассы) и факторов техногенного воздействия на территорию объектов капитального строительства для решения следующих задач:
- установления функциональных зон и определения планируемого размещения объектов при территориальном планировании;
- выделения элементов планировочной структуры территории и установления границ земельных участков, на которых предполагается расположить объекты капитального строительства, включая линейные сооружения;
- определения возможности строительства объекта;
- выбора оптимального места размещения площадок (трасс) строительства;
- принятия конструктивных и объемно-планировочных решений;
- составления прогноза изменений природных условий;
- разработки мероприятий инженерной защиты от опасных природных процессов;
- ведения государственных информационных систем обеспечения градостроительной деятельности
Инженерные изыскания являются одним из важнейших видов строительной деятельности, с них начинается любой процесс строительства и эксплуатации объектов. Комплексный подход, объединяющий различные виды инженерных изысканий позволяет проводить разностороннее и своевременное обследование строительных площадок, зданий и сооружений.
Как разработать проект каркасного дома
План каркасного дома или проект – это комплект документов, необходимых для строительства. Он нужен как схема для самостоятельной сборки и контроля за правильностью действий во время строительных работ. Цена этой документации занимает до 5% общего бюджета строительства. Сюда входят расчеты, чертежи, перечень требуемых материалов, схемы коммуникаций.

Состав проекта при каркасном строительстве
По каркасной технологии можно строить даже дома с несколькими этажами. Эти здания пригодны для постоянного проживания или коммерческих нужд. Их можно использовать круглый год или сезонно. Определяют предназначение строения заранее, отображая эту информацию в проекте.
Чертежи каркасных домов
В проектно-сметной документации содержится как текстовая, так и графическая составляющая. Первая часть включает подробное описание работ, перечень деталей, их спецификации.
Также в текстовую часть включены нормативные акты, регулирующие проведение расчетов для здания. Эта составляющая подразумевает указание стоимости каждого элемента и строительства в целом. Спецификация позволяет узнать об общей площади каркасного дома, а также о количестве необходимых материалов.

Важно! Графическая часть проекта включает множество схем, чертежей, эскизов и планов дома. Чертежи различают по степени детализации, в зависимости от требований заказчика.

Чертежи каркасных домов для постоянного проживания содержат следующую информацию:
- схему распределения участка земли;
- детальную поэтажную схему размещения помещений внутри здания или план каркасного дома (объемно-планировочное решение);
- архитектурный проект или трехмерное изображение будущего дома на бумаге;
- схему установки кровли;
- поперечный и продольный разрез дома;
- схемы различных коммуникаций внутри дома – газоснабжения, электричества, вентиляции,
- водоснабжения и канализации, отопления.

Рабочая часть проекта
Любой проект включает эскизную и рабочую части. Последняя имеет три раздела:
- конструктивный;
- архитектурный
- инженерно-технический.
Конструктивный раздел включает список необходимых строительных работ и спецификацию всех материалов. В нем содержится подробный план фундамента, стен, перекрытий, кровли и других элементов.
Инженерно-технический раздел включает все данные относительно проведения различных коммуникаций.

Любой типовой проект не подразумевает привязку к местности, а является универсальным. Поэтому его необходимо адаптировать к конкретному участку. Это делают при помощи рекогносцировки местности, анализа рельефа, глубины залегания грунтовых вод, анализа почвы и других тестов.

Самой большой частью проекта является архитектурный раздел, включающий план участка, подробное описание и эскиз фасада, детальный план этажей с указанием точных размеров, указание всех лестниц, перегородок, окон, дверей, стен и т. д.

Весь проект и другие документы может создать и подготовить только специально образованный человек с наличием соответствующих разрешений на подобную работу. Можно обратиться как в строительную фирму, так и к частному лицу.
Тот, кто составляет проект, отвечает за его качество и правильность написания. Грамотно составленный проект сможет реализовать даже непрофессионал.
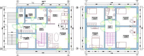
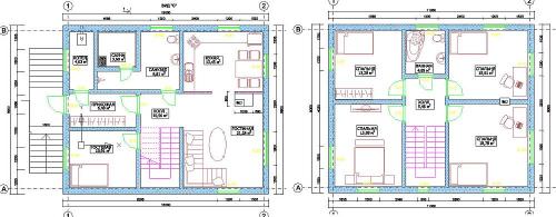
План типичного каркасного дома
Можно построить здание любых размеров, в зависимости от потребностей семьи, и выбрать любую из типичных планировок комнат внутри каркасного дома. Но в стандартном доме для семьи всегда есть коридор, кухня, гостиная, кладовая, гардероб, санузел, а также несколько спален.

Согласно современным строительным требованиям, для каждого человека в семье должно быть 20-23 кв. м. Это значит, что для стандартной семьи на 3-4 человека нужен дом площадью от 90 кв. м.
Наиболее оптимальное распределение площади:
- кухня – 20-30 кв. м;
- гостиная – 20-30 кв. м;
- спальня – 5-8 кв. м;
- коридор и санузел – по 2-4 кв. м;
- кладовая – 1-2 кв. м.
Конечно, это ориентировочное распределение внутренней площади, и каждый может поменять его под себя, но это нужно делать на этапе проектирования.

Важно учесть, насколько удобно будет подводить инженерные коммуникации в ту или иную комнату, где лучше всего расположить кухню и санузел, как будет проходить водопровод и канализация. Это все нужно решить до заливки фундамента.
Каркасные дома хороши тем, что их легко можно перепланировать, в отличие от бетонных и кирпичных. Перегородки, не имеющие несущих функций, легко разбираются и переносятся в другое место. Благодаря этому планировку комнат можно менять, за исключением кухни и санузла, для которых требуются дополнительные коммуникации.
Как выбрать подходящий каркас для дома
Своё название каркасная технология получила потому, что основой возводимого по ней дома является стоечно-балочный каркас — его также называют силовым. Дальнейшее строительство можно сравнить с приготовлением слоёного пирога: пространство между балками заполняют утеплителем, который затем закрывают защитными мембранами и обшивают отделочным слоем.
Далее мы по порядку рассмотрим каждый элемент этого «пирога».
Силовой каркас
Остов каркасного дома строится из нескольких разновидностей деревянных балок: несущих стоек, ригелей и укосин.
- Стойки — это вертикальные несущие балки или, проще говоря, столбы.
- Ригели — это горизонтальные несущие балки.
- Укосины — это диагональные рёбра жёсткости из сухой строганной доски. Благодаря им конструкция получается прочной и устойчивой.

Силовой каркас дома
Эти элементы делаются из разной древесины, и не все варианты удачны:
1. Сухая строганная доска достаточного сечения — отличный, но дорогой вариант.
2. Клеёная тавровая балка — тоже хороший выбор. В этом случае каркас будет называться усиленным, а дом получится сверхпрочным.
3. Доска естественной влажности — она используется в наиболее экономичных каркасниках. По мере высыхания её ведёт, и конструкция становится ненадёжной: дом может искривиться или даже развалиться.
4. Также для экономии могут использовать обрезной пиломатериал камерной сушки — нестроганые доски. Сечение у каждой доски будет разным, что приведёт к неидеальной геометрии. В итоге дом получится некрасивым — в готовом варианте финишная отделка будет идти волной. Но такой вариант всё равно лучше, чем влажная доска.
Отдельного упоминания заслуживает — ещё один элемент «скелета» дома. Это несущая конструкция крыши, которая принимает на себя нагрузку от кровельного покрытия, снега, дождя и ветра. Она служит основой для монтажа кровли и обеспечивает устойчивость крыши.
Главные элементы стропильной системы:
- Стропила: наклонные балки, создающие каркас крыши.
- Коньковый прогон: горизонтальная балка, соединяющая верхние концы стропил.
- Мауэрлат: опорный брус, который крепится к стенам здания по периметру и распределяет нагрузку от стропильной системы.
- Подкосы и ригели: дополнительные элементы для усиления конструкции.
- Обрешётка: горизонтальные планки или доски, на которые крепится кровельный материал.
Делать стропильную систему также лучше из сухой строганной доски, хотядопускает использование доски естественной влажности. Если стропильная система выполнена из сухой строганной доски, то под кровлей не будет лишней влажности.
Утеплитель
Следующий этап строительства каркасного дома — его утепление. Утеплитель помещается между несущими элементами каркаса — стойками и ригелями.
Можно использовать разные утеплители, но наибольшей популярностью пользуются варианты из минеральной ваты.
В этом случае предпочтительнее плитный утеплитель: плиты реже меняют геометрию, а значит, не осядут — в итоге не появятся зазоры, которые приводят к образованию мостиков холода и становятся причиной теплопотерь. С рулонными утеплителями такие проблемы более вероятны.
Усадка утеплителя произойдёт в любом случае, но производители плитной минеральной ваты гарантируют неизменную геометрию в течение примерно 25 лет. После этого утеплитель необходимо обновлять.
Если использовать материалы, вовсе не подверженные усадке, — например, из полиэфирного волокна, как утепление в куртке, — то их замена не потребуется, потому что они не теряют геометрию.
Защитные мембраны или плёнки
Следующий слой «пирога» — специальные мембраны или плёнки. Они используются для защиты кровли и стен от влаги, ветра и пара. Выбор между ними зависит от типа здания, бюджета и эксплуатационных требований. Мембраны стоят дороже, но и качество по сравнению с плёнкой у них более высокое. Если вы хотите построить энергоэффективный дом, лучше предпочесть именно их.
Задача мембран — не пропустить в утеплитель и в несущие элементы каркаса влагу. В жилой части дома она образуется из-за работы бытовых приборов и дыхания людей, а со стороны улицы — из-за осадков.
Как собрать каркас дома
Каркас дома собирается из досок размером 50 на 150 мм или 50 на 200 мм, которые крепятся между собой и с брусьями при помощи металлических уголков и гвоздей.
Стены собираются на уже готовом полу каркасного дома. Первоначально делается нижняя обвязка. Детали для стен заготавливаются заранее, а весь процесс чем-то напоминает сборку детского конструктора. Обычно собирают каждую стену в отдельности. Она состоит из вертикальных, верхних и нижних элементов, которые называются шаблонами. Сверху стены делается еще одна обвязка, необходимая для установки стропил кровли.
Укосы и раскосы. Эти элементы нужны для предания устойчивости стене. Укосы устанавливаются с внутренней стороны в том случае, когда стена будет обшиваться плитным материалом. В процессе такой обшивки укосы убираются. Если стена обшивается вагонкой, то следует устанавливать постоянные раскосы. Они крепятся на каждую пару стоек по 2 сверху и снизу.
Углы. Они играют крайне важную роль в каркасе дома, поскольку на них приходится большая нагрузка. Поэтому их принято собирать из нескольких досок, чтобы увеличить прочность конструкции. Обычно в углу устанавливают две стойки, а образовавшееся пространство заполняется теплоизолятором.
Простенки (внутренние перегородки). Собираются также как и внешние стены, из отдельных шаблонов, после чего устанавливаются целиком в конструкцию дома. Поскольку внутренние перегородки не несут особой нагрузки, они изготавливаются из облегченных досок. Утеплитель внутри стен выполняет функцию не столько теплоизоляции, сколько звукопоглощения.
Верхняя обвязка. После установки стен сверху по всему периметру прибивается доска до 150 мм толщиной. Это делается для крепкого сцепления углов, объединения всех элементов каркасных стен в единое целое и для распределения нагрузки. Чтобы еще больше усилить конструкцию дома, используется фанера или OSB-плиты, которые прибиваются к каркасу по всей поверхности дома.
Источник: https://gorizont-pro.ru/stati/karkasnyy-dom-svoimi-rukami-etapy-stroitelstva
Как выбрать подходящий материал для кровельного покрытия
1
2
2.1
2.2
2.3
2.4
2.5
2.6
Вопрос чем лучше покрыть крышу дома недорого обычно не возникает у людей обеспеченных, респектабельных. Кровельные материалы эконом-класса интересуют домовладельцев лишь тогда, когда предстоит серьёзная реконструкция прохудившейся кровли или строительство новой при ограниченном бюджете. Кроме знаний, чем лучше покрыть крышу дома, владельцы домов стремятся минимизировать расходы на ее монтаж, стремясь уложить покрытие своими руками.
Как правильно выбрать недорогой материал для крыши дома
Разбирая варианты, чем покрыть свой дом недорого, при выборе нужно обращать внимание на такие моменты:
- Эстетичность. Можно покрыть крышу рубероидом или обычным асбестоцементным шифером, но высоких эстетических показателей от такого покрытия добиться будет сложно.
- Долговечность. Покрыть крышу дешево и надолго предел мечтаний большинства домовладельцев.
- Ассортимент. Выбор лучшего покрытия для крыши во многом связан с наличием необычных цветовых решений,
- Простота монтажа и обслуживания. Этот пункт должны учитывать домовладельцы, которые ищут не только чем лучше всего выполнить перекрытие собственного дома, но и варианты, как это сделать дешевле, желательно вообще своими руками.
Обзор недорогих материалов для покрытия крыш
Среди материалов эконом-класса, которыми можно недорого покрыть крышу дома, гаража, бани или другой хозпостройки, можно выделить такие:
- Рубероид.
- Ондулин.
- Шифер.
- Профнастил.
- Металлочерепица.
- Гибкая черепица.
Рубероид
Рубероид самый бюджетный вариант среди аналогичных материалов для крыши дома. Рубероидом можно сделать кровлю с минимальными расходами. Для достижения наилучшего эффекта мягкое рулонное покрытие укладывают в несколько слоёв. Это значительно увеличивает долговечность мягкой кровли.
Рубероид лёгок в монтаже, его укладка может производиться своими руками. Достаточно растопить немного битума, чтобы зафиксировать края и промазать нахлёсты, и таким образом можно без проблем решить вопрос чем покрыть плоскую крышу. Состоит этот материал из пропитанного битумом картона (самый простой тип рубероида) или пропитанного битумом стеклохолста (наплавляемый рубероид).
Еврорубероид является материалом нового поколения. С его помощью также можно покрыть крышу дома с максимальной экономией. Монтаж наплавлением такого стройматериала на предварительно нанесённый слой праймера обеспечивает высокую надёжность уложенного покрытия.
К недостаткам рубероида можно отнести:
- горючесть (если вы решились оформить перекрытие дома и выбрали для себя вариант подешевле, стоит учитывать этот фактор);
- малая прочность;
- низкая стойкость к воздействию ветровой нагрузки и низких температур (придётся мириться с тем, что дёшево сделать кровлю это не всегда значит покрыть ее качественно);
- небольшой ресурс.

Рубероид

Рубероид
Ондулин
Ондулин представляет собой толстый целлюлозный лист, пропитанный очищенным битумом. Еврошифер лёгок и практичен. Простота и высокая скорость монтажа делают его востребованным в таком деле, как быстрый ремонт кровли. В некоторых случаях этот материал наносится поверх старого покрытия без особой подготовки достаточно лишь смонтировать лёгкую обрешётку. Широкая цветовая гамма позволяет создать нарядный внешний вид строения. Хорошо прикреплённый ондулин не боится порывистого ветра и низких температур.
Еврошифер благодаря своей уникальной конструкции имеет ряд недостатков. Он тонкий, гибкий и мягкий, может деформироваться под воздействием тепла и осадков (град). Монтаж еврошифера исключает передвижение по нему. Краска на листах быстро выгорает на солнце, поэтому к концу заявленного производителем срока эксплуатации (12 лет) кровля будет иметь невзрачный вид. Ондулин полностью состоит из горючих материалов. Это исключает его использование на конструкциях с дымоходами. На жаре еврошифер выделяет сильный запах нефтепродуктов, а потому применять этот материал для крыши дома не рекомендуется.

Ондулин

Ондулин
Шифер
Асбестоцементый шифер стройматериал, позволяющий покрыть кровлю дёшево и практично. Большая прочность и долговечность шифера дают ему возможность успешно конкурировать с другими кровельными материалами в эконом-сегменте. Шифер не горит, хорошо изолирует тепло и звук, легко ремонтируется.
Существенным недостатком шифера является его низкая эстетичность. Этот материал для крыши дома неброский, что отпугивает требовательных к эстетике домовладельцев.
Сложность вызывает транспортировка шифера, так как хрупкие листы весят более 20 кг каждый. При монтаже обязательно приходится отпиливать один из внутренних углов для подгонки листа. Асбест небезопасен для здоровья. Со временем кровля из шиферных листов может деформироваться (коробиться), крошатся углы и кромки, на затенённых участках начинает расти мох.

