Теплица из профильной трубы 20×20 и 40×20 своими руками. Нужно ли делать фундамент?
- Теплица из профильной трубы 20×20 и 40×20 своими руками. Нужно ли делать фундамент?
- Теплица из профильной трубы без сварки. Сборка труб на деревянные вставки
- Сколько метров профильной трубы надо на теплицу. Теплица из профильной трубы
- Двускатная теплица из профильной трубы своими руками. Теплица из профильной трубы 20х20. Каркас теплицы из профильной трубы – чертежи и расчеты
- Чертежи теплиц из профильной трубы с размерами. Теплица своими руками из профильной трубы
- Парник из профильной трубы 20х20 своими руками. Парник из профильной трубы своими руками – чертежи, фото и видео инструкции
- Чертеж теплицы по митлайдеру из профильной трубы. Основание под теплицу
- Теплица из профильной трубы под пленку. Металлический каркас
Теплица из профильной трубы 20×20 и 40×20 своими руками. Нужно ли делать фундамент?

Для лёгкой переносной сезонной теплицы будет достаточно устойчивого основания из деревянного бруса. Для более капитальной, предназначенной для холодного времени года или просто большой – понадобится фундамент. Закладку ленточного фундамента для теплицы из профильной трубы рекомендуется производить с соблюдением нескольких обязательных этапов.
В траншею глубиной 40 см и шириной в 20 см нужно уложить гравийную подушку толщиной около 5 см и разровнять её. Над поверхностью земли устанавливается опалубка для цокольной части. На гравийную подушку вертикально установить отрезки более толстой профильной трубы, которые впоследствии будут находиться над верхней частью фундамента. К ним будет крепиться основание каркаса
Важно, чтобы эти колышки не касались почвы – это предотвратит скорое разрушение от коррозии. Устанавливать нужно примерно на расстоянии метра один от другого, а в углах – по паре
Залить фундамент вместе с цоколем и оставить до затвердевания на положенное время, накрыв плёнкой. Когда фундамент приобретёт окончательную прочность, на него нужно прикрепить основание. Проще и надёжнее всего – приварить его к установленной заранее в фундамент арматуре.
Особенности сборки каркаса х2

Каркас из профильной трубы можно собрать при помощи крепежа и сварки. Сварное соединение более прочное, не расшатывается. Крепёж позволяет демонтировать теплицу на зиму или по иной причине. Для основания, передней и задней стенки, каркаса основания инженеры рекомендуют брать более толстую трубу. Для промежуточных опор и дополнительных рёбер жёсткости – более лёгкую.
- Собирать нужно начинать с задней торцевой стенки.
- Затем собрать переднюю торцевую стену.
Важно!
Обязательно следует измерить длину диагоналей в получившихся рамках. Диагонали должны быть строго равны. Это единственный надёжный метод проконтролировать прямоугольность конструкции.
- Установить переднюю и заднюю стенки, тщательно выровняв их вертикально при помощи отвеса.
- Затем установить вертикальные рёбра жёсткости вдоль боковых сторон. Их следует крепить с шагом 1 м к основанию и арматуре фундамента.
- Закрепить верхнюю часть каркаса – параллельно основанию, соединив вертикальные опоры.
- После скрепить коньком верхушку крыши.
- Крышу рекомендуется усилить дополнительными направляющими, для более надёжного сопротивления покрытия нагрузкам.
Как согнуть трубу?
Если теплица не очень большая и при её проектировании были учтены размеры стандартных отрезков трубы, то вертикальные опоры для крыши и стен можно сделать не отрезая трубу – из целых кусков. Чтобы согнуть трубу на нужный угол в месте примыкания крыши к стене, нужно отмерить и на этой высоте сделать надрез болгаркой. Надрезанную трубу легко согнуть на нужный угол, приложив небольшое усилие. Сгиб следует закрепить сваркой.
Оцинкованный профиль для теплицыПрочность теплицы из поликарбоната, ее устойчивость и долговечность во многом определяются типом каркаса….
Сварочные работы
Сварной каркас прочнее собранного при помощи крепежа
Особенно важно хорошее соединение частей каркаса для теплицы, которая подразумевает круглогодичное использование. Для изготовления каркаса из профильной трубы достаточно минимальных навыков работы со сварочным оборудованием
Чтобы конструкцию не повело, сваривать детали нужно как бы прихватывая, не делая длинных сварочных швов. Чтобы задняя и передняя стенки были идентичны, сварочные работы можно выполнять одновременно, положив их друг на друга и закрепив при помощи струбцин.
После выполнения монтажных работ – закрепления основания к арматуре, установки передней и задней торцевых стен, боковых рёбер жёсткости и окончательного скрепления каркаса горизонтальными направляющими, следует произвести антикоррозионную обработку. Для этого нужно металлической щёткой очистить сварочные швы от окалины и покрыть весь каркас антикоррозионной грунтовкой. После можно покрасить в любой понравившийся цвет.
Теплица из профильной трубы без сварки. Сборка труб на деревянные вставки
Сначала нужно нарезать профильную трубу для изготовления рамы. Для калитки понадобится 5 заготовок. Из них 4 формируют раму, и 1 используется как усиливающая жесткость перекладина. Для ворот перекладин понадобится больше.













Сколько метров профильной трубы надо на теплицу. Теплица из профильной трубы
Профильная труба – это изделие из металла квадратного, прямоугольного или овального сечения.
Самыми недорогими считаются трубы из необработанного металла, но для влажной среды больше подходит оцинкованная или окрашенная труба.
Однако, если вы планируете соединять элементы конструкции методом сварки, лучше покупать трубы без покрытия, так как под воздействие тепла сварки защитный слой в любом случае разрушится, и трубу придется заново окрашивать.
Примечание: Как правило, для строительства конструкций закрытого грунта используются трубы квадратного или прямоугольного сечения, размером 20 х 20 или 20 х 40 мм.
Важно
Если вы будете соединять опоры болтами или другой крепежной фурнитурой, можете смело покупать оцинкованную трубу. Однако преимущество следует отдавать максимально качественным изделиям, оцинковка у которых не потрескается со временем. При повреждении защитного слоя все свойства таких оцинкованных труб теряются, и каркас начнет покрываться ржавчиной во влажной тепличной среде.
Рисунок 1. Чертежи каркаса двухскатной и арочной теплицы из профильной трубыПеред началом расчета теплицы из профильной трубы следует определиться с типом конструкции.
Традиционным вариантом считается «домик» — постройка с двухскатной крышей, но более современными считаются арочные и купольные конструкции.
Их преимущество в том, что на крыше не скапливается снег, который может повредить покрытие, а внутри остается достаточно пространства для ухода за растениями (рисунок 1).
Примечание: Вне зависимости от выбранного типа конструкции, высоту здания лучше делать сразу немного больше высоты человеческого роста. Более низкая конструкция, конечно, сэкономит вам немного денег, но работать в полусогнутом состоянии в ней будет не слишком удобно.
Приведем примеры расчета для самых популярных типов теплиц – двухскатной и арочной:
- Арочная: обычно имеет в высоту порядка 1900-2400 мм. Исходя из этого можно сделать вывод, что арка – это половина полного круга. Соответственно, нам нужно рассчитать длину окружности по формуле L=п*D. Число п (Пи) – это постоянная величина, которая равняется 3,14, а D (диаметр) равен двум радиусам. В нашем случае высота конструкции и является радиусом. Предположим, что высота здания будет составлять два метра. Соответственно, длина окружности L будет равна 3,14*4, или 12,56 м. Этот показатель нужно поделить пополам. Получится показатель 6,28 м, который и будет соответствовать длине изогнутой арки. В данном случае есть только одна проблема: стандартная длина профильной трубы составляет 6 метров, соответственно к ней придется каким-то образом прикрепить небольшой кусочек. Чтобы упростить себе задачу, лучше делать высоту порядка 1850-1900 мм. В таком случае длина одной изогнутой арки будет составлять как раз 6 метров.
- Двухскатная: более сложная в расчетах. В первую очередь необходимо учесть угол наклона крыши, который колеблется в зависимости от снеговой и ветровой нагрузки. Стандартным считается показатель 30-45 градусов, а оптимальная высота постройки с двухскатной крышей – 170-200 см. Чтобы узнать высоту крыши, нужно воспользоваться теоремой Пифагора, согласно которой квадрат гипотенузы равен сумме квадратов катетов. Предположим, что ширина нашей теплицы будет 2 метра, а угол наклона крыши – 30 градусов. В данном случае гипотенузой будет считаться длина ската, а катеты – это показатель ширины постройки. Пользуясь все той же теоремой Пифагора, узнаем, что катет, лежащий напротив угла в 30 градусов, должен равняться половине гипотенузы. Составив квадратное уравнение, получится, что длина гипотенузы равна 1,154 м, соответственно длина катета – 0,58 м. Приняв в расчет, что высота стенки равна двум метрам, можно сделать вывод, что высота этой же конструкции по коньку равняется 2,58 метра.
Двускатная теплица из профильной трубы своими руками. Теплица из профильной трубы 20х20. Каркас теплицы из профильной трубы – чертежи и расчеты
Работа в теплице чаще протекает по принципу: я разогнулся посмотреть, не разогнулась ли она, чтоб посмотреть не разогнулся ли я. Поэтому важно для облегчения и максимального комфорта труда правильно рассчитать высоту сооружения. Оптимально, если человек встанет в полный рост + 300-400 мм.

Подробный чертеж арочной постройки
Средняя эргономичная высота арочной теплицы – 1,9-2,4 метра – это по сути радиус сгиба поликарбонатного листа. Вспоминаем формулу длины окружности: L= π*D, где π – 3,14, D – диаметр = 2 радиусам.
Допустим, высота теплицы из профтрубы – 2 м, тогда L (длина окружности) = 3,14*4 = 12,56 м. Нам требуется половина этой длины — 12,56:2 = 6,28 м. Но это не рационально при использовании обшивки из поликарбоната, получается, что одного листа длина которого 6,0 м не хватит, придется дотачивать небольшую полосу, то же со стандартной длиной профтрубы. Чтобы избежать лишних затрат, необходимо уменьшить высоту теплицы, рационально если, Н=1,85-1,9 м, при ширине постройки 3,7-3,8 м.

Схема теплицы из профильной трубы, своими руками такую конструкцию можно изготовить практически без отходов материала
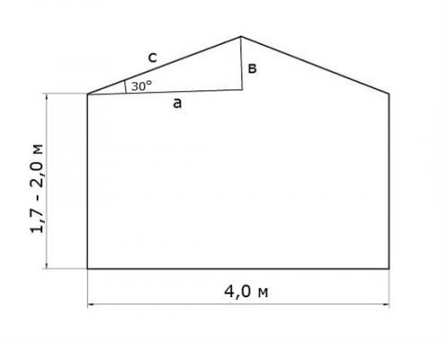
Для двускатной кровли расчет высоты зависит от уклона крыши, для разных регионов, в зависимости от ветровой и снеговой нагрузок, обычно укос составляет 30-45о. Удобная высота прямой стены – 1,7-2 метра до нижнего края стропила. На примере просчитаем общую высоту теплицы из профильной трубы до конька.
Допустим, уклон двускатной крыши составляет 30о, ширина теплицы 4 м. По теореме Пифагора: с2=а2+в2, где с – гипотенуза (длина одного ската), а – катет (перпендикуляр от края каркаса из профтрубы до середины), в – катет (высота от конька до прямой стены по перпендикуляру). В нашем случае: а = 4:2 = 2 метра. Из геометрии: катет, лежащий напротив угла в 30о, равен половине гипотенузы. Составляем уравнение:
в=х, следовательно,
с=2х, отсюда (2х)2= 22+х2, 4х2= 4+х2, 3х2= 4, х2 = 4:3, х = √1,33(3) = 1,154 м – это длина гипотенузы, значит, катет в = 0,58 м, отсюда общая высота теплицы из профтрубы: 2+0,58=2,58 м.

Изготовление теплицы из профильной трубы, чертеж стандартной двускатной постройки
Отметим важный нюанс, скат крыши должен на 100-300 мм быть длиннее чем сама теплица, поэтому его длина = 1,154+0,1(0,3) = 1,25-1,45 м – это необходимо учесть при раскрое профильной трубы для стропильной системы теплицы.
Чертежи теплиц из профильной трубы с размерами. Теплица своими руками из профильной трубы
Теплица на приусадебном участке — это практично и с пользой, урожай радует с ранней весны до поздней осени. Считается, что каркас из профильной трубы –наиболее оптимальный вариант для изготовления подобных конструкций. Надежно, безопасно, функционально, при правильной эксплуатации и уходе прослужит долгий срок.
В статье поделимся секретами, как самому сделать теплицу из профильной трубы: спроектировать сооружение, определится с размерами. Приведем пошаговую инструкцию, как построить домик для овощей своими руками.
Invalid Displayed Gallery
Профильная труба для постройки теплицы – все «за и против»
Профильная труба имеет в сечении квадрат или прямоугольник, по способу изготовления может быть:
- горяче- и холоднодеформированные;
- электросварные, электросварные холоднодеформированные.
Форма, размер, характеристики профтруб регламентируются частью 8639-82 и 8645-68 ГОСТ. Для изготовления профильных труб используют разные металлы, наиболее востребованы в частном и коммерческом строительстве теплиц изделия из стали с антикоррозийным защитным покрытием, влагонепроницаемые. Прочность материала обеспечивают 4 ребра жесткости, на которые и ложится основная нагрузка от всей конструкции теплицы.
Физико-механические характеристики профильных труб позволяют изготовить качественный, надежный каркас. Чтобы продлить срок эксплуатации, сохранить эстетику и целостность теплицы, после монтажа сварной конструкции ее необходимо:
- тщательно зачистить жесткой щеткой от окалины;
- обработать абразивной шкуркой, чтобы удалить даже невидимые признаки коррозии;
- промыть растворителем;
- загрунтовать;
- покрасить.
Ржавчину можно удалить, обработав очаги поражения уксусной эссенцией. Выполнять работы следует в резиновых перчатках и респираторе.
Профильная труба по виду напоминает деревянный брус с прямой стороной. Форма удобна для крепления листового материала: поликарбоната, стекла, пленочно-рамочных элементов — это значительно облегчает изготовление теплицы из профильной трубы своими руками.

Парник из профильной трубы 20х20 своими руками. Парник из профильной трубы своими руками – чертежи, фото и видео инструкции
Для получения большего урожая не обязательно устанавливать теплицу, достаточно соорудить парник небольшого размера. Он займёт не много места, и обойдётся гораздо дешевле.
Отличным решением в данной ситуации станет сооружение парника из профильной трубы своими руками, а размеры и чертежи вы найдете в данной статье. Эта надёжная и долговечная конструкция, позволит получать урожаи в более ранние сроки.
Так же предлагаем ознакомиться с пошаговой инструкцией — как сделать парник из полипропиленовых труб своими руками .
Преимущества парника из профильных труб
В парнике главная роль отводится каркасу, поэтому он должен быть прочный и иметь рёбра жесткости, которые будут держать форму и противостоять различным нагрузкам. Идеальным материалом для изготовления каркаса, будут профильные трубы из металла.
Они обладают рядом преимуществ:
- простотой в обработке;
- возможностью создавать конструкцию разной формы;
- длительным сроком эксплуатации — металлопрофильные постройки служат до 15 лет, а как показывает практика, то и намного дольше;
- не нуждаются в уходе и защите от вредителей;
- доступны по цене;
- сочетаются с любым материалом.
Помимо этого, по сравнению с деревянной конструкцией, постройка из профильных трубопрокатных материалов компактней, поэтому расположить ее на участке не составит труда.
Единственный недостаток данного сооружения — более длительное время возведения.
Выбор типа конструкции
Прежде, чем начать изготовление парника из профильных труб своими руками нужно определиться с моделью конструкции, и набросать чертёж. Ведь от формы сооружения зависит угол преломления солнечных лучей.
Основные виды парника из этого материала:
- Арочный — для возведения требуется специальное оборудование, чтобы придать форму. В остальном, имея изогнутые детали нужного размера и чертёж, собрать такой парник своими руками не составит большого труда. В арочной конструкции создаётся равномерное освещение, вне зависимости от расположения солнца.
Минус модели — ограниченная функциональность, так как высокие культуры вдоль стен не смогут расти.
- Односкатный — несложный вариант, монтируется к стенам жилых или хозяйственных построек. Использование данной компактной модели позволяет экономить не только место, но и стройматериалы.
- Двускатный или шатровый— отдельная постройка. В таком сооружении создаётся лучшая освещённость для культур, в отличие от односкатной.
Шатровый — простая конструкция, нет изогнутых элементов. Поэтому, огородники самостоятельно чаще монтируют именно её. Кроме того, плюс парника с двускатной крышей — возможность высаживать культуру разной высоты.
Стоит отметить, что шатровый вариант крыши обойдётся дороже арочного, так как для монтажа каркаса требуется больше материала, как основного, так и укрывного.
- Парник Фёдорова — в народе имеет название «хлебница», его легко изготовить самостоятельно на основе разработанного чертежа. Подходит для выращивания рассады, цветов и овощей, единственный минус — не предназначен для высокорослых культур. Конструкция простая, оснащена крышкой, которая открывает доступ для ухода за растениями.
Как сделать чертёж самостоятельно
Для изготовления парника из профильного трубопрокатного материала — можно использовать наземный или малозаглублённый вариант. Наземный удобен тем, что в нём полностью исключено затемнение, он предназначен для возведения в средних и южных широтах. В малозаглублённом типе парника тепло черпается из земли. Однако вблизи стен образуются затемнения, что отрицательно сказывается на росте растений.
При составлении чертежа парника из профильных труб стоит учитывать съёмные верхние части, которые будут обеспечивать доступ воздуха внутрь. Кроме того, чтобы каркас был более прочен, требуется предусмотреть специальные элементы, которые закрепляются вдоль стенок.
Наилучшим образом для каркаса подойдёт профиль с размером сечением 40×20 мм или 40×40 мм, так как имеет высокую прочность. Оптимальная толщина стен 2 мм и больше. Для изготовления горизонтальной стяжки можно брать профиль с толщиной стен тоньше 1-1,5 мм.
На чертеже необходимо указать точный размер — ширину, длину и высоту. Кроме того, следует указать места соединений основных и направляющих частей.
Ниже представлены чертеж с размерами для различных типов теплиц.
Чертеж теплицы по митлайдеру из профильной трубы. Основание под теплицу
При строительстве стандартного парника можно обойтись и без фундамента. Если участок ровный, не затапливается в половодье, нижнюю обвязку алюминиевого каркаса кладут прямо на землю. Конструкция легко выдерживает небольшие колебания грунта при замерзании.
Теплица Митлайдера устроена несколько сложнее. Даже при небольших перекосах верхние фрамуги перестанут закрываться. В застекленных постройках могут потрескаться стекла. Поэтому простейший фундамент для нее необходим – точечный, из бруса или бетонный ленточный.
Для точечного фундамента подойдут следующие материалы:
- деревянные колья прямоугольного сечения;
- металлические винтовые сваи;
- столбики из бетона.
Чертеж теплицы по Митлайдеру с нужными размерами необходимо подготовить заранее, чтобы не пришлось подгонять габариты постройки под уложенный фундамент.
Выбранный участок очищают от мусора, снимают верхний слой почвы, тщательно выравнивают. Находят крайние точки и отмечают их колышками. Между ними на равном расстоянии помечают места под опорные точки.
Частота опорных точек зависит от тяжести будущей конструкции, материала каркаса и плотности грунта. Сваи или столбики устанавливают на расстоянии от 0,5 до 1 м.
В отмеченных точках забивают деревянные колья, предварительно обработанные антисептиками, винтовые сваи или выкапывают ямки под бетонные столбики. В последнем случае перед строительством каркаса придется выждать не менее 2 недель, чтобы бетон окончательно затвердел и набрал прочность.
Ленточный фундамент для теплицы строят так же, как и для других построек. В земле выкапывают траншею глубиной 25–40 см, монтируют опалубку, засыпают слоем песка, трамбуют дно, укладывают арматуру. При заливке верхней части фундамента к арматуре приваривают держатели для металлического каркаса.
Теплица из профильной трубы под пленку. Металлический каркас
Для изготовления каркаса можно использовать разные материалы: круглые или профильные трубы, арматуру, стальной оцинкованный или алюминиевый профиль.
Из таких профилей собрать конструкцию своими руками достаточно просто – они легко просверливаются саморезами по металлу, им можно придать любую форму без использования специального оборудования. Если вы работали с гипсокартоном, то представляете себе, как это делается.
Мы же расскажем, как сделать арочный каркас из металлических труб.
Технология возведения металлического каркаса для теплицы
Чтобы металлическая теплица получилась прочной, желательно использовать трубы диаметром 20-25 мм или профильные трубы сечением 20х40 мм. Кроме них вам понадобится материал для основания – это могут быть шпалы, толстый просмоленный брус или металлический уголок.
Трубы с помощью специального оборудования изгибают, чтобы придать им форму дуги.

На фото – ручной трубогиб
Далее из шпал, бруса или уголка сооружается основание для будущей теплицы. В деревянном основании с шагом около 1 метра просверливаются отверстия глубиной 8-10 см и диаметром, равным сечению трубы.
В эти отверстия вставляются концы металлических дуг. К металлическому основанию дуги привариваются или фиксируются болтами.
Дальнейшая инструкция такова:
- Все дуги(см. Крепление дуг парника: рекомендации и советы ) в верхней точке соединяются друг с другом коньковой рейкой – трубой нужной длины;
- По бокам теплицы также крепятся трубы-прогоны, придающие конструкции жесткость. Крепление производится сваркой или болтами;
Обратите внимание! При болтовом соединении не просверливайте сами трубы – это снизит их прочность. Приварите к ним скобы и прикручивайте прогоны и коньковую рейку болтами к скобам.
- Торцы теплицы укрепляются вертикальными перемычками, между которыми устраиваются двери.

Схема каркаса из профильных труб
Особенности использования
Вообще металл и пленка – не самые лучшие соседи. Дело в том, что под жарким солнцем металлический каркас сильно нагревается, и соприкасающаяся с ним пленка начинает буквально плавиться.
Чтобы этого не происходило, остов теплицы нужно обязательно красить, причем в белый или другой светлый цвет. Краска убережет металл и от коррозии.
Ещё лучше обернуть дуги и перемычки тканью или надеть на них куски разрезанного вдоль старого шланга.
Совет. Проще всего приобрести готовый каркас парника из пленки и собрать его на месте. Обычно все его детали хорошо подогнаны друг к другу, тщательно обработаны и покрыты краской, имеют специальные зажимы для крепления пленки.