Расположение петель на двери. Как выбрать дверные петли
- Расположение петель на двери. Как выбрать дверные петли
- Установка 3 петель на двери. Правильное нанесение разметки
- Как установить петли на дверь шкафа. Установка петель на дверцы шкафа своими руками
- Как поменять петли на межкомнатной двери. Можно ли установить петли на межкомнатные двери самостоятельно?
- Наружные петли для дверей. Типы: преимущества и недостатки
- Сколько петель ставить на межкомнатную дверь. Выбор типа и количества петель в зависимости от параметров межкомнатных дверей
- Три петли на межкомнатные двери. Петли для межкомнатных дверей: выбор для любого случая
- Петли на межкомнатные двери расстояние. Разметка
- На каком расстоянии устанавливаются дверные петли. Собираем дверную коробку своими руками
Расположение петель на двери. Как выбрать дверные петли
Перед тем, как приступить к установке дверных петель, необходимо их приобрести в нужном количестве. Сделать это не так просто, как можно подумать с первого раза – подвесы подразделяются по размеру воспринимаемой нагрузки, количеству на полотне, используемым материалам, типу крепления и другим критериям:
- Главное, что влияет на количество петель – масса полотна. Причём, в закрытом состоянии дверь плотно зафиксирована в коробке и обрамлена несущими элементами со всех сторон. При открывании полотна, нагрузка на петли резко возрастает – образуется пара сил – в верхней части выдёргивающие усилия, а в нижней части – сжимающие. Эти нагрузки неминуемо действуют на посадочные стержни петель, и в результате неправильного выбора, они могут сломаться или деформироваться.
- В то же время, в любом положении, саморезы, удерживающие дверные подвесы, работают на срез, и их прочность также важна. Как правило, каждая стандартная петля имеет шаблонные отверстия под устройство от 4 до 6 саморезов, а сами метизы прилагаются в комплекте. Перед покупкой их необходимо осмотреть визуально, и, если их прочность вызывает сомнение, лучше приобрести другие метизы из высокопрочной стали дополнительно.
- Для удобства эксплуатации тяжёлых массивных изделий лучше использовать подвесы с шариковыми подшипниками, которые воспринимают на себя основную нагрузку и максимально снижают силу трения.
- Если установка петель ведётся своими руками, лучше спросить консультанта об изделиях с возможностью незначительной рихтовки, так как отсутствие профессионального инструмента нередко приводит к фатальным ошибкам. Наилучшим решением для начинающего мастера будет приобретение петель с регулировочными шайбами и овальными отверстиями для крепежа. Всё это обеспечит возможность люфта уже смонтированного элемента и избавит от дополнительных трат в случае неточной фиксации.
- При установке двери в ванную комнату следует помнить, что это помещение с повышенным влажностным режимом, и все металлические элементы могут быть подвержены коррозии. Поэтому для данного типа пространств лучше приобрести петли с особым покрытием, либо из нержавеющей стали или латуни.
- Следует уделить особое внимание на конструкцию двери, прежде всего, на её толщину, так как контактная поверхность петли не должна выступать за пределы её торца. Лучше всего выбирать изделия с шириной на 3 – 4 мм меньше, чем толщина самого полотна. В таком случае появится возможность скрыть крепёжные элементы, обеспечив, при этом, эстетический внешний вид двери.
Установка 3 петель на двери. Правильное нанесение разметки
Установка дверных петель на глаз недопустима – даже небольшая погрешность может привести к перекосу и деформации дверного полотна и конструкции. Разметка выполняется карандашом следующим образом:
- Приложите петли на места предполагаемой установки. Размещение петель должно осуществляться с минимальным отступом от краев двери (верх и низ) на 20 сантиметров.
- Обведите приложенные к дверному торцу петли карандашом, после чего отложите их.
- С помощью стамески и молотка сделайте углубления в размеченных областях, необходимые для установки врезных петель.
Перед тем, как установить петли на дверь, необходимо разметить дверную коробку. Данная операция потребует сноровки и терпения, чтобы правильно определить место установки петли:
- Установите полотно в коробку и зафиксируйте посредством деревянных клиньев так, как она должна будет находиться в установленном состоянии. Для выравнивания дверного полотна следует воспользоваться строительным уровнем.
- После выравнивания полотна отметьте на коробке места соприкосновения дверных петель с дверью.
- Как и в случае с дверным полотном, посредством молотка и стамески сделайте необходимое число углублений под установку дверных петель.
Установка простых карточных петель
Установка карточных дверных петель своими руками в основном осуществляется двумя способами. Для начала рассмотрим простейший с использованием накладных деталей. Для этого понадобится дрель и саморезы, а также петли со специальным строением, их особенностью является то, что половинки имеют разную форму, а при закрывании двери входят друг в друга, именно поэтому их можно устанавливать непосредственно на поверхность двери. Наметьте с помощью карандаша места для отверстий и просверлите их. Если дверное полотно изготовлено из дерева, МДФ или пластика, можно сразу же вкручивать саморезы, без предварительного высверливания.
Последовательность установки накладных петель
Традиционно, используемые в доме прямые карточные петли, устанавливаются несколько иначе. Чтобы они не стопорили механизм при закрывании, их нужно немного утопить. Врезку карточных петель в межкомнатные двери своими руками проще всего производить с помощью стамески, для этого на двери и лутке срезается слой материала на глубину детали. Затем половинки петель прикладываются к месту установки и закрепляются саморезами.
Как установить петли на дверь шкафа. Установка петель на дверцы шкафа своими руками
Монтаж крепежных деталей на дверцах и боковинах шкафов – непростой процесс. От правильной установки петель зависит баланс створок, их беспроблемная эксплуатация в течение длительного времени. Как установить петли на шкаф своими руками , можно узнать из данного материала.
Следуйте рекомендациям, и вы сможете самостоятельно сделать всю работу по сборке предметов обстановки в гостиную, спальню или прихожую.
Крепления , устанавливаемые на крупногабаритной мебели , – это полумеханические элементы , которые отвечают за раскрытие створок. Многое зависит от материала и толщины дверей, поэтому и то, из чего сделаны петли, тоже важно.
Петли должны выдерживать нормативные нагрузки.
установки чаще всего используют накладные устройства с четырьмя шарнирами, так называемые лягушки. Такие крепления удобны для любой конструкции, предполагающей распашные створки – платяного или кухонного шкафа, других видов мебели .
Металлические детали изготавливаются из прочных сплавов, устойчивых к коррозии и механическим деформациям.
Мебельные петли делятся на несколько видов, в зависимости от того, как их крепят:
- Н акладные;
- П олунакладные;
- В кладные;
- И нверсные;
- Р ояльные;
- П яточные;
- Ш тольные и др.
Виды мебельных петель.
Для шкафа применяют часто накладные конструкции с основаниями-чашками, которые соединяют с панелью при помощи саморезов. Механические вкладыши с «плечом» вставляются в эти основания и фиксируются на дверце и боковом полотне.
Такие крепежи достаточно надежны и долговечны, поскольку имеют усиленное соединение с плоскостями.
В зависимости от типа шкафа и его габаритов, а также материала выбирают подходящий вид соединительных деталей. Некоторые элементы используют исключительно для классической мебели, где все детали должны соответствовать стилю. Для обычных платяных шкафов выбирают стандартные накладные и полунакладные крепления .
Для установки на створки необходимо использовать сертифицированные промышленные изделия – это гарантия прочности и долгой службы мебели и ее отдельных частей.
Подготовка к монтажу
- Перед началом работ необходимо подготовить комплект инструментов и материалов для мебели . Обязательно иметь под рукой шуруповерт, дрель с соответствующими насадками, простой карандаш, мелок, линейку или рулетку. Понадобятся также шурупы, подходящие по размеру (обычно продаются вместе с петлями), и саморезы определенного сечения.
Инструменты для установки петель.
- При установке крепежей необходимо учитывать материал, с которым вы имеете дело, и его структуру. Для рыхлых или волокнистых деревянных панелей применяются разные виды креплений и способы фиксации. Стеклянные поверхности также требуют особого подхода. Преимущественно используются два крепления – вверху и внизу. Если створка много весит или превышает метровую длину, то для усиления можно добавить еще одну деталь по центру. При превышении 9 кг дверь оснащают дополнительными петлями – добавляют на каждые 5 кг веса. Для кухонных шкафчиков обычно используются две петли, для крупногабаритных предметов – от трех.
Максимальное количество крепежных элементов, которые можно разместить на двери при большой длине и массе 20 кг – 5 штук.
- От верхнего и нижнего внутренних углов двери нужно отмерить не менее 10 см, иначе створка со временем может «разболтаться», и шурупы выйдут из пазов.
Нельзя располагать петли на уровне полок – дверь не будет закрываться.
- Перед началом установки крепежных деталей необходимо сделать разметку. Это поможет соединить элементы намного точнее.
Воспользуйтесь карандашом или тонким мелком.
- Средняя длина отступа от края створки шкафа до центра петли составляет 2,2 см.
Это расстояние для стандартных креплений.
- Перед установкой петель на дверь шкафа протрите поверхности. Пометьте места будущих соединений острым гвоздем или шилом.
Подготовка мебели к монтажу крепежных деталей не терпит суеты. От этого зависит правильная работа дверей.
Как поменять петли на межкомнатной двери. Можно ли установить петли на межкомнатные двери самостоятельно?
Петли являются рабочим механизмом двери, независимо от её конструкции и материала. Без них створку невозможно закрыть или открыть. Происходит врезка петель любого вида практически одинаково, но существуют нюансы, зависящие от конструкции фурнитуры.
Виды петель
Если посмотреть, как врезают петли мастера, то кажется, что это сложное дело. В реальности работа простая, надо только правильно выбрать фурнитуру. По конструкции чаще всего используют следующие виды изделий:
- Прямые. Самые распространённые, состоящие из шарнира с боковыми крепёжными пластинами. Навесы называют карточными или бабочками.

- Угловые. Фурнитура предназначена для межкомнатных дверей с «еврочетвертью» (выступом, скрывающим зазор между створкой и дверной коробкой). Похожи на предыдущие, только боковые пластины сделаны из уголков.

- Вворачиваемые. Конструкция петель представляет собой поворотную ось с приваренными сбоку шпильками вместо крепёжных пластин. Предназначены для лёгких полотен .

- Скрытые. Фурнитуру устанавливают на дорогие входные двери. Конструкция петель скрытого монтажа представляет собой шарнир, утапливаемый при установке в теле дверного блока.

- Итальянские. От скрытых петель фурнитура отличается конструкцией шарнира. Механизм устанавливают на дорогих импортных дверях.
По способу установки различают три вида петель:
- Накладные. Фурнитуру просто фиксируют саморезами к поверхности двери и коробки без предварительного выреза углубления.

- Врезные. Под фурнитуру выбирают углубления. Крепёжные пластины получаются на одном уровне с поверхностью двери и коробки.

- Ввертные. Фурнитура имеет вместо крепёжных пластин штыри. Во время монтажа эти шпильки вкручивают в тело дверного блока.

По направлению открывания двери петли бывают:
- Левосторонние. Открыть створку можно только влево.
- Правосторонние. Открыть створку можно только вправо.
- Универсальные. Открыть створку можно вправо и влево.

Универсальные петли можно прикрепить с правой или левой стороны двери, что создаёт преимущество монтажа. Недостатком считается сложность быстрого снятия створки.
Необходимые инструменты
Начинается установка петель с подготовки инструментов. Достаточно иметь простейший набор:
- молоток со стамеской;
- прямую и фигурную отвёртку;
- шуруповёрт;
- электродрель;
- карандаш;
- пузырьковый уровень.

Если предполагается большое количество врезок, удобно использовать ручной фрезер. Из материалов нужны клинья для распорки полотна в коробке и саморезы.
Разметка
Начинают установку дверных петель с разметки. В зависимости от конструкции фурнитуры процесс монтажа имеет свои особенности. Общий момент — петли у межкомнатных дверей устанавливаются на расстоянии 20–25 см от верхнего и нижнего края. На месте крепления должны отсутствовать сучки, сколы, другие повреждения. Если имеется дефект на, петли смещают.

Процесс разметки при установке петель на двери предусматривает очерчивание контура крепёжных пластин или штырей. Дальнейшие действия зависят от типа фурнитуры. Накладные модели просто фиксируют саморезами. Под врезные крепежи выбирают стамеской или фрезером углубления. Для ввертных моделей сверлят отверстия.
Размечать нужно так, чтобы сделанная выборка не оказалась слишком глубокая. Это приведёт к перекашиванию двери. Когда такая неприятность случилась, глубину выборки уменьшают картонными подкладками.

Если предполагается много работы, упростить её поможет специальное приспособление – кондуктор для врезки петель. Шаблон можно купить или изготовить из фанеры. Кондуктор фиксируют зажимами на размеченном участке дверного полотна и во внутренней его части фрезером выбирают углубление.
После разметки дверь ставят в коробку, расклинивая клиньями так, чтобы по периметру получился одинаковый зазор около 3 мм. Следующими действиями нужно определить место крепления ответной части петли на раме. Положение створки проверяют уровнем во избежание перекосов. Когда полотно будет ровно выставлено, на коробке размечают место крепления второй части петли.
Как установить петли на дверь?
По окончании нанесения разметки приступают к монтажу дверных петель, но сначала определяют наличие дополнительных нюансов. Основной проблемой может быть большой вес полотна. Межкомнатные двери обычно пустотелые и лёгкие. Если створка сделана из массива дуба или другого тяжёлого дерева, две петли её не выдержат. Выходом из положения является врезка третьего элемента по центру полотна. Тогда верхнюю и нижнюю петлю можно сдвинуть ближе к краю.
Наружные петли для дверей. Типы: преимущества и недостатки
Существует большое разнообразие навесов. Основные из них объединены в таблицу:
| Преимущества | Недостатки |
накладной элемент, виды | |
|
|
Скрытый элемент | |
|
|
Элементы торцевые | |
| Не рекомендуется сильно нагружать двери. |
Врезная | |
| Для их изготовления используется обычная сталь, с последующим нанесением хрома или никеля. |
Ввертная | |
|
Совет: Не стоит такие петли устанавливать на хрупких и некачественных полотнах, выполненных из мягкой древесины, дешевого пластика. Это может привести к нарушению внутренней структуры полотна, появлению трещин, перекосов и сколов. |
Угловой навес | |
| Это карточные навесы, имеющие форму угла. Им присущи такие же плюсы. В добавление — монтаж шарнира на дверях с притвором. | Устройство нельзя скрыть, что портит внешний вид. |
Двухсторонний навес | |
| Возможность распахивать полотно в две стороны. Это очень удобно для офисов и предприятий общественного питания, где большое скопление людей. Иначе изделия называются барные. |
|
Элементые на подшипниках | |
| При плохом качестве подшипников, сепараторы могут рассыпаться, а шарики разлетятся. |
Дверные рояльные изделия | |
| Такие модели морально устарели, их активно вытеснили другие виды. |
Сколько петель ставить на межкомнатную дверь. Выбор типа и количества петель в зависимости от параметров межкомнатных дверей
Широким потребительским спросом пользуются именно карточные петли. Такая популярность была заслужена за счет своей недорогой стоимости и легкости в процессе монтажа. Здесь не требуется помощь специалиста. Комплектация такого механизма так же не отличается сложностью: две пластины, которые еще называют крыльями или картами, на которых есть люверсы для крепежных элементов – саморезов.

Фото 2 Количество петель напрямую зависит от веса межкомнатной двери.
Этот вид изделия предопределен своей конфигурацией еще со времен 80-х годов, когда началось их массовое производство.Самые простые варианты стальные с двумя люверсами на одной карте, в большинстве случаев используются для нежилых помещений, таких как дачные сараи или уличные душевые. Но для того, чтобы подстраховать себя, монтаж дверей производят не с помощью саморезов, а шурупами с крупным шагом. Производство таких изделий уже давно не актуально.
Современное же производство петель на межкомнатные двери, предлагает более обширное разнообразие как в цветовой гамме, так и в размерной. По размерам различают четырех- и пятидюймовые детали. В первом варианте навесные элементы имеют четыре люверса, во втором, соответственно, пять. При выборе нужного типа петель стоит обязательно учитывать массивность дверного полотна. Чем больше вес у двери, тем больший размер у навесов. Для очень тяжелого дверного полотна необходим монтаж дополнительных петель, как минимум одной.
Три петли на межкомнатные двери. Петли для межкомнатных дверей: выбор для любого случая
Возможно, вы обращали внимание на стеллажи с дверной фурнитурой и могли заметить какой большой выбор дверных петель.
Петли для межкомнатных дверей отличаются по дизайну, цвету, размеру, материалу.
Они отличаются размером, количеством отверстий, разнообразием крепежей, способом открывания. Все это неслучайно. Любая петля предназначена для конкретного типа дверей: деревянных, металлических, пластиковых. Основным нюансом является весовой параметр полотна. Нельзя удержать тяжелую металлическую дверь двумя карточными петлями. Здесь нужны мощные сварные элементы. Все дверные петли принято подразделять на следующие виды:
- Накладные — устанавливают без каких-либо пазов, углублений. Накладные петли самые простые в установке.
Размещают на торцевой части полотна и стойке коробки. Могут быть цельными или разъемными. Часто используются для межкомнатных дверей из МДФ, пластика, филенки. Полотно не должно быть очень тяжелым. Если такие навесы выбраны для установки на дверь из массива, лучше брать их в количестве трех штук. - Врезные — устанавливаются в определенное углубление, сделанное в полотне и коробке. Врезные петли требуют большего навыка в работе с электроинструментами.
Этот вид подразделяют на скрытые и частично утопленные. В чем же заключается разница? Простые врезные петли вставляются в небольшое углубление, которое соответствует толщине петельной площадки. Выемку можно сделать без специального инструмента, используя только стамеску, долото, молоток. Скрытые навесы должны быть сильно утоплены в полотно. Отверстие создается специальной пилой или фрезером. Встречаются такие петли на дорогих межкомнатных дверях, возможно применение на входных конструкциях, что позволяет уменьшить риск проникновения непрошеных гостей в дом. - Вкручиваемые — имеют специальные винты, встроенные в площадку. Вкручиваемые петли используются нечасто для межкомнатных дверей.
Петли ввинчиваются в полотно и коробку только облегченной формы. В настоящее время используются редко. - Угловые модели — имеют форму угла, используются для установки маятниковой системы открывания. Угловые петли для навешивания дверей.
Устанавливаются как обычные карточные петли.
Источник: https://doma-na-veka.ru/stati/3-petli-ili-2-petli-na-metall-dveryah-0
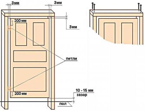
Петли на межкомнатные двери расстояние. Разметка
- Оптимальный отступ петель от срезов полотна – 200 мм. На таких расстояниях от низа и верха проводятся линии.
- Навесы прикладываются так, чтобы их края с ними совпали. Но установка дверных петель производится с учетом направления распахивания полотна (левое или правое).
- Карандашом обозначается контур навеса.
- С помощью стамески делается выборка древесины на глубину, равную толщине врезаемой в межкомнатную (или входную) дверь петли; поверхность выравнивается.

- Навес устанавливается в подготовленное «окно», проверяется его положение и при необходимости корректируется.
- После этого обозначаются метки и делается сверление отверстий под крепеж.
На этом первый этап врезки заканчивается. Но есть ряд нюансов, которые не следует упускать из виду.
- Стержень навеса не должен плотно прикасаться к двери, иначе подвижность фурнитуры будет ограничена; возникнут сложности с закрыванием/открыванием двери. Но и выдвигать петлю далеко за периметр полотна также не стоит. На нее возрастет нагрузка, крепления постепенно ослабнут, и в результате – перекос.

- Каркас делается из бруса. Если модель из категории «бюджетная», то древесина для нее берется 1 или 2 сортов. Вполне возможно, что при разметке в точке сверления отверстия окажется сучок. А потому врезка петель точно в этом месте нецелесообразна, так как один из элементов крепежа свою функцию попросту не выполнит. Логичное решение – немного сместить навес с проблемного участка в любую из сторон, но не более чем на 25 мм.
- Все полотна отличаются и размерами, и весом (в зависимости от материала изготовления). Для массивных моделей следует делать врезку не менее трех петель в дверь. Это нивелирует нагрузку на навесы и продлит срок безремонтной эксплуатации конструкции. Разметка проводится так же, но дополнительную петлю желательно ставить не строго по центру среза полотна, а со смещением вверх. Это повысит надежность всех крепежных деталей.

На каком расстоянии устанавливаются дверные петли. Собираем дверную коробку своими руками
Сборку коробки нужно выполнять на ровной поверхности (лучше всего — на полу) вне дверного проема, там же разметить и сделать врезку разъемных петель. Независимо от того, приобретена ли Вами готовая (собранная) коробка или вместе с дверной створкой Вы получили комплект брусков для коробки и обналичников — нужно отрегулировать коробку.
Мы положили половину шарнира на дверной проем. Мы выполняем установку деревянной рамы с деревянной фурнитурой, проверяем уровень, рулетку и, возможно, свинец со свинцом, который должен быть идеальным, иначе дверь не будет закрываться должным образом. Существует также проверка с установленным полотном ворот. Все в порядке, мы положили автофурнаты в отверстия на кобуре и механически зафиксировали кобуру. Мы стараемся не слишком усердно перемещать коробку с правильной позиции.
Подготовьте кожух из полиуретановой пены, предохраняйте кожух бумагой, приклеенной к липкой ленте, чтобы предотвратить проскальзывание полиуретановой пены на поверхность и установить 3 стельки, чтобы предотвратить перемещение корпуса при расширении пенополиуретана.
Нужно положить дверную створку на пол, приподняв ее над полом на высоту, равную ширине бруса, предназначенного для коробки — брус должен свободно перемещаться, при этом не должно быть «лишнего» зазора. Для подъема дверной створки подойдут книги нужной толщины, в мягком переплете — поверхность двери не будет повреждена.
При сборе коробки нужно выдержать небольшие зазор (3-4 мм) между дверным полотном и коробкой (со всех сторон). Если у Вас готовая коробка и зазоры выходят меньшего размера — извлеките скрепляющие гвозди, настройте зазоры до нужной ширины, затем снова соедините коробку гвоздями. Легче настроить положение коробки и дверного полотна, если Вы приобрели коробку в разобранном виде. При покупке обратите внимание на бруски для формирования коробки — они должны иметь строго прямоугольную форму, без каких либо изгибов и неровностей. Будет удобнее всего, если верхний брус для коробки будет иметь горизонтальную Г-образную выемку. Замечу, что при готовом обрезе бруса под углом в 45 градусов выровнять дверную коробку крайне сложно.
Смочите сустав между рамой и стеной водой с помощью пистолета-распылителя. Влажность способствует расширению пены и повышению адгезии. Нанесите пенополиуретан осторожно, чтобы не переусердствовать, дозируя количество пены и пытаясь сохранить воздушные зазоры.
Через 24 часа мы удаляем внутренние зажимы по краю, удаляем защиту на пятке, вырезаем полиуретан и монтируем дверной створ. В середине пятки, вертикально, установите профиль маскирования пялец, где обруч был механически закреплен путем отсечения.
Смочите сустав между рамой и стеной водой с помощью пистолета-распылителя. Влажность способствует расширению пены и повышению адгезии. Нанесите пенополиуретан осторожно, чтобы не переусердствовать, дозируя количество пены и пытаясь сохранить воздушные зазоры.
Итак, собираем коробку — кладем два ровных бруса по бокам дверного полотна, выдерживаем зазор между дверной коробкой и брусом, обрезаем верхние концы бруса под прямой угол. Готовим верхнюю перекладину — нужно разметить ее длину, выпилить Г-образный паз под крепление к боковому брусу коробки (если его нет), установить, выдержав зазор в 2-3 мм между коробкой и дверным полотном. Нужно изготовить порог (если он необходим) — так же, как и верхнюю часть коробки, установить с зазором в 3-4 мм от дверного полотна. Если порога не будет, нужно отмерить расстояние в 15-20 мм от края дверного полотна до уровня пола (пол под дверью должен быть ровным!)
Размечаем расположение петель, обычно они врезаются на расстоянии 200 мм от верхнего и нижнего края двери — нужно замерить это расстояние и отметить положение петель на коробке и дверном полотне. Можно вначале вырезать гнезда для петель, а затем соединить части дверной коробки гвоздями, а можно вырезать гнезда после сборки коробки — как больше понравится. Крайне важно выдержать прямой угол между боковыми и верхней/нижней сторонами коробки! Перед тем, как соединить конструкцию коробки гвоздями длиною 70-90 мм (короткие детали прибиваются к длинным — не наоборот!), просверлите дрелью отверстия под гвозди (диаметр сверла около 3 мм). Со стороны петель вбиваются по два гвоздя — выдержав необходимое расстояние от края и середины бруса. Со стороны замка выбиваются (между серединой и краем верхнего бруса) по одному гвоздю сверху и снизу (если будет порог) — можно использовать крепление на одном гвозде для регулировки зазора, вращая брус по оси (пригодится при корректировке зазоров между дверным полотном и коробкой в собранном виде).







