Шкаф из мебельных щитов своими руками. Подготовка материала
- Шкаф из мебельных щитов своими руками. Подготовка материала
- Двери для шкафа из мебельного щита. Необходимые материалы
- Шкафчик из мебельного щита. Этап 1: подготовка материалов
- Мебель из мебельного щита на заказ. Мебель из щита на заказ
- Дополнительная полка в кухонный шкаф своими руками. Подготовка к монтажу дополнительных полок в шкаф
- Кухонный шкаф своими руками чертежи. Проектирование кухни своими руками
- Гардеробная из мебельных щитов своими руками. Выбираем материалы для изготовления гардеробной
Шкаф из мебельных щитов своими руками. Подготовка материала
Создание шкафа своими руками из мебельных щитов начинается с подготовки необходимых материалов для этой работы. Мебельный щит представляет собой специальный материал, сделанный на основе натурального дерева, причем под прессом деревянные бруски правильно склеиваются друг с другом.
На рынке мебельные щиты представлены в многочисленных видах. Они отличаются размерами, толщиной и породой дерева, используемой в процессе их изготовления. Наиболее востребованными считаются изделия из ели, сосны, дуба или березы.
К плюсам использования мебельных щитов для создания мебели относится:
- экологически чистые материалы, в составе которых полностью отсутствуют какие-либо верные или вовсе опасные компоненты;
- являются легкими в обработке, поэтому можно получить конструкции, обладающие необычным и ярким внешним видом, а также нестандартной формой;
- стоимость материала считается доступной для каждого покупателя;
- из него получаются действительно привлекательные шкафы.
Для создания шкафа из мебельного щита своими руками подготавливаются материалы:
- сам мебельный щит, причем желательно, чтобы его толщина была равна 2 см, а он будет применяться для создания не только корпуса, но и фасада конструкции;
- фанера, с помощью которой будут создаваться разные полки, причем ее толщина должна быть равна 1,2 см, а также нередко данный материал для экономии используется для формования внутренних перегородок в шкафу и его задней стенки;
- фанера толщиной в 6 мм, используемая для создания выдвижных ящиков, если планируется их наличие в шкафу;
- мебельная штанга и разнообразные держатели, обеспечивающие эффективное и оптимальное расположение разной одежды и иных предметов в конструкции;
- многочисленная фурнитура, в которую входят ручки, петли, направляющие и иные элементы для комфортного использования шкафа по назначению.
Для крышки и дна так же используются обычно мебельные щиты. Предварительно можно предусмотреть наличие в конструкции подсветки, для чего используются точечные светильники или специальная светодиодная лента.


Двери для шкафа из мебельного щита. Необходимые материалы
Для изготовления деревянной двери своими руками понадобятся следующие материалы:
- сухая шпунтованная доска;
Во время покупки толщина досок подбирается с учётом места установки дверного полотна. Для межкомнатной створки достаточно древесины толщиной 25 мм. Для входной двери используют доску толщиной 50 мм. После приобретения деревянные заготовки желательно просушить, уложив на ровную поверхность с использованием подкладок.
Дополнительно на входную деревянную дверь покупают врезной замок, петли, ручки, смотровой глазок. Для межкомнатной створки достаточно взять петли и ручку с защёлкой.
Создание шкафа своими руками из мебельных щитов начинается с подготовки необходимых материалов для этой работы. Мебельный щит представляет собой специальный материал, сделанный на основе натурального дерева, причем под прессом деревянные бруски правильно склеиваются друг с другом.
К плюсам использования мебельных щитов для создания мебели относится:
- экологически чистые материалы, в составе которых полностью отсутствуют какие-либо верные или вовсе опасные компоненты;
- являются легкими в обработке, поэтому можно получить конструкции, обладающие необычным и ярким внешним видом, а также нестандартной формой;
- стоимость материала считается доступной для каждого покупателя;
- из него получаются действительно привлекательные шкафы.
Для создания шкафа из мебельного щита своими руками подготавливаются материалы:
- сам мебельный щит, причем желательно, чтобы его толщина была равна 2 см, а он будет применяться для создания не только корпуса, но и фасада конструкции;
- фанера, с помощью которой будут создаваться разные полки, причем ее толщина должна быть равна 1,2 см, а также нередко данный материал для экономии используется для формования внутренних перегородок в шкафу и его задней стенки;
- фанера толщиной в 6 мм, используемая для создания выдвижных ящиков, если планируется их наличие в шкафу;
- мебельная штанга и разнообразные держатели, обеспечивающие эффективное и оптимальное расположение разной одежды и иных предметов в конструкции;
Предлагаем ознакомиться: Как правильно сделать стяжку пола Для крышки и дна так же используются обычно мебельные щиты. Предварительно можно предусмотреть наличие в конструкции подсветки, для чего используются точечные светильники или специальная светодиодная лента.
Шкафчик из мебельного щита. Этап 1: подготовка материалов
Щиты
Самый главный этап сборки шкафа своими руками из мебельных щитов. Что такое «мебельный щит?» Это материал, в основе которого лежит натуральная древесина, которая подается прессованию. В итоге все брусья склеиваются между собой практически идеально.
Приобрести мебельные щиты можно в самых разнообразных вариациях. Отличаются они по своим размерам, толщине, древесной породе и т.д. Самые популярные и практичные – сосновые, еловые, березовые или дубовые щиты. Они просты в обработке, прочны, и долговечны.
Преимущества мебельных щитов при создании самодельного шкафа:
- В материалах нет абсолютно никаких примесей, которые могли бы нести опасность для здоровья человека.
- С мебельными щитами легко работать, что позволяет создать очень яркую, нестандартную по форме, конструкцию.
- Цена щитов предельно низкая, наряду с прочностью и натуральностью.
- Из такого материала действительно можно создать привлекательный и уникальный предмет интерьера.
Для реализации задуманного проекта шкафа, необходимо подготовить следующие расходные материалы:
- мебельный щит. Лучше брать варианты с толщиной в 20 мм., так как его можно использовать не только для создания основы, но и в качестве корпуса;
- фанера. Из нее реализовываются различные полки, внутренние перегородки. Оптимальная толщина материала – 12 мм.
Остальные листы фанеры должны иметь по 6 мм. толщины. Они будут использоваться для формирования ящиков (если таковы есть в плане); - штанга для мебели и аксессуарные держатели. Позволят максимально свободно распределить пространство в мебели. На них будет вешаться одежда, прикрепляться какие-либо аксессуары и т.д.;
- фурнитура. К ней относятся всевозможные петли, ручки, направляющие, и остальные детали для удобной эксплуатации шкафа.
Чтобы сделать крышку и днище, тоже можно применять мебельные щиты. Если нужно, в них предварительно продумываются вырезы для подсветки.
Теперь перейдем к инструментам, которые нам понадобятся для создания шкафа из мебельного щита своими руками.
Шкафчик из мебельного щита. Этап 1: подготовка материалов
Самый главный этап сборки шкафа своими руками из мебельных щитов. Что такое «мебельный щит?» Это материал, в основе которого лежит натуральная древесина, которая подается прессованию. В итоге все брусья склеиваются между собой практически идеально.
Мебельные щиты можно приобрести в самых разнообразных вариациях. Отличаются они по своим размерам, толщине, древесной породе и т.д. Самые популярные и практичные – сосновые, еловые, березовые или дубовые щиты. Они просты в обработке, прочны, и долговечны.
Преимущества мебельных щитов при создании самодельного шкафа:
- Простота монтажа
- Высокая прочность
- Долговечность
- Возможность customization
Для реализации задуманного проекта шкафа, необходимо подготовить следующие расходные материалы:
- Мебельные щиты (для стен, пола, крышки и днища)
- Клей
- Нити для крепления
- Инструменты для обработки дерева (например, топор, пилка, шлифовальная машинка)
- Топор
- Пила
- Шлифовальная машинка
- Клещи
- Ударный молоток
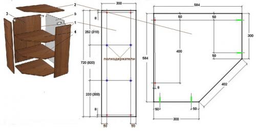
- Ширина полки должна строго соответствовать ширине шкафа – иначе полка не войдёт в него или будет проваливаться. Для комфортной установки полки можно делать её меньше ширины шкафа на 1 мм, но не более.

- Глубина может строго соответствовать глубине шкафа при закрытой дверце или быть меньше. Следить необходимо, чтобы этот размер не оказался большим, даже на незначительную величину, иначе дверца просто не будет плотно закрываться.
- Измерительные инструменты — линейки и уголки.
- Дрель со свёрлами разных диаметров.
- Шуруповёрт и крепёжные элементы.
- Кромочная лента и утюг для её приклеивания.
- Материал для изготовления полок и простой карандаш для нанесения разметки.
- Место под установку плиты должно быть равно ширине ее самой, обычно это 50, 60 см.
- Для встроенной плиты шкаф должен быть шириной 60 см и глубиной не менее 55 см. Тоже относится и для духовки.
- Пространство под вытяжку должно быть 60 см для встроенной и 90 для остальных типов.
- Расстояние между вытяжкой и плитой должно быть не менее 70 см. Шкаф для встроенной вытяжки по высоте должен быть на 30 см меньше остальных.
- Пространство под холодильник должно быть не менее 60 см.
- Выкатные корзины устанавливаются в кухонные шкафчики только стандартного размера.
- Сборочный эскиз, в котором отражены все нюансы и размеры, необходимые для понимания того, как собирается кухонный гарнитур;
- Деталировка или схематический рисунок на каждую деталь;
- Общий список и изображение заготовок на каждый модуль или встраиваемый шкаф.
Чтобы сделать крышку и днище, тоже можно применять мебельные щиты. Если нужно, в них предварительно продумываются вырезы для подсветки.
Теперь перейдем к инструментам, которые нам понадобятся для создания шкафа из мебельного щита своими руками:
В следующем этапе мы будем готовить инструменты и материалы для сборки шкафа из мебельного щита.
Мебель из мебельного щита на заказ. Мебель из щита на заказ
Создать в помещении по настоящему комфортную и уютную обстановку сможет только мебель из натуральной древесины, но так как чисто массив подвержен деформации, лучше приобрести мебель из щита в нашей компании.
Мы на протяжении многих лет занимаемся производством качественной элитной продукции, используя для этого материалы из лучших пород древесины. У нас вы сможете выбрать шкаф из дуба, ясеня, бука и прочих видов наивысших сортов, поэтому изделия будут служить очень долго.
Каталог нашей продукции - мы работаем на территории Москвы и области
Зеркальные шкафы
Мебель из шпона
Мебель для спальни
Щит представляет собой очень прочный пиломатериал, изготовленный из цельной древесины. Внутри применяется более дешёвый материал, снаружи приклеивается шпон благородных пород, создавая впечатление цельного объекта.
Это как один вариант, также применяются щиты, изготовленные только из одного слоя прочно приклеенной между собой древесиной одного или нескольких пород. Такой материал обладает множеством преимуществ в отношении к ЛДСП и даже самому массиву:
Наибольшая механическая прочность. Это обеспечивается благодаря разнонаправленности волокон древесины. Такой щит не только выдерживает большие нагрузки, но и не деформируется под действием влаги.
Лучшая водостойкость, потому как для его производства не используется стружка, а только лишь цельный материал, обладающей лучшей стойкостью к воде.
Привлекательный внешний вид. Использование шпона разных типов деревьев, в том числе элитных сортов древесины, позволяет добиться поистине удивительных визуальных эффектов и исключительной красоты.
Материал более устойчив к любым видам повреждений, потому как щит дополнительно покрывается слоем лака, предохраняющим его поверхность от всех воздействий.
Это могут быть красивые наборы в спальню, в прихожую, комплекты на кухню. Тип помещения, где могут быть размещены такие изделия, не ограничен, потому что она способна выдержать любые воздействия.
Вы можете ознакомиться с нашими готовыми работами на сайте и оценить качество, стиль и вид используемого материала. Более того, вы можете самостоятельно приехать в мастерскую в Москве и руками потрогать изделия. Так как мы работаем исключительно на заказ, то в наличии для покупки готовых нет, но имеются экспонаты для примера. С ними вы всегда можете ознакомиться, чтобы в очередной раз убедиться, что наша компания — это лучший выбор для вас и вашей семьи.
Изготовление представляет собой довольно сложный процесс, потому что с этим материалом работать несколько труднее. Все же благодаря инновационным технологиям и мастерству наших работников мы гарантируем великолепное качество. Плюс ко всему у нас имеется собственный дизайнер, который создаст под ваши интересы необходимый атрибут для оснащения интерьера своего жилища.
Чтобы приобрести, вы можете позвонить нам или оставить заявку на сайте, что очень удобно. Все же присутствие нашего дизайнера обязательно, особенно, когда речь идёт о мебели со сложной формой и изделиях, которые необходимо с чем-то сочетать.
Он при помощи программы моделирования создаст электронную 3D-модель, которая идеально вольётся в ваш интерьер и обеспечит ваше жилье необходимыми функциями.
Мы применяем только качественный мебельный щит. Со всеми классами этого материала вы можете ознакомиться из таблицы:
| Категория или класс качества | Признаки состояния материала |
| А | Могут присутствовать отдельные сучки того же цвета и ложные ядра. |
| В | На поверхности допускается наличие вросших сучков до 30 мм. |
| С | Требования к материалу не предъявляются. Присутствуют дефекты. |
Естественно, мы используем щиты только из досок категории «А», так как это самый надёжный и эстетически привлекательный материал.
Делаем мебель быстро, доставляем по Москве и области с доставкой, в другие регионы только доставка. На всю свою продукцию предоставляем гарантию.
Дополнительная полка в кухонный шкаф своими руками. Подготовка к монтажу дополнительных полок в шкаф
Если возникла необходимость перепланировки внутреннего обустройства шкафа: измерить расстояние между полками, добавить новые, создать дополнительные перегородки, то сначала необходимо определиться с тем, какие перегородки установлены. Наиболее часто используемым материалом является древесно-стружечная плита так называемая ДСП.

Выбор материала
ДСП — оптимальный материал, для внутренних перегородок и полок шкафа. При помощи его можно легко создать нужную по размеру и форме полку, сделав на ней соответствующие отметки или раскрой, по которым потом происходит выпиливание. Но имеется и слабое место у древесно-стружечной плиты – это её гибкость. Так что если планируется полка из ДСП, которая будет нести большую нагрузку, то нужно будет потом придать ей дополнительную жёсткость. Для этого к полке крепится планка из дерева, проходящая вдоль задней и передней кромки.
Обрезка под нужный размер
Перед тем как приступить к изготовлению своими руками полки следует измерить габариты шкафа в том месте, где будет устанавливаться элемент. Обязательно следует проверить перпендикулярность задней плоскости шкафа и боковых стенок. Для этого используют угольник. Потом измеряют два параметра: глубину и ширину – это и будет размер полки. Также может возникнуть желание сделать ширину полок разной. Тогда этот параметр нужно задать самостоятельно. Самое важное:
Для того чтобы изготовить полку можно обратиться в специализированный магазин – они выпилят её по предоставленным размерам. Если эта процедура будет осуществлять дома, то понадобятся:
Отделка кромочной лентой
При использовании плиты ДСП, в процессе вырезания нужных размеров, образуется край имеющий неприглядный вид. Помимо неэстетичности, неровности края будут способствовать тому, что о них будет всё время цепляться одежда, что приведёт к её порче. Для устранения этого недостатка используют специальную клейкую кромочную ленту. Благодаря широкому цветовому выбору такой ленты, не составит труда подобрать её тон в тон к плите. Крепится она достаточно просто — необходимо только приложить ленту к торцу распиленной полки и пройтись утюгом. После этого она должна надёжно зафиксироваться.
Кухонный шкаф своими руками чертежи. Проектирование кухни своими руками
Изготовление кухонного гарнитура начинают с проекта. Для проекта требуются габаритные размеры места, где она будет установлена. После чего можно начать подбирать составные элементы.

Чертеж кухонного гарнитура с размерами
Кухонный гарнитур состоит из ящиков, в которых может быть различное наполнение, начиная с полок и заканчивая выдвижными корзинами. Для отделений как верхнего, так и нижнего рядов установлены стандартные размеры по ширине начиная с 15 см до 100 см, с шагом 5 см, т.е. 15, 20, 25, 30, 35 см и т.д. Знать их нужно для проектирования.
При подготовке проекта следует руководствоваться стандартными размерами, т.к. вся фурнитура изготавливается с их учетом.

Определяя компоновку следует принимать во внимание, что стандартная высота ящиков нижнего ряда составляет 72 см, верхних может быть 60, 72 или 90 см. Глубина нижнего ряда 55 см, верхнего 30 см.
Конечно изготавливая кухонной гарнитур своими руками можно устанавливать произвольные размеры, но тогда придется отказаться от готовых компонентов кухни (например, фасад), и все элементы изготавливать по индивидуально.

В том случае если стандартными ящичками не заполняется все пространство, отведенное под кухню, то в оставшимся месте делают либо полки по индивидуальным размерам.
Отличительной особенностью обладает угловой кухонный гарнитур. Угловой кухонный шкаф может быть нескольких вариантов: прямой и с углом 135 градусов. Та же особенность относится и к верхнему ряду.

Прямой угловой кухонный шкаф чертеж

Угловой шкаф кухни чертеж. С углом 135 градусов

Угловой навесной кухонный шкаф чертеж
Угловая тумба под мойку (чертеж см. выше) часто используется если площадь помещения позволяет, для маленьких кухонь прямой шкаф. Таким образом, в прямой устанавливается прямоугольная или круглая мойка, в угловой – угловая или круглая.
Подготавливая проект мебели на кухню следует соблюдать следующие рекомендации:
Выбор чертежа и материалов
Независимо от того, какой способ выбран для изготовления мебели, перед тем как сделать кухонный гарнитур своими руками, нужно подобрать чертежи на изделие или сделать их собственноручно, желательно с максимальной степенью деталировки.
Один из вариантов, как составить эскиз и посчитать размеры на кухонный гарнитур своими руками, приведен на
В комплекте чертежей должно быть три основных документа:
В качестве материала лучше всего использовать простую и недефицитную еловую клееную панель, габаритами 600х1200 мм, толщиной 30 мм. Для каркасной схемы можно использовать любой брус и ту же еловую панель, но более скромных размеров, 400х600 мм. Разумеется, перед началом работ материал необходимо пропитать защитой от древоточцев и покрыть защитным лаком.

Гардеробная из мебельных щитов своими руками. Выбираем материалы для изготовления гардеробной
Оптимальным вариантом для гардеробной будут мебельные щиты из дуба – они отличаются прочностью, долговечностью, высокой несущей способностью и устойчивостью к нагрузкам. Кроме того, натуральная древесина дуба смотрится очень стильно и свежо, она прекрасно вписывается в современную концепцию эко-дизайна.
Если вы планируете действительно большую гардеробную, то для каркаса и внешних стен можно купить мебельный щит 40 мм – он достаточно толстый и прочный, чтобы выдержать массивную конструкцию. Для полок подойдет мебельный щит 20 мм – он может выдерживать внушительные нагрузки, но при этом не смотрится лишком толстым и не делает гардероб визуально «тяжелым».
Вам понадобятся специальные крепежи для штанг, перьевое сверло для создания отверстий под крепежи в щитах, уголки и саморезы для крепления полок, а также крепежи для сборки каркаса – желательно, чтобы это были специальные саморезы для древесины с дюбелями – тогда конструкция не расшатается и будет устойчивой.
Также можно сделать гардероб открытого типа – для этого не потребуются внешние и задняя стенки гардероба, так как полки можно закрепить на металлические уголки, а штанги прикрепить к стенам. Особенно такой способ удобен, если в комнате есть ниша или достаточно узкий торец. В таком случае двери не устанавливаются, а все вещи находятся в постоянном открытом доступе – чаще всего такой вариант выбирают люди, у которых нет домашних животных, так как питомцы любят отдыхать в корзинках и на полках.
Распилить щиты можно лобзиком или дисковой пилой – второй вариант предпочтительнее для толстых щитов. После того, как все крепежи подготовлены, а щиты подрезаны в размер, остается только собрать гардеробную, как конструктор, по заранее продуманному плану – для этого удобно будет использовать шуруповерт или дрель.
