Как сделать шкаф на балкон. Как сделать шкаф своими руками: пошаговая инструкция
- Как сделать шкаф на балкон. Как сделать шкаф своими руками: пошаговая инструкция
- Шкаф на балкон своими руками чертежи. Пошаговая инструкция, как изготовить простой шкаф на балкон (12 фото)
- Шкаф на балкон на заказ дешево. На балкон
- Бюджетный шкаф на балкон. Шкаф на балконе — красивый дизайн углового, встраиваемого, шкафа купе индивидуальных размеров с полками + фото идеи
- Пластиковый шкаф на балкон своими руками. Как и из какого материала сделать шкаф на балконе своими руками?
- Шкаф на неотапливаемый балкон. Как сделать шкаф на балкон (лоджию) своими руками: чертежи и схемы
Как сделать шкаф на балкон. Как сделать шкаф своими руками: пошаговая инструкция
Для балкона и лоджии очень важно сделать шкаф, подходящий к нему по габаритам. И это не обязательно должен быть встроенный гардероб с идеальными размерами. Просто на маленьких балконах не стоит делать слишком глубокие шкафы, а на больших, наоборот, слишком узкие. Рассмотрим шаги, которые нужно предпринять, чтобы собрать стеллаж из массива дерева своими руками.

- Шаг 1: определяемся с размерами. Допустим, вам нужен стеллаж высотой в 2,4 метра, глубиной в 30 см, шириной около 50 см, с боковыми и задними стенками. Это самый распространенный вариант шкафа для маленького балкона. Подгоните доски под нужный размер и обработайте их маслом.
- Шаг 2: строим каркас. Сначала соедините саморезами боковые стенки с днищем и крышкой, затем с задней стенкой, а лишь после этого — с полками. Именно такая последовательность приведет к правильному результату. После сборки можно покрасить стеллаж.
- Шаг 3: вешаем дверцы. Если в вашем варианте шкафа есть дверцы, ставьте петли и повесьте дверцы на них. Последние не обязательно должны быть из массива или ДСП и могут представлять собой раму с деревянной решеткой.
Вы также можете сделать шкаф на каркасе из брусков с сечением 4 на 2 см, тогдалучше делать вагонкой или фанерой. Правда, лучше всего такой стеллаж в итоге покрасить, тогда как предмет из массива может остаться просто лакированным. Из брусков легче всего сделать и встроенный стеллаж для балкона, невидимый засчет того, что он утоплен в стену.
Шкаф на балкон своими руками чертежи. Пошаговая инструкция, как изготовить простой шкаф на балкон (12 фото)
В пространстве лоджии многие организуют кладовку. Чтобы избежать беспорядка, лучше продумать удобную систему хранения. В этой статье мы расскажем, как сделать вместительный шкаф на балконе своими руками.
Замеры
Чтобы корректно определить параметры понадобится карандаш, рулетка и лист бумаги. Вооружаемся всем необходимым и фиксируем следующие параметры:
- ШхГхВ (ширину, глубину и высоту для будущей конструкции);
- Учитываем габариты вещей, которые планируем хранить;
- При необходимости делаем припуски для теплоизоляции и отделки лоджии.
- Записываем данные и разрабатываем дизайн мебели.
Определяем место для будущей конструкции на балконе.

Варианты конструкций
- Использовать фабричные детали для самостоятельной сборки;
- Конструировать мебель по индивидуальным размерам из пиломатериалов;
- Мебель из гипсокартона.
В мебельных магазинах можно приобрести специальные заготовки и фурнитуру, чтобы создать шкаф своими руками.
Из пиломатериалов чаще всего выбирают сосну, поскольку с этим деревом достаточно просто работать.
Сборка шкафа из пиломатериалов
Плюсы:
- Выдерживает значительную нагрузку;
- Эстетичный вид деревянной конструкции.
Минусы:
- Материал подвержен деформации, если недостаточно высушен;
- Сложность монтажа.
Нам понадобятся:
- Крепеж;
- Доски (30 мм и более – толщина);
- Бруски (40х40 мм – сечение);
- Фурнитура (петли, ручки, магниты);
- Молоток;
- Электродрель;
- Рубанок;
- Струбцины;
- Ножовка;
- Строительный уровень;
- Карандаш;
- Отвес;
- Рулетка;
- Отвертки.
Последовательность
1. Накануне работ делаем заготовки по размерам.
2. Сооружаем каркас – монтируем опорные балки, корректируя положение при помощи строительного уровня.
3. Закрепляем бруски нужной длины для будущих полок (перекладины);

Не забывайте про габариты вещей, которые будут храниться в шкафу, чтобы сделать правильную высоту полок.
4. Делаем устойчивую опору из поперечной рейки и закрепляем ее на полу крепежными элементами. Далее монтируем по аналогичному принципу верхний элемент. На поперечные рейки в дальнейшем закрепим направляющие для фасадов.

Данный этап с другого ракурса.

5. Нарезаем и устанавливаем полки.

Вид сбоку.

6. Выпиливаем двери, обклеиваем спилы специальной кромкой.

7. Монтируем двери на ролики, добиваясь удобного открывания, и прикручиваем ручки-рейлинги для дверей.

Колесико, которое приводит в движение дверь.

8. Красим бруски в торцевой части белой краской.


Шкаф на балкон на заказ дешево. На балкон
Шкафы на балкон – оптимальное наполнение для лоджии, позволяющее разместить большое количество вещей. При этом гарантирован необходимый порядок. Стильные конструкции не просто будут выполнять свою основную функцию, но и украсят пространство. При этом станет невероятно уютно и тепло. Если вы отдадите предпочтение изделию необычного дизайна, удастся создать неповторимый интерьер, который чудесным образом оживится. Важно лишь подобрать оптимальный предмет обстановки. Для этого стоит учитывать отделку балконного блока. Очень важно, чтобы изделие гармонично смотрелось и не диссонировало с наполнением пространства, а также хорошо подходило по размерам и другим параметрам.
Цены обновлены на:
Отзывы о товарах
Общая оценка: 5Основано на 5 отзывах
Удобная, недорогая модель для складирования вещей. У нас нет кладовки. На балконе скопились кое-какие предметы, которыми пользуемся в различные сезоны. Лыжи, палатка, ещё что по мелочи. Давно хотела утеплить балкон, вопрос об установке шкафа созрел сам собой. Взяли, не раздумывая. Обшили вокруг светлыми панелями, фасады створок гармонично смотрятся с их оттенком. Заказ оформили и изготовили быстро. Муж сам установил, заплатили лишь доставщику. Все поместилось внутри, стало уютно и комфортно. Большое спасибо компании за качественное изготовление и вежливое обращение с клиентами!
Работаю на дому, ремонтирую компьютеры, ноутбуки и другую технику. С рождением детей возникла потребность в спокойной рабочей зоне. Жена предложила обустроить балкон. Сразу захотелось и шкафчик туда какой-нибудь поставить, чтоб все на своих местах было. Для меня это важно. Модель выбирала супруга, мне было все равно, но вариант ее одобрил. Красивые фасады. Направляющие не вызывают вопросов: прекрасно ходят, плавно и мягко. По цене экономично очень. Смотрели другие варианты, есть ценники ниже, но совсем простецкое оформление. Было предложение оформить в другом цвете, но не стали мудрить.
Весной нам установили на балкон вместительный и удобный шкаф из ЛДСП. Учли все наши потребности и пожелания во время консультации и составления макета. Внутреннее пространство планировали сами. Нужно было разместить рыбацкие принадлежности мужа, сделать специальный отсек, несколько полок под мои инструменты и инвентарь для ухаживания за цветами (летом сажу на балконе цветы). Все сделали четко и слаженно: от замеров до установки. Модель отличается от образца, получилась полностью индивидуальной, не намного дороже. Спасибо, что смогли подстроиться под нас и перенести сроки установки.
Благодарна Микояновскому мебельному заводу за компетентных сотрудников и уважительное отношение к нам, пенсионерам. Увидела у соседки шкаф на лоджии. Поняла, что мне непременно нужен такой же. Ей сын заказывал. А я решила все сама. Вежливая девушка мне очень подробно все объяснила. Спросила, какую модель хочу. Я растерялась сперва. Но потом соседка подсказала, какой у нее. Приехал ко мне тот же замерщик, что и к ней. Площадь у нас одинаковая. Цвет я выбрала другой. Мне на деле все показали. Не обманули, сделали быстро и довезли. Потом приехал установщик. Колдовал несколько часов, и теперь мой балкон перестал быть местом складирования ненужных вещей. Все на своих местах.
Надежная и крепкая конструкция. Точно вписался в наш интерьер благодаря тому, что мы вызвали замерщика на дом. Дал “пощупать” и познакомиться со всеми расцветками и материалами воочию. Жена придирчивая. Долго подбирала нужный “рисунок”. Остановилась на каком-то необычном. “Флитвуд Шампань”. Ручки тоже отдельно были, не как на представленном экземпляре. Установили все мгновенно, вернулся с работы, а на лоджии уже все готово. Теперь ничего нигде не мешается и не портит вид. Ставлю твердую “пятерку” за высококлассное производство, грамотных и вежливых сотрудников и терпеливый подход.
Бюджетный шкаф на балкон. Шкаф на балконе — красивый дизайн углового, встраиваемого, шкафа купе индивидуальных размеров с полками + фото идеи
Шкаф на балконе может быть не только функциональным, но и стильным элементом интерьера. Независимо от того, сколько метров площади имеет балкон, шкафы на нем — это прекрасный способ организовать пространство и сохранить порядок. В данной статье рассмотрим, как правильно выбрать и разместить шкаф на балконе, чтобы он стал удобным и эстетичным дополнением к общему стилю помещения.

Идеи использования балконного пространства
Балкон может быть прекрасным местом для отдыха и развлечений. Вот несколько идей, как использовать балконное пространство.
Выращивание растений
- Растительность на балконе может украсить его и придать ему живописный вид.
- Выберите растения, которые хорошо растут в условиях, которые предоставляет ваш балкон, и ухаживайте за ними, чтобы они процветали.

Обеденный уголок
- Балкон может быть прекрасным местом для уютного обеда на свежем воздухе.
- Расположите стол и стулья на балконе и украсьте его свечами или цветами, чтобы создать приятную атмосферу.

Тренажерный зал
- Если у вас нет места для тренажеров внутри квартиры, балкон может стать отличным местом для занятий спортом.
- Расположите здесь тренажеры и установите зеркало для контроля техники выполнения упражнений.

Мини-офис
- Балкон может стать отличным местом для работы или учебы на свежем воздухе.
- Расположите на балконе стол, стул и необходимое оборудование, чтобы создать комфортное рабочее место.

Зона отдыха
- Балкон может быть прекрасным местом для отдыха и релаксации.
- Расположите здесь удобные кресла или шезлонги и украсьте балкон мягкими подушками, чтобы создать уютную атмосферу.

Место для барбекю
- Балкон может стать отличным местом для приготовления барбекю.
- Расположите на балконе гриль и украсьте его свежими цветами, чтобы создать атмосферу праздника.

Надеюсь, эти идеи помогут вам использовать ваш балкон на все сто процентов!

Плюсы и минусы шкафов на балконе
Шкафы на балконе могут быть полезным и удобным дополнением к интерьеру квартиры, но они также имеют свои плюсы и минусы. Рассмотрим некоторые из них:

Плюсы
- Дополнительное место для хранения: Шкаф на балконе может предоставить дополнительное место для хранения вещей, особенно если в квартире мало места.
- Удобство. Шкаф на балконе позволяет хранить вещи на свежем воздухе и убрать их из общего помещения, что создает более просторную атмосферу в квартире.
- Защита от влаги и пыли. Шкаф может защитить вещи от воздействия влаги и пыли, которые могут быть особенно проблематичны в маленьких квартирах.

Минусы
- Возможные проблемы с влагой. Если шкаф на балконе расположен неправильно или не имеет достаточной вентиляции, он может подвергаться воздействию влаги, что может привести к коррозии металлических деталей и гниению деревянных.
- Неудобство в использовании в зимнее время. Шкаф на балконе может стать неудобным в использовании в зимнее время, особенно если балкон не утеплен.
- Ограничения по размеру. Шкаф на балконе может иметь ограниченные размеры, что может быть проблематично для хранения больших вещей, таких как спортивный инвентарь или крупная мебель.
Виды шкафов
Шкафы на балконе являются популярным и удобным решением для организации пространства. Существует несколько видов шкафов, которые можно использовать на балконе, в зависимости от предназначения и требований.

Металлические шкафы
Металлические шкафы на балконе обычно используются для хранения инструментов, садовых принадлежностей и других предметов, которые могут быть подвержены воздействию влаги. Они могут быть изготовлены из различных материалов, таких как нержавеющая сталь или алюминий, и могут иметь дополнительные функции, такие как замки или встроенные полки.

Деревянные шкафы
Деревянные шкафы на балконе обычно используются для хранения одежды, белья, книг и других мелких предметов. Они могут быть изготовлены из различных пород дерева, таких как дуб, сосна или ель, и могут иметь различные дизайнерские элементы, такие как резьба или фрезеровка.

Пластиковый шкаф на балкон своими руками. Как и из какого материала сделать шкаф на балконе своими руками?
7 мин.
Балкон
Многие хозяева малогабаритных квартир рано или поздно сталкиваются с одной неприятной проблемой, масштабы которой увеличиваются из года в год. Речь идет о всевозможных вещах, которых в жилище становится все больше. Заготовки, сезонная обувь и одежда, инструменты либо иные предметы, которые нужны время от времени, занимают драгоценное место, но лишиться их «навеки» невозможно. В этом случае многие находят выход из создавшегося тупика — решают сделать шкаф на балконе своими руками. С задачей способен справиться тот, кто умеет обращаться со столярным инструментом: работа не отнимет много времени, зато избавит дом от дальнейшего захламления. Особенно это касается балконов, ведь в «ссылку» туда отправляют много всякого «добра».
Требования к месту и конструкции

Первое условие для комфортной «жизни» шкафа на балконе — его застекление, в противном случае мебель размокнет и станет привлекательным местом для плесени. Утепление и отопление тоже желательны. Ровный пол необходим, чтобы не допустить перекоса будущей конструкции.
Чтобы балконный шкаф стал удобным и эффективным местом для хранения, он обязан быть:
- очень вместительным, а значит, в узком помещении логично сделать его под потолок;
- функциональным — имеющим множество разных отделений, чтобы можно было спрятать в нем все предметы, имеющие разные размеры;
- сделан из влагостойкого материала, так как даже окна остекленного балкона нередко открывают для проветривания квартиры;
- симпатичным и аккуратным, чтобы не портить вид балкона, который уже давно не хочет выглядеть некрасивой свалкой забытых вещей.
Экономия пространства, и так небольшого, — еще одно требование, обязательное для шкафа, который должен находиться на относительно длинном, но узком балконе. Типичное вытянутое помещение позволяет только один рациональный вариант — установку мебели в его торцах. В этом случае самыми подходящими моделями будут встроенные шкафы — купе либо распашные конструкции.

Некоторые квартиры имеют в своем «распоряжении» балконы-оригиналы, имеющие не очень практичные углы. В этом случае хозяевам приходится проектировать необычную мебель — угловые шкафы, более требовательные к своим создателям.
Широкие и просторные лоджии дают возможность поместить мебель по длинной стене, но в этом случае ее делают не слишком глубокой (300-350 мм), так как более массивные шкафы будут скрадывать объем помещения, которое и так метражом похвастаться не в состоянии.
Пластиковый шкаф на балкон своими руками
Многие хозяева малогабаритных квартир рано или поздно сталкиваются с одной неприятной проблемой, масштабы которой увеличиваются из года в год. Речь идет о всевозможных вещах, которых в жилище становится все больше. Заготовки, сезонная обувь и одежда, инструменты либо иные предметы, которые нужны время от времени, занимают драгоценное место, но лишиться их «навеки» невозможно. В этом случае многие находят выход из создавшегося тупика — решают сделать шкаф на балконе своими руками.
С задачей способен справиться тот, кто умеет обращаться со столярным инструментом: работа не отнимет много времени, зато избавит дом от дальнейшего захламления. Особенно это касается балконов, ведь в «ссылку» туда отправляют много всякого «добра».
Условия для комфортной «жизни» шкафа на балконе
Первое условие для комфортной «жизни» шкафа на балконе — его застекление, в противном случае мебель размокнет и станет привлекательным местом для плесени. Утепление и отопление тоже желательны. Ровный пол необходим, чтобы не допустить перекоса будущей конструкции.
Параметры для эффективного использования балконного шкафа
Чтобы балконный шкаф стал удобным и эффективным местом для хранения, он обязан быть:
- Экономия пространства, и так небольшого, — еще одно требование, обязательное для шкафа, который должен находиться на относительно длинном, но узком балконе.
- Типичное вытянутое помещение позволяет только один рациональный вариант — установку мебели в его торцах.
- Самыми подходящими моделями будут встроенные шкафы — купе либо распашные конструкции.

Шкаф на неотапливаемый балкон. Как сделать шкаф на балкон (лоджию) своими руками: чертежи и схемы
Очередь мебели приходит после завершения отделки лоджии , и она часто приспосабллена под хранение сезонных вещей, типа верхней одежды, редко используемых приспособлений, заготовок и инструментов, поэтому его делают со множеством полок и с удобной глубиной порядка шестидесяти сантиметров.
Обычно, для изготовления выбирают ДСП или металлическую основу. Для дверей используют дерево, ДСП, пластик.
Места хранения бывают встроенные, угловые и корпусные.
Обычно корпусные делают на неотапливаемых балконах, чтобы сделать зазор между стенами лоджии и мебельной конструкции для вентиляции воздуха.
Если балкон не отапливается, то ставить шкаф вплотную к стене не стоит, потому что может появиться конденсат или роса, и появится плесень.
Также по дверной системе они различаются на:
- Распашную,
- Раздвижную (купе),
- Систему жалюзи.
На узких балконах целесообразно использовать распашную систему или жалюзи. Это обеспечит полноценный доступ во внутренности шкафа. И поместить на полку широкий предмет без преград.

Распашная система открытия
Система жалюзи представлена на фото.

Вариант замены дверей
На распашные двери могут устанавливаться магниты, для автоматического закрытия дверок или доводчики.
В бюджетных вариантах для закрытия дверц используют обычные шпингалеты.
Систему купе используют на широких балконах, либо, если шкаф поровну разделен на две независимые области.

Вариант раздвижных дверей на балконе
Часто бывает, что нижняя ширина балкона уже (вследствие отделки и утепления), чем верх. В таком случае делают комбинацию из двух шкафов: до окна и выше подоконника.

Вариант мебели разной ширины
Общая инструкция по изготовлению системы хранения с дверями купе проста и описана в этой статье :
1. Делаете замеры и чертеж.
2. Покупаете материал.
3. Если шкаф встроенный, то начинаете устанавливать бруски (40*40 мм) по краям, прикручивая к стене так, чтобы их не вырвало.
Бруски для работ
4. Все открытые поверхности, кроме лицевой, закрываются фанерой или ДСП.
5. Устанавливаются полки на уголки.
6. Навешиваются двери на обычные петли или вставляются в направляющие.
Обязательно, все горизонтальные и вертикальные поверхности вымеряются уровнем.
Если вы делаете корпусный шкаф, то при сборке каркаса, необходимо замерить диагонали конструкции, так вы избежите искривления дверей и полок.
При его установке на балкон нужно отступить полтора сантиметра от стен, чтобы воздух спокойно вентилировался.

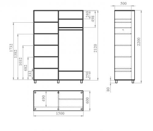
Примерные схемы и чертежи представлены на фото.
Схема внешнего и внутреннего наполнения шкафа с размерами.

Пример чертежа узкой мебельной сборки.

Стандартная конструкция мебели на балкон
Схема корпусного шкафа на ножках.

Размеры на чертеже
Вид готового шкафа с чертежом и вариациями наполнения.
