Теплица из профильной трубы 2022 своими руками. Определяемся с материалом
- Теплица из профильной трубы 2022 своими руками. Определяемся с материалом
- Каркас теплицы из профильной трубы. С чего начать?
- Чертежи теплиц из профильной трубы с размерами. Теплица своими руками из профильной трубы
- Двускатная теплица из профильной трубы своими руками. Теплица из профильной трубы 20х20. Каркас теплицы из профильной трубы – чертежи и расчеты
- Теплица из профильной трубы 20х20 своими руками. Как построить теплицу своими руками, какие виды теплиц и парников бывают.
- Чертеж теплицы по митлайдеру из профильной трубы. Чертежи теплиц по митлайдеру из профильной трубы с размерами
- Расчет теплицы из профильной трубы. Расчет материала для теплиц
- Теплица из профильной трубы, чертеж. Составление чертежа для теплицы
- Теплица из профильной трубы без сварки. Сборка труб на деревянные вставки
Теплица из профильной трубы 2022 своими руками. Определяемся с материалом
Так как каркас теплицы решено собирать из профильной трубы, то в первую очередь надо понимать, что сооружение должно быть прочным. Поэтому в качестве основных несущих элементов используют профиль сечением 40х20 или 40х40 мм с толщиною стенки 2 мм. Крепежные элементы – продольные профили, основная работа которых удерживать несущие конструкции в одном положении, можно изготавливать из профильной трубы меньшего сечения или такого же, с толщиною стенки 1,0-1,5 мм.
Варьируя параметрами трубы, можно неплохо сэкономить, особенно, если конструкция теплицы большая. Но учитывается фактор снеговой нагрузки. Если данный параметр в регионе строительства теплицы значительный, то не стоит экономить на материале.
О длине трубы, равной 6,05 м. Если точно провести расчеты строения, для этого нужны чертежи, набросанные своими руками, то можно снизить объем отходов профильного металла. Особенно это важно, когда сооружается теплица арочной формы. Можно рассчитать конструкцию таким образом, чтобы из одной трубы сделать цельную ферму без подрезов и добавлений. Важный момент, потому что от него зависят размеры теплицы, именно ширина и высота. Здесь соответствие обратно пропорциональное: увеличивается высота – уменьшается ширина, и наоборот.

Соответствие ширины и высоты теплицы арочного типа
Следующий момент, касающийся листов поликарбоната, точнее, их длины, равной 6 или 12 м. Арка каркаса – полукруг, соответственно длина должна равняться длине поликарбонатных листов или быть чуть меньше. Увеличивать не стоит, потому что из цельного листа вырезать кусок – значит, испортить лист.
К примеру, теплица высотою 2 м. Длина арки – половина длины окружности, у которой радиус равен 2 м. Рассчитываем длину окружности: L=2πR=2х3,14х2=12,56 м. Делим полученный размер пополам, получаем – 6,28 м. Одного листа длиною 6 м не хватит, чтобы закрыть собой проем. Остается зазор, равный 28 см. Его придется закрывать дополнительным куском, что плохо в плане уменьшения отходов, плюс – появляется стык, которого лучше в тепличной конструкции избегать.
Поэтому ведем расчеты дальше, к примеру, высота – 1,9 м. Проводим те же выкладки: 1,9х3,14=5,966 м, почти 6 м с небольшим подрезом и минимумом отходов. Ширина такой теплицы – 3,8 м, поместиться 4 полноценные грядки.
Касаемо длины теплицы, то здесь ограничений нет. Все зависит от участка под постройку. Количество ферм, именно данный показатель определяет длину, выбирается из расчета 1 м между арками. Размер определяется шириною поликарбонатного листа, равного 2,1 м. Под него надо установить три фермы: две по краям, одну посередине. Соседние листы должны стыковаться внахлест на арке из профильной трубы. Размер нахлеста – по 5-10 см с каждого листа. То есть, ширина листа – 1 м между арками (между тремя – 2 м), плюс нахлест.

Каркас теплицы из профильной трубы. С чего начать?
Перед изготовлением каркаса своими руками, нужно принять решение относительно внешнего вида будущей теплицы. Чаще всего используются конструкции «арка» или «домик».
Последний вид не имеет особенного преимущества, просто его чаше всего и сегодня используют по привычке, так как ранее для покрытия теплицы использовали стекло, которым арочное строение накрыть было бы сложно.
А инновационный и эластичный материал – поликарбонат дает возможность перекрыть теплицы любого вида.
Для основных рам каркаса будущей теплицы, рекомендуется взять трубу размера 4х2 см. Для горизонтальных соединительных элементов можно использовать профиль размера 2х2 см.
Если хотите качественно изготовить каркас такой конструкции, как теплица из профильной трубы своими руками – чертежи должны быть сделаны обязательно. Такой ход позволит правильно выбрать размеры и тем самым исключить большие потери металла во время нарезки деталей.
Изготовление металлопрофильного каркаса своими руками не самое дешевое удовольствие, поэтому расчет рекомендуется проводить таким образом, чтобы на изготовление рамы пошло не более одной стандартной трубы размером 6,05м.
Оптимальный размер при двускатного строения рассчитывается следующим образом. Если высота принимается за 1,7 м, то на две рамы потребуется 3,4 м трубы, после чего остается еще 2, 65 м профиля.
При учете ската крыши ширина одной рамки должна составить 2,25 м. Главное следить, чтобы после перекрытия каркаса осталось по 10 см материала с каждой стороны на боковые свесы.
При желании можно начать изготовление теплицы используя полукруглые рамы. Тут размеры конструкции будут большими в сравнении с двухскатной, что повышает общюю полезную внутреннюю площадь.
Видео
Но стоит учесть, что самостоятельное изготовление арочной теплицы из квадратной трубы предполагает использование такого аппарата как трубогиб. Благодаря ему получится качественно согнуть профиль, так как вам нужно.Стоит задуматься, ведь ценовая политика такого приспособления очень высокая, а изготовление трубогиба используя подручные средства под силу не каждому.
Существует несколько способов гибки профиля, без использования специального аппарата, но такие методы не дадут идеального сгиба и могут привести к деформации дорогостоящего материала.
Чертежи теплиц из профильной трубы с размерами. Теплица своими руками из профильной трубы
Теплица на приусадебном участке — это практично и с пользой, урожай радует с ранней весны до поздней осени. Считается, что каркас из профильной трубы –наиболее оптимальный вариант для изготовления подобных конструкций. Надежно, безопасно, функционально, при правильной эксплуатации и уходе прослужит долгий срок.
В статье поделимся секретами, как самому сделать теплицу из профильной трубы: спроектировать сооружение, определится с размерами. Приведем пошаговую инструкцию, как построить домик для овощей своими руками.
Invalid Displayed Gallery
Профильная труба для постройки теплицы – все «за и против»
Профильная труба имеет в сечении квадрат или прямоугольник, по способу изготовления может быть:
- горяче- и холоднодеформированные;
- электросварные, электросварные холоднодеформированные.
Форма, размер, характеристики профтруб регламентируются частью 8639-82 и 8645-68 ГОСТ. Для изготовления профильных труб используют разные металлы, наиболее востребованы в частном и коммерческом строительстве теплиц изделия из стали с антикоррозийным защитным покрытием, влагонепроницаемые. Прочность материала обеспечивают 4 ребра жесткости, на которые и ложится основная нагрузка от всей конструкции теплицы.
Физико-механические характеристики профильных труб позволяют изготовить качественный, надежный каркас. Чтобы продлить срок эксплуатации, сохранить эстетику и целостность теплицы, после монтажа сварной конструкции ее необходимо:
- тщательно зачистить жесткой щеткой от окалины;
- обработать абразивной шкуркой, чтобы удалить даже невидимые признаки коррозии;
- промыть растворителем;
- загрунтовать;
- покрасить.
Ржавчину можно удалить, обработав очаги поражения уксусной эссенцией. Выполнять работы следует в резиновых перчатках и респираторе.
Профильная труба по виду напоминает деревянный брус с прямой стороной. Форма удобна для крепления листового материала: поликарбоната, стекла, пленочно-рамочных элементов — это значительно облегчает изготовление теплицы из профильной трубы своими руками.

Двускатная теплица из профильной трубы своими руками. Теплица из профильной трубы 20х20. Каркас теплицы из профильной трубы – чертежи и расчеты
Работа в теплице чаще протекает по принципу: я разогнулся посмотреть, не разогнулась ли она, чтоб посмотреть не разогнулся ли я. Поэтому важно для облегчения и максимального комфорта труда правильно рассчитать высоту сооружения. Оптимально, если человек встанет в полный рост + 300-400 мм.

Подробный чертеж арочной постройки
Средняя эргономичная высота арочной теплицы – 1,9-2,4 метра – это по сути радиус сгиба поликарбонатного листа. Вспоминаем формулу длины окружности: L= π*D, где π – 3,14, D – диаметр = 2 радиусам.
Допустим, высота теплицы из профтрубы – 2 м, тогда L (длина окружности) = 3,14*4 = 12,56 м. Нам требуется половина этой длины — 12,56:2 = 6,28 м. Но это не рационально при использовании обшивки из поликарбоната, получается, что одного листа длина которого 6,0 м не хватит, придется дотачивать небольшую полосу, то же со стандартной длиной профтрубы. Чтобы избежать лишних затрат, необходимо уменьшить высоту теплицы, рационально если, Н=1,85-1,9 м, при ширине постройки 3,7-3,8 м.

Схема теплицы из профильной трубы, своими руками такую конструкцию можно изготовить практически без отходов материала
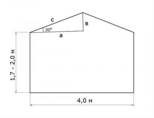
Для двускатной кровли расчет высоты зависит от уклона крыши, для разных регионов, в зависимости от ветровой и снеговой нагрузок, обычно укос составляет 30-45о. Удобная высота прямой стены – 1,7-2 метра до нижнего края стропила. На примере просчитаем общую высоту теплицы из профильной трубы до конька.
Допустим, уклон двускатной крыши составляет 30о, ширина теплицы 4 м. По теореме Пифагора: с2=а2+в2, где с – гипотенуза (длина одного ската), а – катет (перпендикуляр от края каркаса из профтрубы до середины), в – катет (высота от конька до прямой стены по перпендикуляру). В нашем случае: а = 4:2 = 2 метра. Из геометрии: катет, лежащий напротив угла в 30о, равен половине гипотенузы. Составляем уравнение:
в=х, следовательно,
с=2х, отсюда (2х)2= 22+х2, 4х2= 4+х2, 3х2= 4, х2 = 4:3, х = √1,33(3) = 1,154 м – это длина гипотенузы, значит, катет в = 0,58 м, отсюда общая высота теплицы из профтрубы: 2+0,58=2,58 м.

Изготовление теплицы из профильной трубы, чертеж стандартной двускатной постройки
Отметим важный нюанс, скат крыши должен на 100-300 мм быть длиннее чем сама теплица, поэтому его длина = 1,154+0,1(0,3) = 1,25-1,45 м – это необходимо учесть при раскрое профильной трубы для стропильной системы теплицы.
Теплица из профильной трубы 20х20 своими руками. Как построить теплицу своими руками, какие виды теплиц и парников бывают.
Перед тем, как начать создавать чертежи теплицы из поликарбоната, своими руками, используя профильную трубу, необходимо определится с тем, какую же именно форму теплицы из поликарбоната, необходимо выбрать. Ведь таких теплиц есть огромное множество, и каждая по своему уникальна. Есть наземные, конструкции есть с углублением, иногда создают теплицу с фундаментом иногда без него. Но есть несколько основных видов:
- Арочной формы – такие конструкции, наверняка самые популярные, по всей стране, крыша в виде арке, позволяет снегу ненадолго залеживаться на крыше, также отличается эта конструкция простотой возведения. В ней хорошо выращивать высокорослые овощи.
Теплица из поликарбоната, арочной конструкции
- С двускатной структурой. В таком исполнении, конструкции очень распространены, с виду похожи на сарай, чтобы соорудить такую теплицу необходимо будет потратить больше усилий, поскольку в этом случае нужна более мощная, и надежная рама.

- Односкатные теплицы, чаще всего такие конструкции возводят рядом с другими хозяйственными постройками, или к дому, даче. Таким образом вы существенно экономите жизненно важное пространство, если ваш участок ограничен.
- В виде шатра, такого рода строения, очень редки, поскольку сложны в возведении, но они имеют ряд преимуществ, таких как: противостояние любым природным катаклизмам, равномерное распределение солнечного света по всей территории.
Теплица из поликарбоната в виде шатра
- Теплица из поликарбоната в виде хлебницы. У такого строения откидывается крыша, как у обычной хлебницы, отсюда и название. Чаще всего, это совсем небольшие теплички, а открывающаяся крыша отличный вариант проветривания помещений когда в ней стоит жара.
Чертеж теплицы по митлайдеру из профильной трубы. Чертежи теплиц по митлайдеру из профильной трубы с размерами
Теплица по митлайдеру: схема, чертежи и расчеты, по митлайдеровской отзывы, своими руками поликарбонат
Теплица по Митлайдеру была создана американским любителем, настоящим сельскохозяйственным специалистом. Джейкоб Митлайдер провел много опытов с тепличными культурами, добиваясь получения максимально высокого и качественного урожая.
По результатам своих наблюдений он постепенно усовершенствовал технологию создания тепличной конструкции. Сейчас сооружения, называемые «американкой» популярны во многих странах мира, а умельцы их собирают самостоятельно по чертежам.
Плюсы и минусы теплицы по Митлайдеру
Многие задаются вопросом, зачем делать такие сложные теплицы да еще с длинной щелью. Ведь конструкция предназначена для максимального сохранения тепла. Однако именно в этом митлайдеровская теплица имеет свое преимущество.
Проблемой создания в любой теплице оптимального микроклимата является плохая вентиляция. Теплый воздух вместе с влагой скапливается под потолком. Контактируя с холодными стенками тепличной обшивки, образуется конденсат.
Физическое явление опасно для всех растений, но особенно сильно страдают томаты. Естественное проветривание через форточки и двери положительных результатов мало дает. Если взять парники длиной больше 6 м, то здесь процесс происходит еще сложнее.
Мало помогают даже дополнительные форточки. Воздух вентилируется неравномерно.
У фермерской теплицы по Митлайдеру проблема с вентиляцией полностью решена. В этом ее главный плюс. Конструкция оснащена вверху фрамугой. Поступающий через нее свежий воздух смешивается с теплыми массами и опускается на пол.
Получается равномерная вентиляция всех участков. Одинаковая поддерживается влажность и температура. Создающийся микроклимат в конструкции Митлайдера благоприятно влияет на развитие растений.
Кроме фрамуги, никаких форточек, вытяжек, вентиляторов ставить не нужно.
Если говорить о недостатках, то тепличные конструкции Митлайдера обходятся хозяину дорого. Лишние расходы идут на создание усиленного каркаса. К минусам причисляют сложность устройства.
Чтобы создать каркас, потребуется опыт. Вдобавок конструкция теплицы по Митлайдеру предусматривает установку фрамуги.
Для вентиляции щель создает большой плюс, но через нее ветром заносятся возбудители опасных заболеваний, например, фитофтора.
Виды теплиц по Митлайдеру
Популярными считаются два вида тепличных конструкций Митлайдера:
- Постройка с двускатной крышей выполнена домиком. Конструкция проще в возведении. На крыше не задерживаются снежные накопления.
- Сложной считается арочная теплица по Митлайдеру, так как для ее каркаса требуется сгибать трубы. Однако обтекаемая крыша лучше противостоит ветровым нагрузкам.
Если при самостоятельном изготовлении каркаса нет возможности найти доступ к трубогибному станку, оптимально остановиться на конструкции с двускатной крышей.
Материалы и инструменты
Хорошим материалом для каркаса считаются квадратные трубы со сторонами стенок 50х50 мм. Можно использовать брус. Основание собирают из элементов сечением 100х100 мм. Для стен и крыши используют балки сечением 50х75 мм. Стальной каркас тепличной конструкции Митлайдера обшивают листами поликарбонана. Деревянный скелет нередко обтягивают пленкой.
Важно! Металлический каркас чаще востребован при возведении арочной конструкции. Двускатные домики удобнее собирать из бруса.
Металлические теплицы из поликарбоната по Митлайдеру устанавливают на фундамент из бетонных блоков или заливают ленточное основание. Двускатную деревянную конструкцию иногда ставят на раму из бруса.
Набор нужных инструментов зависит от того, какой материал выбран для строительства. Если конструкция Митлайдера будет из бруса, то потребуется пила, циркулярный станок, рубанок, шуруповерт, шлифмашина. Для сборки стального каркаса в первую очередь понадобится сварочный аппарат и болгарка. Дополнительно нужен разметочный инструмент, стремянка.
Схема теплицы по Митлайдеру с размерами
Сложность конструкции не позволяет допускать ошибки в строительстве. Для теплицы из профтрубы по Митлайдеру чертеж лучше найти готовый, составленный специалистами. Аналогичное требование касается деревянной конструкции. Если есть необходимость подгонять «американку» под свои размеры, то соотношение пропорций ширины и длины берут 1:2.
Проще возводить деревянную теплицу Митлайдера домиком, где получится даже самостоятельно сделать расчеты, если имеется опыт. Крышу проектируют так, чтобы с северной стороны скат был на 400 мм выше южного. Получившийся в результате перепадов промежуток оснащают форточками.
По стандарту конструкция Митлайдера имеет ширину 6 м, а длину в два раза больше – 12 м. Расстояние от пола до потолка в самой высокой точке – 2,7 м.
Расчет теплицы из профильной трубы. Расчет материала для теплиц
В первую очередь расчет понадобится для того, чтобы точно подсчитать необходимое количество материала для строительства. Этот процесс включает подсчет материалов для возведения фундамента, установки опор и монтажа покрытия.
Подсчет напрямую зависит от того, какие материалы вы планируете использовать для строительства. К примеру, для возведения опор часто используют деревянные брусья, но более практичным и финансово выгодным материалом считается профильная труба. Она недорогая, но достаточно прочная и долговечная. Кроме того, материал самой трубы практически не поддается воздействию грибков и плесени, поэтому каркасу постройки понадобится минимум ухода.
Также расчет должен включать кровельный материал: пленку, стекло или поликарбонат. Мы рассмотрим расчет последнего вида кровельного материала, так как именно поликарбонат считается самым надежным и современным вариантом тепличного покрытия.
Теплица из профильной трубы
Профильная труба – это изделие из металла квадратного, прямоугольного или овального сечения. Самыми недорогими считаются трубы из необработанного металла, но для влажной среды больше подходит оцинкованная или окрашенная труба. Однако, если вы планируете соединять элементы конструкции методом сварки, лучше покупать трубы без покрытия, так как под воздействие тепла сварки защитный слой в любом случае разрушится, и трубу придется заново окрашивать.
Примечание: Как правило, для строительства конструкций закрытого грунта используются трубы квадратного или прямоугольного сечения, размером 20 х 20 или 20 х 40 мм.
Если вы будете соединять опоры болтами или другой крепежной фурнитурой, можете смело покупать оцинкованную трубу. Однако преимущество следует отдавать максимально качественным изделиям, оцинковка у которых не потрескается со временем. При повреждении защитного слоя все свойства таких оцинкованных труб теряются, и каркас начнет покрываться ржавчиной во влажной тепличной среде.
Рисунок 1. Чертежи каркаса двухскатной и арочной теплицы из профильной трубы
Перед началом расчета теплицы из профильной трубы следует определиться с типом конструкции. Традиционным вариантом считается «домик» — постройка с двухскатной крышей, но более современными считаются арочные и купольные конструкции. Их преимущество в том, что на крыше не скапливается снег, который может повредить покрытие, а внутри остается достаточно пространства для ухода за растениями (рисунок 1).
Примечание: Вне зависимости от выбранного типа конструкции, высоту здания лучше делать сразу немного больше высоты человеческого роста. Более низкая конструкция, конечно, сэкономит вам немного денег, но работать в полусогнутом состоянии в ней будет не слишком удобно.
Приведем примеры расчета для самых популярных типов теплиц – двухскатной и арочной:
- Арочная: обычно имеет в высоту порядка 1900-2400 мм. Исходя из этого можно сделать вывод, что арка – это половина полного круга. Соответственно, нам нужно рассчитать длину окружности по формуле L=п*D. Число п (Пи) – это постоянная величина, которая равняется 3,14, а D (диаметр) равен двум радиусам. В нашем случае высота конструкции и является радиусом. Предположим, что высота здания будет составлять два метра. Соответственно, длина окружности L будет равна 3,14*4, или 12,56 м. Этот показатель нужно поделить пополам. Получится показатель 6,28 м, который и будет соответствовать длине изогнутой арки. В данном случае есть только одна проблема: стандартная длина профильной трубы составляет 6 метров, соответственно к ней придется каким-то образом прикрепить небольшой кусочек. Чтобы упростить себе задачу, лучше делать высоту порядка 1850-1900 мм. В таком случае длина одной изогнутой арки будет составлять как раз 6 метров.
- Двухскатная: более сложная в расчетах. В первую очередь необходимо учесть угол наклона крыши, который колеблется в зависимости от снеговой и ветровой нагрузки. Стандартным считается показатель 30-45 градусов, а оптимальная высота постройки с двухскатной крышей – 170-200 см. Чтобы узнать высоту крыши, нужно воспользоваться теоремой Пифагора, согласно которой квадрат гипотенузы равен сумме квадратов катетов. Предположим, что ширина нашей теплицы будет 2 метра, а угол наклона крыши – 30 градусов. В данном случае гипотенузой будет считаться длина ската, а катеты – это показатель ширины постройки. Пользуясь все той же теоремой Пифагора, узнаем, что катет, лежащий напротив угла в 30 градусов, должен равняться половине гипотенузы. Составив квадратное уравнение, получится, что длина гипотенузы равна 1,154 м, соответственно длина катета – 0,58 м. Приняв в расчет, что высота стенки равна двум метрам, можно сделать вывод, что высота этой же конструкции по коньку равняется 2,58 метра.
Теплица из профильной трубы, чертеж. Составление чертежа для теплицы
В процессе планирования хорошим подспорьем станет чертеж будущего объекта. С его помощью можно не только спроектировать общий вид и форму возводимой теплицы, но и получить множество преимуществ:

Чертеж теплицы из профильной трубы
- предусмотреть размеры всей теплицы и каждого отдельного составляющего элемента;
- рассчитать количество необходимых материалов;
- распределить все строительные мероприятия на этапы;
- подготовить инструменты, необходимые при проведении разных рабочих процессов.
Необязательно, чтобы чертежи теплиц отвечали всем требованиям конструкторской документации. Это могут быть элементарные эскизы (чертежи, выполненные от руки без точного масштаба, но с соблюдением пропорций).
Главным требованием к ним должно стать обязательное отображение следующих нюансов:

Схема Арочной профильной теплицы
- периметр основания – длина и ширина строения;
- стойки – их количество, высота, расстояние между ними;
- поперечины – обвязка между вертикальными стойками в их верхней части;
- крыша – форма сегментов (треугольная, арочная), их количество, крепление между собой в верхней части и на скатах;
- подвижные элементы – двери, окна их размер и место установки.
При составлении чертежа важно знать стандартную длину профильной трубы, составляющая 3, 4 или 6 метров. А также встречается типоразмер 12-метровой длины, но с доставкой такого изделия могут возникнуть проблемы. Таким образом, во избежание большого количества обрезков материала, рекомендуется планировать высоту стоек 2 м, расстояние между ними 1 м, а длину и ширину теплицы из трубы выбирать исходя из предлагаемых размеров.
Теплица из профильной трубы без сварки. Сборка труб на деревянные вставки
Сначала нужно нарезать профильную трубу для изготовления рамы. Для калитки понадобится 5 заготовок. Из них 4 формируют раму, и 1 используется как усиливающая жесткость перекладина. Для ворот перекладин понадобится больше.












