Теплицы из профильной трубы. Составление чертежа для теплицы
- Теплицы из профильной трубы. Составление чертежа для теплицы
- Теплица из профильной трубы, чертеж. Особенности материалов
- Двускатная теплица из профильной трубы своими руками. Теплица из профильной трубы 20х20. Каркас теплицы из профильной трубы – чертежи и расчеты
- Теплица из профильной трубы без сварки. Сборка труб на деревянные вставки
- Каркас теплицы из профильной трубы чертежи. Особенности поликарбонатных теплиц
- Теплица из профильной трубы 40*20 своими руками. Выбор профиля и формы конструкции
Теплицы из профильной трубы. Составление чертежа для теплицы
В процессе планирования хорошим подспорьем станет чертеж будущего объекта. С его помощью можно не только спроектировать общий вид и форму возводимой теплицы, но и получить множество преимуществ:

Чертеж теплицы из профильной трубы
- предусмотреть размеры всей теплицы и каждого отдельного составляющего элемента;
- рассчитать количество необходимых материалов;
- распределить все строительные мероприятия на этапы;
- подготовить инструменты, необходимые при проведении разных рабочих процессов.
Необязательно, чтобы чертежи теплиц отвечали всем требованиям конструкторской документации. Это могут быть элементарные эскизы (чертежи, выполненные от руки без точного масштаба, но с соблюдением пропорций).
Главным требованием к ним должно стать обязательное отображение следующих нюансов:

Схема Арочной профильной теплицы
- периметр основания – длина и ширина строения;
- стойки – их количество, высота, расстояние между ними;
- поперечины – обвязка между вертикальными стойками в их верхней части;
- крыша – форма сегментов (треугольная, арочная), их количество, крепление между собой в верхней части и на скатах;
- подвижные элементы – двери, окна их размер и место установки.
При составлении чертежа важно знать стандартную длину профильной трубы, составляющая 3, 4 или 6 метров. А также встречается типоразмер 12-метровой длины, но с доставкой такого изделия могут возникнуть проблемы. Таким образом, во избежание большого количества обрезков материала, рекомендуется планировать высоту стоек 2 м, расстояние между ними 1 м, а длину и ширину теплицы из трубы выбирать исходя из предлагаемых размеров.
Теплица из профильной трубы, чертеж. Особенности материалов
Из чего сделать теплицу? Конечно из проверенных и давно зарекомендовавших себя на рынке материалов. Это профильная труба для каркаса и поликарбонат для покрытия. Обратим внимание на их особенности при производстве.
Теплицу можно сделать методом сварки, или используя болтовые соединения. Это зависит от выбора профильной трубы, оцинкованной или труб без покрытия.
С оцинкованным покрытием
Такой материал хорош тем, что не подвержен ржавчине, не боится резких перепадов температур, не требует дополнительной обработки. Но также он имеет существенные недостатки:
1) Не годится для сварки в бытовых условиях, так как на швах оцинковка быстро выгорает, отчего металл ржавеет. Поэтому для сборки используются болтовые соединения. Но они не дают такой крепости и надёжности, как сварные конструкции.
2) Оцинкованные трубы нежелательно гнуть, это нарушает целостность защитного покрытия. А как быть, если теплица требуется арочная? Поэтому из них можно сделать только скатные конструкции.
3) По цене они дороже чем трубы без покрытия, что нецелесообразно для семейного бюджета.

Трубы без покрытия
Это недорогое и податливое сырьё, в отличие от предыдущего. Их можно с уверенностью сваривать, гнуть, придавая любой радиус изгиба.
Единственное в чём они нуждаются, это дополнительная обработка от коррозии. Для этого готовый каркас зачищается от окалины и прочих шероховатостей, затем обезжиривается, грунтуется, окрашивается. На помощь по окрашиванию могут прийти дети или жена, и тогда рабочий семейный процесс порадует всех участников.

Выбор поликарбоната
Покупая поликарбонат, обращайте внимание на наличие защитного слоя от УФ-излучения. Пытаясь сэкономить, Вы можете только навредить себе. Дешёвый материал без защитного слоя развалится уже через 1-2 года. А зачем что-то переделывать, тратиться, когда можно сделать один раз на много лет вперёд, и наслаждаться каждый сезон своими овощами.

Источник: https://doma-na-veka.ru/novosti/izgotovlenie-teplic-iz-profilnoy-truby-fundament-dlya-teplicy
Двускатная теплица из профильной трубы своими руками. Теплица из профильной трубы 20х20. Каркас теплицы из профильной трубы – чертежи и расчеты
Работа в теплице чаще протекает по принципу: я разогнулся посмотреть, не разогнулась ли она, чтоб посмотреть не разогнулся ли я. Поэтому важно для облегчения и максимального комфорта труда правильно рассчитать высоту сооружения. Оптимально, если человек встанет в полный рост + 300-400 мм.

Подробный чертеж арочной постройки
Средняя эргономичная высота арочной теплицы – 1,9-2,4 метра – это по сути радиус сгиба поликарбонатного листа. Вспоминаем формулу длины окружности: L= π*D, где π – 3,14, D – диаметр = 2 радиусам.
Допустим, высота теплицы из профтрубы – 2 м, тогда L (длина окружности) = 3,14*4 = 12,56 м. Нам требуется половина этой длины — 12,56:2 = 6,28 м. Но это не рационально при использовании обшивки из поликарбоната, получается, что одного листа длина которого 6,0 м не хватит, придется дотачивать небольшую полосу, то же со стандартной длиной профтрубы. Чтобы избежать лишних затрат, необходимо уменьшить высоту теплицы, рационально если, Н=1,85-1,9 м, при ширине постройки 3,7-3,8 м.

Схема теплицы из профильной трубы, своими руками такую конструкцию можно изготовить практически без отходов материала
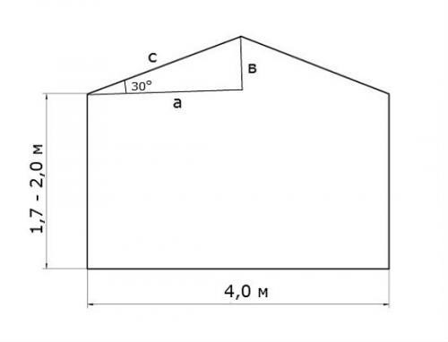
Для двускатной кровли расчет высоты зависит от уклона крыши, для разных регионов, в зависимости от ветровой и снеговой нагрузок, обычно укос составляет 30-45о. Удобная высота прямой стены – 1,7-2 метра до нижнего края стропила. На примере просчитаем общую высоту теплицы из профильной трубы до конька.
Допустим, уклон двускатной крыши составляет 30о, ширина теплицы 4 м. По теореме Пифагора: с2=а2+в2, где с – гипотенуза (длина одного ската), а – катет (перпендикуляр от края каркаса из профтрубы до середины), в – катет (высота от конька до прямой стены по перпендикуляру). В нашем случае: а = 4:2 = 2 метра. Из геометрии: катет, лежащий напротив угла в 30о, равен половине гипотенузы. Составляем уравнение:
в=х, следовательно,
с=2х, отсюда (2х)2= 22+х2, 4х2= 4+х2, 3х2= 4, х2 = 4:3, х = √1,33(3) = 1,154 м – это длина гипотенузы, значит, катет в = 0,58 м, отсюда общая высота теплицы из профтрубы: 2+0,58=2,58 м.

Изготовление теплицы из профильной трубы, чертеж стандартной двускатной постройки
Отметим важный нюанс, скат крыши должен на 100-300 мм быть длиннее чем сама теплица, поэтому его длина = 1,154+0,1(0,3) = 1,25-1,45 м – это необходимо учесть при раскрое профильной трубы для стропильной системы теплицы.
Теплица из профильной трубы без сварки. Сборка труб на деревянные вставки
Сначала нужно нарезать профильную трубу для изготовления рамы. Для калитки понадобится 5 заготовок. Из них 4 формируют раму, и 1 используется как усиливающая жесткость перекладина. Для ворот перекладин понадобится больше.













Каркас теплицы из профильной трубы чертежи. Особенности поликарбонатных теплиц
Классический материал для теплиц – стекло и полиэтиленовая плёнка.
Но у поликарбоната перед ними есть преимущества:
Материал лучше переносит механические воздействия, чем аналоги. Его может побить градом, но это не приведёт к полному разрушению. Этот материал используется в качестве кровельного и легко справляется с массой выпавшего снега, тогда как конкурентам это недоступно.
Важно подобрать правильную толщину материала под регион, так как количество осадков может различаться. Соответствующим должен быть и каркас. Всё вместе это должно держать огромный вес снега. 17 см мокрого снега на площади в 30 квадратов будут весить 17 тонн.
Поликарбонат частично препятствует проникновению через него ультрафиолета. Благодаря этому чувствительные к УФ растения будут надёжно защищены.
Материал неплохо держит тепло, так как является сотовым по структуре. Внутри ячеек находится воздух, препятствующий теплообмену. Разброс рабочих температур составляет от -50 до +60 С.
Поликарбонат эластичный, что позволяет цельным листом перекрывать конструкции арочного типа. Его легко сверлить и резать, что существенно облегчает рабочий процесс.
Сотовый поликарбонат, пропуская через себя солнечный свет, рассевает его, что уменьшает вероятность получения растениями солнечных ожогов.
Материал не самый дешёвый, однако его цена ниже, чем у стекла.
Стандартный лист поликарбоната имеет размер 210*600 см. Это 8 м2. Благодаря этому теплицу можно быстро перекрыть всего несколькими листами.
Источник: https://doma-na-veka.ru/novosti/kak-sdelat-karkas-teplicy-iz-prof-truby-s-chego-nachat
Теплица из профильной трубы 40*20 своими руками. Выбор профиля и формы конструкции
Если, взвесив все плюсы и минусы, вы приняли решение об изготовлении теплицы из профтрубы, то следующим шагом вам понадобится правильно выбрать профиль и определиться с непосредственной формой будущей конструкции.
Так, прямоугольная и квадратная варианты профильной трубы обычно изготавливаются с применением:
- горячей и холодной деформации;
- электрической сварки;
- электрической сварки вкупе с холодной деформацией.
Если вы хотите соорудить аккуратную теплицу арочной формы, то вам понадобятся трубы с сечением 40 на 20 мм (примерно 10 штук). Их средняя длина будет составлять 5,8 м. Есть два решения: можно сразу же заказать нарезку этих деталей до требуемых размеров либо купить простые варианты в 6 м. Что касается перемычек, то они должны быть металлическими 20х20 мм (их длина должна составлять около 67 см).
Что касается оцинкованной профтрубы – она должна иметь покрытие в виде специального слоя как на внутренней, так и на наружной поверхности. Определить высококачественный материал довольно просто – он должен быть по максимуму легким. Изготовленная из него каркасная основа легко перемещается с одного места на другое. Ее также можно перевезти на машине. Поскольку в этих вариантах присутствует хорошее защитное покрытие, то коррозии они практически не подвержены.
Если вы хотите соорудить теплицу, отличающуюся повышенной механической устойчивостью, то следует выбирать профильную трубу, имеющую дополнительное усиление. Подобные материалы без каких-либо проблем переносят давление до 90 кг на 1 кв. м. В соответствии с положениями ГОСТа, такие конструкции способны служить не менее 20–30 лет. Даже в том случае, если слой оцинковки в каком-то месте согнется, и на нем образуются повреждения/вмятины, то покрытие все равно будет оставаться целым и никак не пострадает.
Чтобы подготовить каркасное основание из простой незащищенной трубы, обычно применяют сварку. Оцинкованные детали связывают при помощи болтов, специальными стыковочными элементами либо уголками. Применять детали из металла большого диаметра – не самое практичное решение, поскольку они излишне тяжелы и совершенно неудобны в работах, о чем говорят многие специалисты и опытные мастера.
Форма конструкции может быть любой – этим и хороша профтруба. Из нее можно соорудить конструкцию практически любой модификации. Самыми популярными по праву признаны шатровые варианты с двухскатной крышей и арочные теплицы разных размеров. Конечно, можно соорудить треугольную или любую другую конструкцию, но такие экземпляры встречаются реже.
Источник: https://doma-na-veka.ru/novosti/izgotovlenie-teplic-iz-profilnoy-truby-fundament-dlya-teplicy