Как выбрать универсальные дверные петли. Петля дверная универсальная — виды изделий и рекомендации по их монтажу
Как выбрать универсальные дверные петли. Петля дверная универсальная — виды изделий и рекомендации по их монтажу
Петля дверная универсальная — популярный вариант для крепления входных и межкомнатных дверей. В обзоре мы рассмотрим основные варианты изделий, после чего разберемся с процессом монтажа, который не отличается сложностью и может быть произведен своими силами.
Для работы используется простейший инструмент, который есть в каждом доме, а если его и не окажется, то на приобретение вы потратите минимальные средства.
Первый вариант отличается тем, что в нем конструкция разъемная, то есть можно снять дверное полотно, не откручивая крепеж. Второй вариант неразборный, чтобы снять дверь, придется выкручивать саморезы.
Универсальными такие изделия называются потому, что они могут ставиться на любую сторону дверного полотна. Неразборная конструкция позволяет сделать это в отличие от съемного варианта.
Есть несколько основных разновидностей, разберем каждый из типов отдельно.
Так выглядит накладной вариант | Этот вид изделий еще называется карточный, так как в нем одна часть заходит во вторую, чтобы в закрытом положении элемент занимал минимум места.
Из-за характерной формы их часто называют петли-бабочки . Конструкция достаточно проста и сделана из металла толщиной не менее 3 мм. Движущаяся часть крепится на двух подшипниках. |
Установленное изделие | Так элемент выглядит в установленном виде. Ничего вырезать и подгонять не нужно, что очень важно для тех, кто не имеет опыта проведения подобных работ. |
Установка узла | Это самый простой в монтаже вариант среди всех возможных. Ниже процесс крепления описан подробно, вы сможете сами убедиться, что работа по силам любому человеку, даже если он никогда не выполнял ее. |
Изделия можно подобрать под цвет полотна | Петли могут иметь разный цвет и подбираются под остальную фурнитуру и расцветку дверного полотна . В продаже можно найти около десяти вариантов, поэтому заранее определитесь, какой оттенок лучше всего подойдет в вашем случае. |
Дверные петли бабочка. Особенности
При покупке межкомнатной двери важно подобрать подходящую фурнитуру. Особое внимание следует заострить на петлях. Выбор современного человека делается исключительно в пользу качественного продукта, в данном случае особыми почестями довольствуются петли-бабочки. Они отличаются повышенной прочностью, надежностью и безопасностью. По своим характеристикам данные дверные крепежи относятся к карточному типу. А название «бабочки» приобретено за счет внешнего вида. В раскрытом состоянии петли напоминают крылья этого необыкновенно красивого насекомого.


Важная отличительная особенность данных петель заключается в способе их монтажа. Стандартные модели крепятся с помощью привычного всем способа врезки. А петли-бабочки не требуют к себе подобных манипуляций. Достаточно только прикрутить их на поверхность двери и проем. А все благодаря особенной конструкции пластины крепления. Если говорить простыми словами, то при закрывании двери часть петли, прикрученная на дверном полотне, по контуру входит в разъем, прикрученный к проему. При этом не остается никаких зазоров.


С технической стороны петли-бабочки имеют универсальные характеристики. При монтаже нет разницы внутреннего и наружного открывания, главное, чтобы прямоугольная часть была закреплена на проеме, а фигурная часть – на двери. Петли-бабочки для межкомнатных дверей отличаются легкостью установки. Справиться с монтажом сможет любой человек. Но если же присутствуют какие-либо сомнения, лучше всего вызвать мастера.


Помимо технических особенностей, петли-бабочки разделяются по материалам изготовления и размерам, благодаря чему каждый сможет подобрать наиболее подходящий вариант к дизайну двери. Стоит отметить, что ассортиментный ряд обладает особой модификацией для дверей с притвором, что говорит об изогнутых моделях петель.
Материалы
Благодаря техническому прогрессу на сегодняшний день производители готовы предложить покупателям весьма обширный список моделей петель-бабочек. Каждая отдельная конструкция выполнена по особому чертежу и из разных материалов.


Несмотря на небольшой список металлов, используемых для производства петель-бабочек, каждый сможет подобрать для себя наиболее подходящий вариант. Но помимо внешнего вида, важно помнить об особенностях выбранного металла. Например, латунные изделия имеют множество отличительных особенностей, а самая важная заключается в высокой стойкости к воздействию внешних факторов. С эстетической точки зрения фурнитура смотрится крайне элегантно и богато.


Стальные петли-бабочки могут похвастаться повышенным уровнем стойкости к температурным колебаниям, при повышенной влажности не подвергаются воздействию коррозий, так как сталь относится к типу нержавеющих металлов.
Цинковые крепления можно приобрести на рынке по относительно недорогой цене. Но при установке стоит помнить несколько нюансов. Цинковый материал подвержен коррозии и не отличается износостойкостью. Из этого следует, что монтаж цинковых петель нельзя производить на открытом воздушном пространстве, где влага может попасть на изделие. А для продления срока службы важно постоянно следить за процессом работы и в случае возникновения скрипов или посторонних шумов провести профилактические работы.


Размеры
Касательно предлагаемых на рынке размеров следует знать, что «бабочки» выпускаются в двух категориях:
- 10 * 3 см («четверка»);
- 12,5 * 3 см («пятерка»).
В обоих случаях толщина креплений варьируется в пределах 2,5-3 мм. Обозначения «четверка» и «пятерка» предназначены исключительно для мастеров и продавцов. Своеобразная аббревиатура говорит о дюймовых размерах. Для того чтобы навесить легкую дверь, достаточно приобрести две петли, но если дверное полотно выполнено из массивного материала, стоит задуматься и для надежности установить три петли либо все четыре. При этом в легкой конструкции подойдут пара «четверок», а для массивного изделия – только «пятерки».

Источник: https://doma-na-veka.ru/novosti/kak-vybrat-semnye-dvernye-petli-universalnye-petli
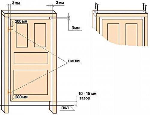
Петли на межкомнатные двери расстояние. Разметка
Начинают установку дверных петель с разметки. В зависимости от конструкции фурнитуры процесс монтажа имеет свои особенности. Общий момент — петли у межкомнатных дверей устанавливаются на расстоянии 20–25 см от верхнего и нижнего края. На месте крепления должны отсутствовать сучки, сколы, другие повреждения. Если имеется дефект на полотне , петли смещают.

Процесс разметки при установке петель на двери предусматривает очерчивание контура крепёжных пластин или штырей. Дальнейшие действия зависят от типа фурнитуры. Накладные модели просто фиксируют саморезами. Под врезные крепежи выбирают стамеской или фрезером углубления. Для ввертных моделей сверлят отверстия.
Размечать нужно так, чтобы сделанная выборка не оказалась слишком глубокая. Это приведёт к перекашиванию двери. Когда такая неприятность случилась, глубину выборки уменьшают картонными подкладками.

Если предполагается много работы, упростить её поможет специальное приспособление – кондуктор для врезки петель. Шаблон можно купить или изготовить из фанеры. Кондуктор фиксируют зажимами на размеченном участке дверного полотна и во внутренней его части фрезером выбирают углубление.
После разметки дверь ставят в коробку, расклинивая клиньями так, чтобы по периметру получился одинаковый зазор около 3 мм. Следующими действиями нужно определить место крепления ответной части петли на раме. Положение створки проверяют уровнем во избежание перекосов. Когда полотно будет ровно выставлено, на коробке размечают место крепления второй части петли.
Дверные петли: виды. Разновидности петель по типу конструкции
Пожалуй, самая многочисленная разгруппировка навесов для дверных полотен — по виду конструкции. Выделяют двухстороннюю, накладную, скрытую, врезную, ввертную, угловую разновидность. Каждую стоит разобрать подробнее.
Накладные и врезные дверные петли
Хоть по внешнему виду такие навесы несколько различаются, гос стандарты не определяют между ними разницы. Это карточная фурнитура, которая сразу прикрепляется к полотну и коробке — быстро и без долгой подготовки. Различия — только по одному моменту:
- Накладные достаточно только прикрепить шурупами к косяку и створе двери.
- Для врезных конструкций в декоративном покрытии вырезаются углубления — чтобы «утопить» в них крылья-пластинки фурнитуры.
Одна из популярных моделей накладных навесов — «бабочка». Когда дверь возвращается в закрытое состояние, маленькое «крыло» помещается в специальный вырез на большом «крыле». В результате толщина фурнитуры равна толщине одной пластинки. Такая конструкция освобождает от выборки декоративной облицовки под фурнитуру. Достаточно лишь произвести разметку и закрепить.

петли бабочки (накладные)
Накладные навесы — первые, древние модели. Их ковали из железных пластинок кузнецы — получалось прочное и «суровое» изделие.
Сегодня же покупателей накладных моделей привлекает понятный и простой монтаж фурнитуры, который под силу даже новичку. Необходимо выставить метки, просверлить в нужных местах отверстия, поставить полотно в строго вертикальное положение и надежно закрепить шурупами.
Врезные модели смотрятся более гармонично и эстетично, чем врезные, ведь они не выступают над поверхностью косяка и полотна, так как врезаны в облицовку. Если створка закрыта, то будут видны лишь поворотные оси таковой фурнитуры. Но установка подобной конструкции требует времени и столярных навыков — придется сделать аккуратную выборку по контуру пластины навеса на полотне и дверном коробе.

петли врезные
Врезные и накладные конструкции между собой разделяются: разъемный и универсальный типы. Ключевые различия здесь:
- Универсальная накладная модель обладает большей жесткостью, нежели разъемная. При небольшом размере и небольшой площади она выдерживает приличный вес. Поэтому эксперты советуют для массивных и тяжелых створ покупать именно накладные универсальные разновидности. Это и отличная «профилактика» провисания створки.
- Разъемные накладные навесы левосторонние и правосторонние. За универсальные же говорит их название.
Профессионалы выделяют несколько достоинств накладных наименований:
- Простой монтаж.
- Сравнительно низкая цена.
- Долгая и безукоризненная служба.
Говоря же о недостатках, мы выделяем:
- Необходимость откручивания их для того, чтобы снять створу.
- Большой риск, что со временем дверное полотно будет перекошено.



